**Standout Features:**
- Long-established, renowned pub: Molly O'D's
- Spacious, 4-bedroom owner's apartment with en-suite facilities
- Potential for expansion with adjacent shop and flat for sale
- Large outdoor trading area and outbuildings
- Low crime area with a strong community connection
- Freehold sale with existing premises license
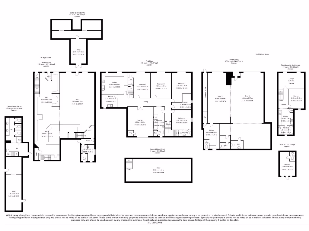
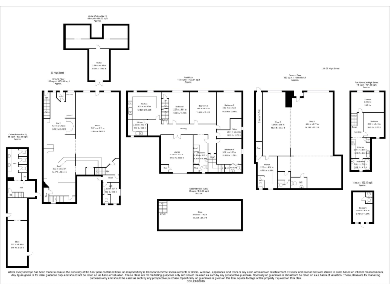
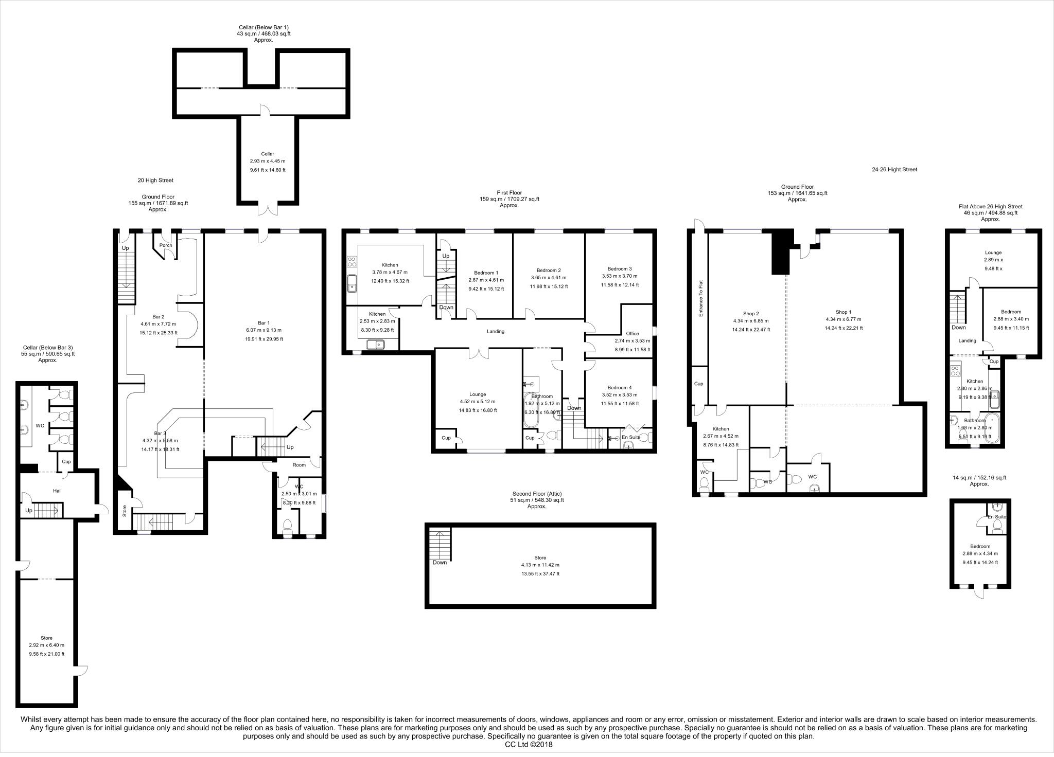
- Significant square footage at 11,532 sq ft
**Concise Summary:**
Discover a gem in the heart of Porth with the sale of Molly O'D's, a long-standing Irish pub that has been a vital community hub for over 35 years. Featuring a spacious 4-bedroom owner's apartment, complete with modern amenities and ample living space, this property is perfect for aspiring pub owners or investors looking for rental potential. The vibrant ground floor offers a welcoming open-plan trade area, complete with a bar and pool table, while the outdoor trading space and outbuildings provide opportunities for expansion or private use.
Situated in the picturesque village of Gilfach Goch, this pub not only boasts a loyal customer base but is also poised for growth by extending trading hours or introducing a simple food menu. Although the property is well-maintained, potential buyers should be aware of its age—constructed before 1900 and featuring traditional glazing, which may require updating. This unique offering is not just a business opportunity; it’s a chance to step into a cherished local tradition. Don’t miss out on securing this remarkable property with a rich history and future potential—contact us today to explore further!
Pub for sale in Molly O'D's, 20 -26 High Street
Gilfach Goch, Porth, CF39 8SP, CF39 — £340,000 • 1 bed • 1 bath • 1628 ft²
Pub for sale in CF37 — £390,000 • 2 bed • 1 bath
Pub for sale in Brynmair Road, Aberdare, South Glamorgan, Rhondda Cynon Taff, CF44 — £175,000 • 5 bed • 1 bath • 915 ft²
Pub for sale in CF72 — £450,000 • 4 bed • 1 bath
Pub for sale in Cardiff Street, Aberdare, South Glamorgan, Rhondda Cynon Taff, CF44 — £390,000 • 6 bed • 1 bath
Detached house for sale in Mount Pleasant Pub Penrhiwceiber Road, Mountain Ash, CF45 — £325,000 • 1 bed • 1 bath • 989 ft²


































































































































































































