Chain-free two-bed flat near station and Castle Park with communal gym and garage..
- City centre location, minutes from station and Castle Park
- First-floor flat with lift access and communal lounge
- On-site gym and garage parking included
- Chain free sale for a quicker move
- Small overall size: 579 sq ft
- Service charge approx. £1,938 per year
- Ground rent £175; 98 years remaining on lease
- Very high local crime and very slow broadband speeds
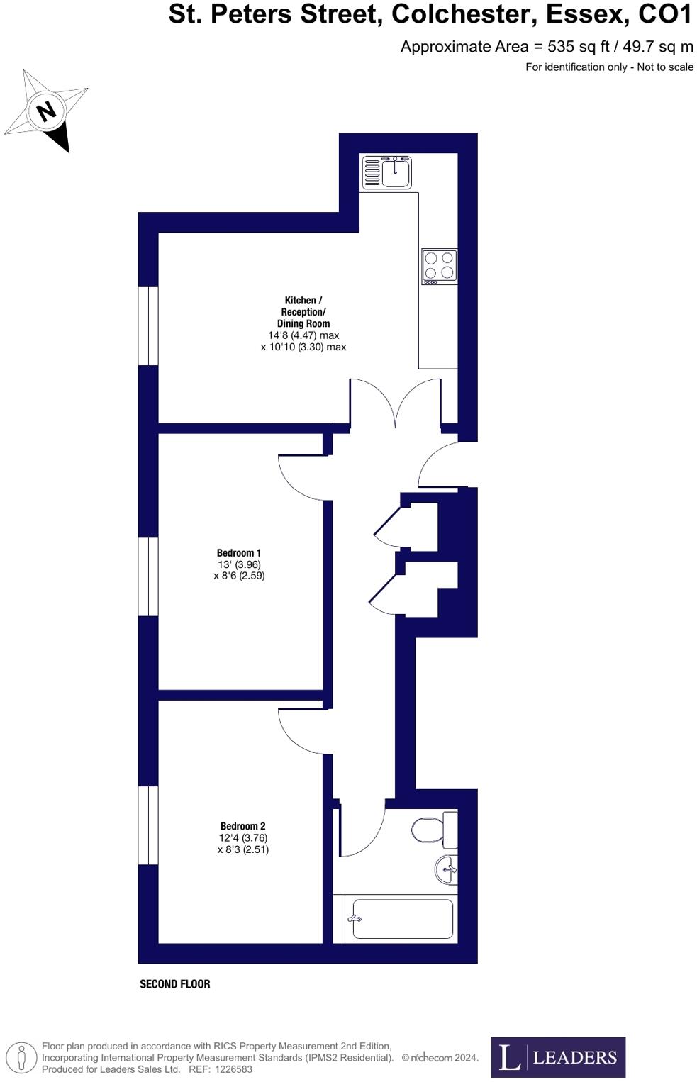
This two-bedroom first-floor apartment places you in the heart of Colchester, a short walk from the station and Castle Park. The building offers lift access, a communal lounge with views and a resident gym — useful extras for city living. The flat is chain free and suits buyers seeking immediate occupation or a central commuter base.
The apartment provides generous room proportions for a small 579 sq ft home and includes a garage for parking — a rare plus in a central location. The 98-year lease remaining keeps future ownership straightforward for now, and the property’s location gives easy access to shops, restaurants, theatres and regular events in Castle Park.
Buyers should note material factors plainly: the development’s service charge is substantial (approx. £1,938 annually) and a ground rent of £175 applies. Broadband speeds in the area are reported as very slow. Crime levels in the locality are very high, which may concern families or long-term owners.
This apartment will appeal to first-time buyers or investors wanting central access and on-site facilities, provided they accept the ongoing service costs and local challenges. Cosmetic updates or targeted improvements could increase rental appeal or resale value for buyers prepared to invest further.
2 bedroom apartment for sale in St. Peters Street, Colchester, CO1 — £160,000 • 2 bed • 1 bath • 668 ft²
2 bedroom flat for sale in Henry Laver Court, Colchester, CO3 — £200,000 • 2 bed • 1 bath • 646 ft²
1 bedroom apartment for sale in Northgate House, St. Peters Street, Colchester, CO1 — £140,000 • 1 bed • 1 bath • 462 ft²
2 bedroom apartment for sale in East Hill, Colchester, Colchester, CO1 — £140,000 • 2 bed • 2 bath • 593 ft²
2 bedroom apartment for sale in Angels Courtyard, 134 High Street, CO1 — £325,000 • 2 bed • 2 bath • 927 ft²
2 bedroom apartment for sale in Henry Laver Court, Colchester, Essex, CO3 — £160,000 • 2 bed • 2 bath • 1003 ft²


























































































