Spacious family living with double garage and large driveway.
Extended three-bedroom semi-detached home with modern finishes
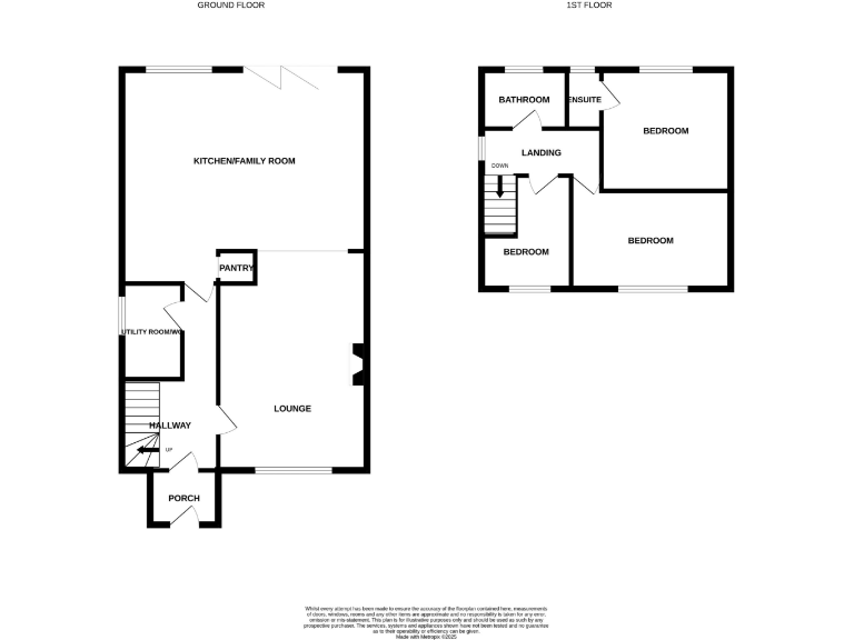
This extended three-bedroom semi-detached home blends modern finishes with practical family space. The ground floor has a large open-plan kitchen-family room with quartz worktops, underfloor heating and bi-fold doors that open onto a decent rear garden — ideal for everyday family life and entertaining. A separate lounge with a multi-fuel stove adds a cosy retreat for evenings.
Upstairs the principal bedroom includes an en-suite, accompanied by two further generous bedrooms and a family bathroom. Recent renovation work has upgraded the kitchen, flooring and fittings throughout, giving a contemporary feel while retaining post-war character and sensible proportions across approximately 905 sq ft.
Outside there is substantial off-road parking to the front and side plus a double garage at the rear of the garden, useful for vehicles, storage or a workshop. Practical details: freehold tenure, EPC rating C, mains gas central heating with radiators, cavity walls and double glazing installed before 2002.
Points to note: some final works are still in progress and further images will follow — viewers should expect minor unfinished touches. The property is average-sized rather than large, and the glazing is older (pre-2002), so buyers wanting the highest energy efficiency may consider upgrades. Overall this home is well suited to families seeking ready-to-live-in space with room for parking and storage, close to good primary schools and local amenities.
3 bedroom semi-detached house for sale in Brewton Drive, Deeping St James, PE6 8GR, PE6 — £260,000 • 3 bed • 2 bath
3 bedroom semi-detached house for sale in Feneley Close, DEEPING ST JAMES, Peterborough, PE6 — £230,000 • 3 bed • 1 bath
3 bedroom semi-detached house for sale in Tooley Way, Deeping St James, PE6 — £235,000 • 3 bed • 2 bath • 1005 ft²
3 bedroom semi-detached house for sale in Crowland Road, Eye, Peterborough, PE6 — £285,000 • 3 bed • 1 bath
3 bedroom semi-detached house for sale in Station Road, Deeping St James, Market Deeping, PE6 — £295,000 • 3 bed • 1 bath
5 bedroom detached house for sale in Knight Close, Deeping St James, Market Deeping, PE6 — £399,950 • 5 bed • 2 bath






















































