Contemporary two-bed with balcony close to parks and village amenities.
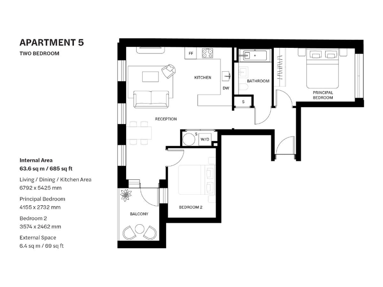
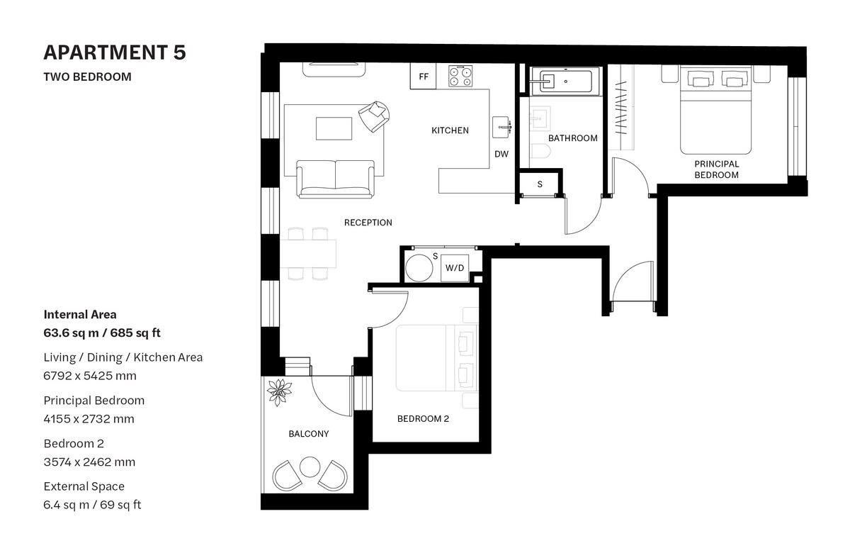
63.6 sq m (685 sq ft) two-bedroom, two-bath apartment
Light-filled and well laid-out, this two-bedroom apartment offers 63.6 sq m (685 sq ft) of contemporary living in a quiet Barnes location. The open-plan reception and modern integrated kitchen benefit from a skylight, high ceiling and direct access to a private balcony — a comfortable spot for morning coffee or evening relaxation.
The principal bedroom is generous and the second bedroom works well as a guest room, nursery or home office. Built-in storage, a utility area with washer/dryer and two bathrooms add everyday convenience. Fast broadband, excellent mobile signal and low local crime make the home practical for professionals or a first purchase.
Outdoor life is a strong selling point: Barnes Village amenities, River Thames towpaths and Richmond Park are all close by for walking, cycling and leisure. The area is very affluent with highly qualified neighbours and several well-rated primary and secondary schools nearby, including East Sheen Primary and Ibstock Place School.
Material considerations: the property is leasehold — buyers should confirm the remaining term, ground rent and service charges. The apartment is an average overall size for a two-bedroom and will suit those prioritising location and finish over large internal floor area.
2 bedroom flat for sale in Railway Side, Barnes, London, SW13 — £399,995 • 2 bed • 1 bath • 646 ft²
2 bedroom flat for sale in Castelnau Gardens, London, SW13 — £760,000 • 2 bed • 1 bath • 847 ft²
2 bedroom apartment for sale in Priests Bridge, East Sheen, SW14 — £399,000 • 2 bed • 1 bath • 595 ft²
2 bedroom flat for sale in Lower Richmond Road, Putney, SW15 — £599,950 • 2 bed • 2 bath • 900 ft²
2 bedroom flat for sale in Roehampton Close, SW15 — £600,000 • 2 bed • 1 bath • 900 ft²
2 bedroom flat for sale in White Hart Lane, Barnes, SW13 — £450,000 • 2 bed • 1 bath • 683 ft²






























