Spacious chain-free one-bed with private patio, moments from King’s Cross and excellent transport links.
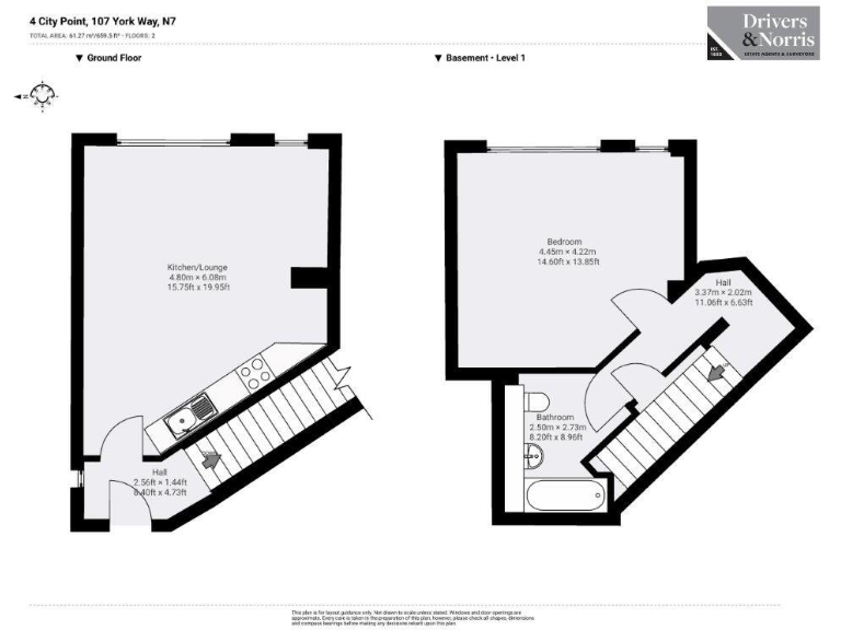
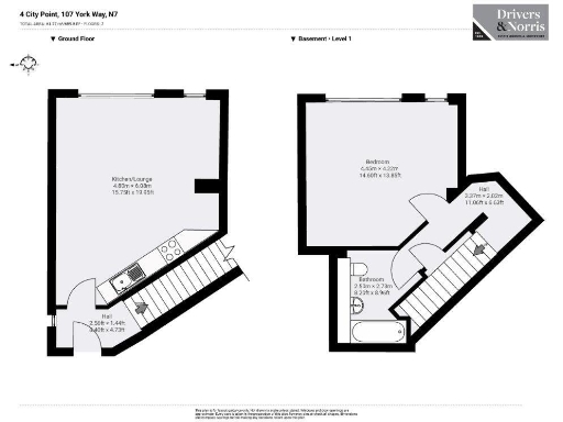
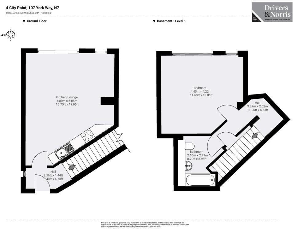
- Large 1-bed apartment, approximately 659 sq ft
- Open-plan lounge/kitchen with modern fittings
- Basement bedroom with sliding doors to decked patio
- Chain-free sale; 105 years remaining on lease
- Service charge approx. £1,869pa and ground rent £300pa
- Constructed 2003–2006; double glazed and gas central heating
- Excellent transport links: short walk to Caledonian Road, 0.5 mile to King’s Cross
- Lower-level bedroom receives reduced natural light
This large one-bedroom apartment in City Point sits between Islington, Camden and King’s Cross, offering excellent access to shops, parks and transport. The open-plan ground-floor lounge/kitchen benefits from a contemporary fit and plentiful daylight thanks to extensive windows and curved modernist façades. The bedroom and bathroom are on the lower level and open onto a private decked patio, creating a quiet, outside space rare for a central location.
The home is chain-free and on a long lease (105 years remaining), with gas central heating, double glazing and a construction date in the mid-2000s, so major fabric works are unlikely in the short term. Broadband speeds are fast, mobile signal is excellent, and local crime levels are described as very low, supporting both comfortable living and rental potential.
Notable running costs include an average service charge of £1,869 pa and ground rent of £300 pa; the property is leasehold. The lower-level bedroom/patio layout means the sleeping area is partially below ground level and will receive less direct daylight than the main living space. Overall this is a practical, well-located urban apartment with good transport links and a private outdoor area, suited to a first-time buyer or investor seeking a ready-to-let, central London unit.
2 bedroom apartment for sale in York Way, London, N7 — £449,950 • 2 bed • 1 bath • 608 ft²
1 bedroom apartment for sale in York Way, London, N7 — £475,000 • 1 bed • 1 bath • 449 ft²
1 bedroom flat for sale in City of London Point,
107 York Way, N7 — £350,000 • 1 bed • 1 bath • 450 ft²
2 bedroom apartment for sale in York Way, N7 — £450,000 • 2 bed • 1 bath • 729 ft²
1 bedroom flat for sale in Xchange Point, N7 — £370,000 • 1 bed • 1 bath • 504 ft²
2 bedroom flat for sale in Barker Drive, London, NW1 — £425,000 • 2 bed • 1 bath • 555 ft²






















