Bright renovated two-bedroom with garden access near West Kensington stations.
Share of freehold; no annual ground rent
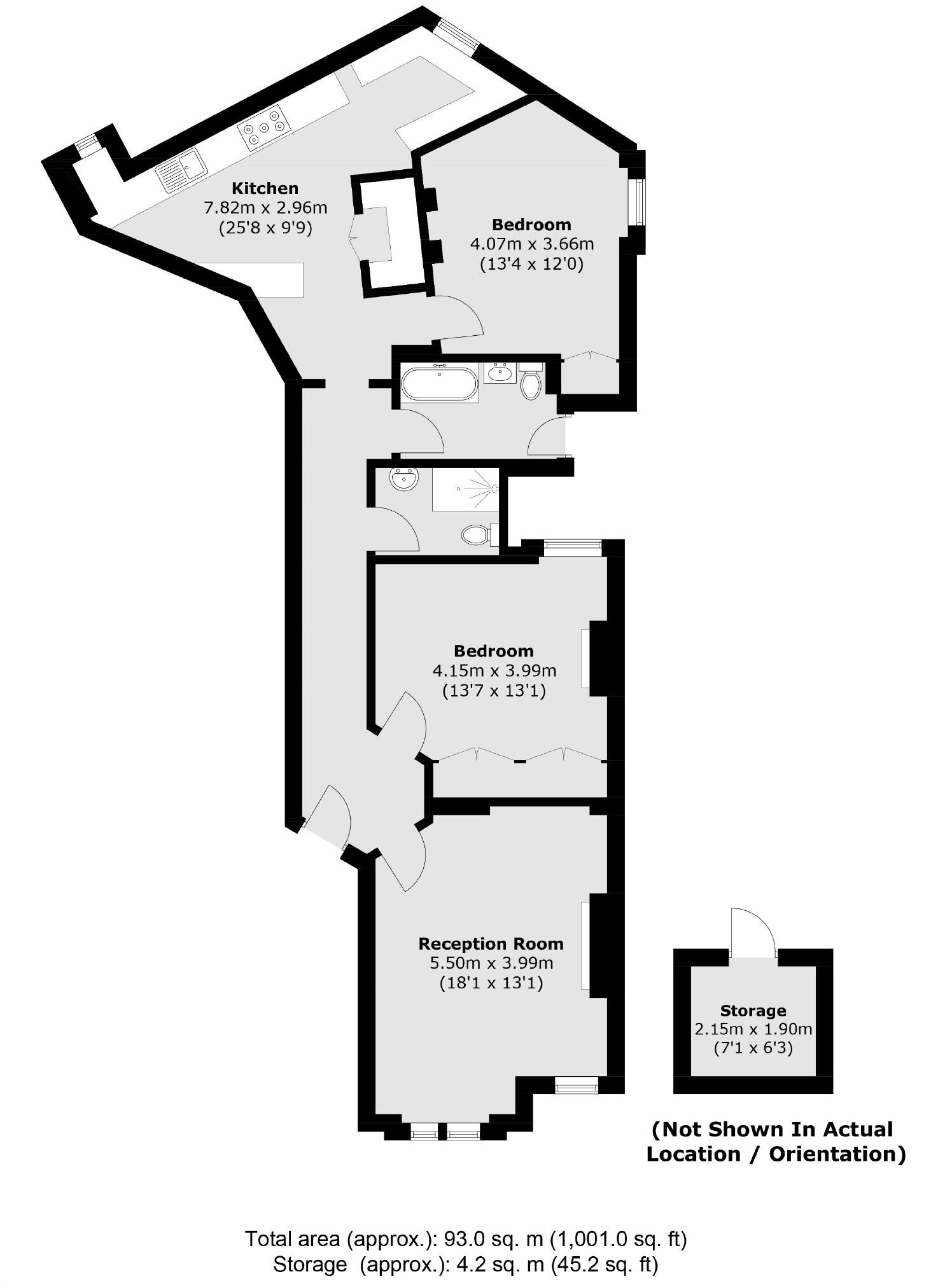
Set on a quiet, tree-lined stretch of West Kensington, this newly renovated two-bedroom apartment makes city living comfortable and bright. High Victorian ceilings, ornate cornicing and a large reception room preserve period character while the Tom Howley kitchen and two modern bathrooms provide contemporary convenience.
At about 1,001 sq ft, the layout feels generous for central-London flats — clear reception and dining space, a sizeable kitchen and two good bedrooms. Share of freehold ownership and access to a communal landscaped garden add practical value and a private outdoor retreat just steps from the door.
Practical points are straightforward: the building is solid brick (likely no cavity insulation), so heating runs via mains gas boiler and radiators. Council Tax sits at Band F and should be expected to be relatively expensive. The flat is within 300 yards of West Kensington and Barons Court stations, with excellent mobile signal and fast broadband suitable for home working.
This property suits a buyer who values period detail combined with a turnkey finish, generous internal space and excellent transport links. It also offers potential for buyers who may want to tailor finishes further, but any decisions should factor in the building’s older construction and associated running costs.
2 bedroom apartment for sale in North End Road, London, Greater London, W14 — £595,000 • 2 bed • 1 bath • 584 ft²
2 bedroom flat for sale in Matheson Road, London, W14 — £600,000 • 2 bed • 2 bath • 608 ft²
2 bedroom flat for sale in Castletown Road, Barons Court, London, W14 — £600,000 • 2 bed • 1 bath • 617 ft²
1 bedroom flat for sale in Challoner Street, West Kensington, W14 — £450,000 • 1 bed • 1 bath • 600 ft²
3 bedroom apartment for sale in Fitzjames Avenue, London, W14 — £1,600,000 • 3 bed • 2 bath • 1580 ft²
2 bedroom apartment for sale in Russell Road, London, W14 8, W14 — £950,000 • 2 bed • 1 bath • 920 ft²






































