**Standout Features:**
- Immaculate 4-bedroom detached house in the desirable Delamere Park
- Private landscaped gardens front and rear
- Off-road parking and double garage
- Access to exclusive resident facilities, including a swimming pool, tennis and squash courts
- Proximity to major transport routes (A49 and A556) and Cuddington railway station
- Excellent local schools with Good Ofsted ratings
**Highlights:**
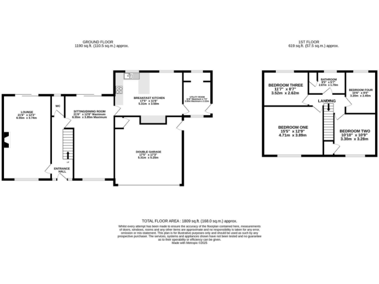
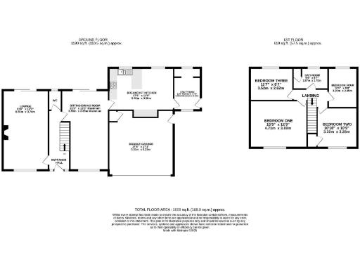
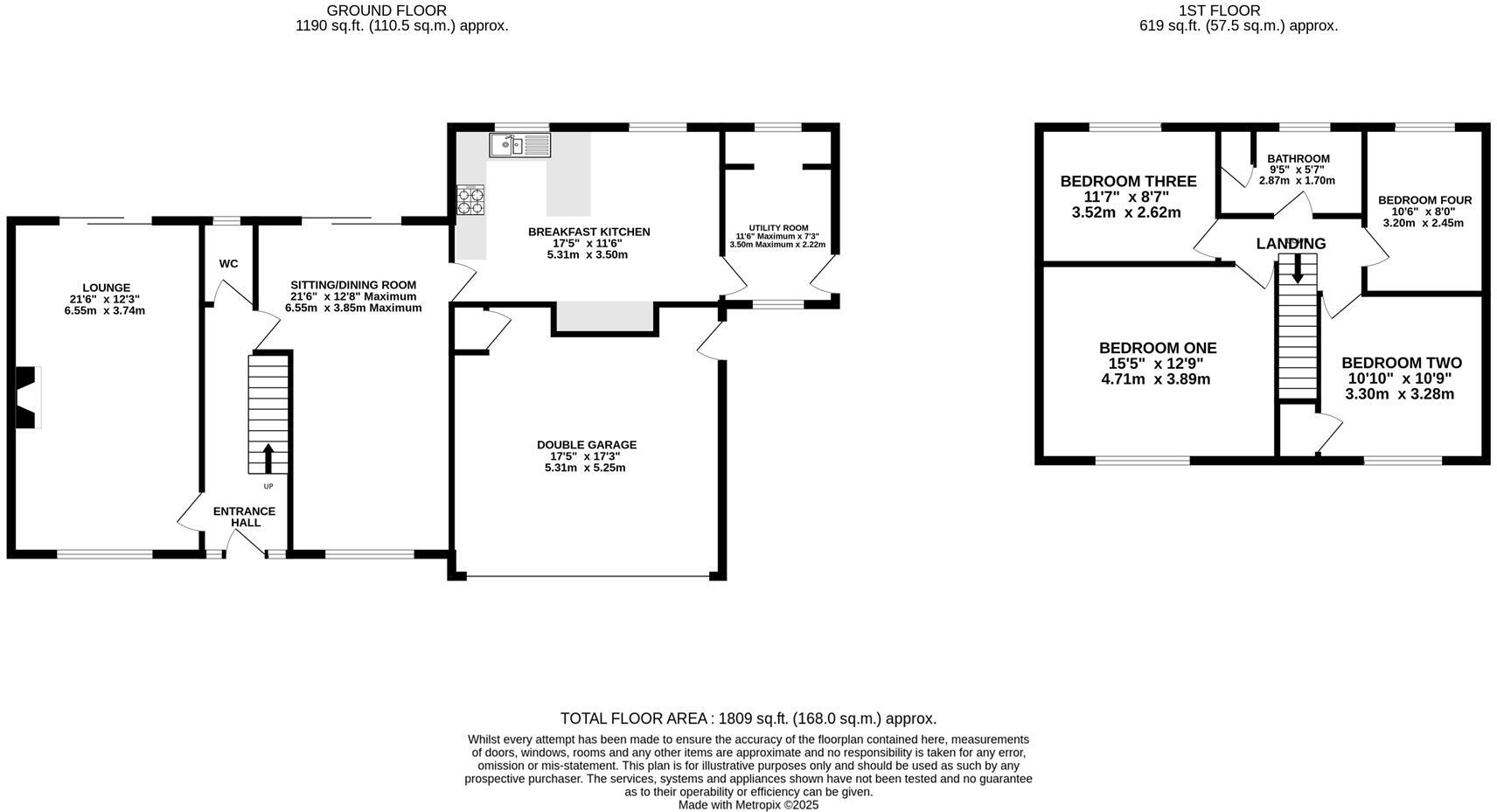
Discover your dream family home in this beautifully presented four-bedroom detached property nestled in the coveted Delamere Park, Cuddington. With a traditional brick exterior and generous spaces, the home features a welcoming entrance hall that leads to a bright lounge and a spacious sitting-dining area—perfect for both relaxation and entertaining. The breakfast kitchen, although dated, has potential for renovation to create the heart of your home.
The property offers ample parking with a double garage and beautifully landscaped gardens that secure a peaceful outdoor retreat. Enjoy exclusive access to residents' amenities including a swimming pool and recreational facilities, enhancing your quality of life. The tranquil setting is complemented by the surrounding countryside, while excellent local schools and low crime rates make this a family-friendly area.
While the home is chain-free and presents an excellent living environment, it's worth noting that potential buyers should verify the condition of appliances and heating systems. With its mix of space, comfort, and community appeal, this property is a rare find that is expected to attract significant interest—act quickly to avoid missing out on this exceptional opportunity!
4 bedroom detached house for sale in The Coppice, Cuddington, Northwich, CW8 — £550,000 • 4 bed • 2 bath • 1968 ft²
3 bedroom detached house for sale in Threeways, Delamere Park, Cuddington, Northwich, CW8 — £440,000 • 3 bed • 2 bath • 1689 ft²
4 bedroom detached house for sale in Westrees, Cuddington, Northwich, CW8 — £650,000 • 4 bed • 2 bath • 2000 ft²
4 bedroom house for sale in Head-Turning Modernised Home on Delamere Park, CW8 — £390,000 • 4 bed • 2 bath • 1281 ft²
4 bedroom semi-detached house for sale in Cedarwood, Delamere Park, Cuddington, CW8 — £400,000 • 4 bed • 1 bath • 1523 ft²
4 bedroom detached bungalow for sale in Orchard Dene, Cuddington, Northwich, CW8 — £550,000 • 4 bed • 2 bath • 1664 ft²


































































































































































































