**Standout Features:**
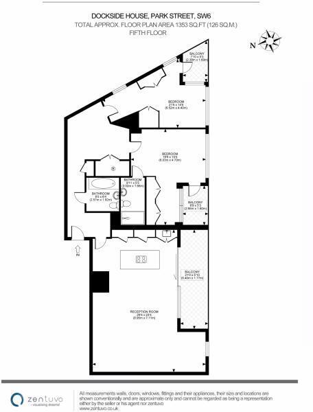
- Spacious 2-bedroom apartment spanning 1,353sqft (126sqm)
- Situated on the 5th floor with three private balconies
- Modern open-plan living area with high-quality finishes
- 24-hour concierge, resident spa with gym and swimming pool
- Secure underground parking
- Close to Imperial Wharf Overground Station and Fulham Broadway Underground
- Built in 2010 with 987 years remaining on the lease
**Summary:**
Discover luxury urban living in this expansive two-bedroom apartment located in the sought-after Chelsea Creek development. Spanning an impressive 1,353sqft, this residence features a bright open-plan layout, seamlessly connecting the modern kitchen and living area to three private balconies, ideal for relaxation and entertaining. Each double bedroom enjoys its own balcony, while the principal suite includes a luxurious ensuite bathroom.
With a 24-hour concierge and exclusive access to a resident spa featuring a gym and swimming pool, this property offers both convenience and comfort. The location is perfect for professionals, with quick access to Imperial Wharf and Fulham Broadway transport links, along with high-end shopping and dining options nearby.
While the service charge is on the higher end at £11,584 per annum, the outstanding amenities and prime location provide excellent living quality and investment potential. This property is ideal for first-time buyers and families seeking both space and a vibrant environment. Don’t miss out on making this modern haven your own!
2 bedroom flat for sale in Doulton House, Chelsea Creek, Fulham, SW6 — £1,000,000 • 2 bed • 2 bath • 890 ft²
2 bedroom flat for sale in Lockside House, Chelsea Creek, Fulham, SW6 — £975,000 • 2 bed • 2 bath • 879 ft²
2 bedroom flat for sale in Chelsea Creek Tower, Chelsea Creek, Fulham, SW6 — £1,725,000 • 2 bed • 2 bath • 1200 ft²
2 bedroom apartment for sale in Chelsea Creek Tower, Chelsea Creek, SW6 — £1,800,000 • 2 bed • 2 bath • 1319 ft²
2 bedroom flat for sale in Meadows House, Chelsea Creek, Fulham, SW6 — £995,000 • 2 bed • 2 bath • 847 ft²
2 bedroom apartment for sale in Chelsea Creek, Imperial Wharf, London, SW6 — £995,000 • 2 bed • 2 bath • 837 ft²


































































