Low-maintenance garden, garage and solar panels in popular Woodland Walk.
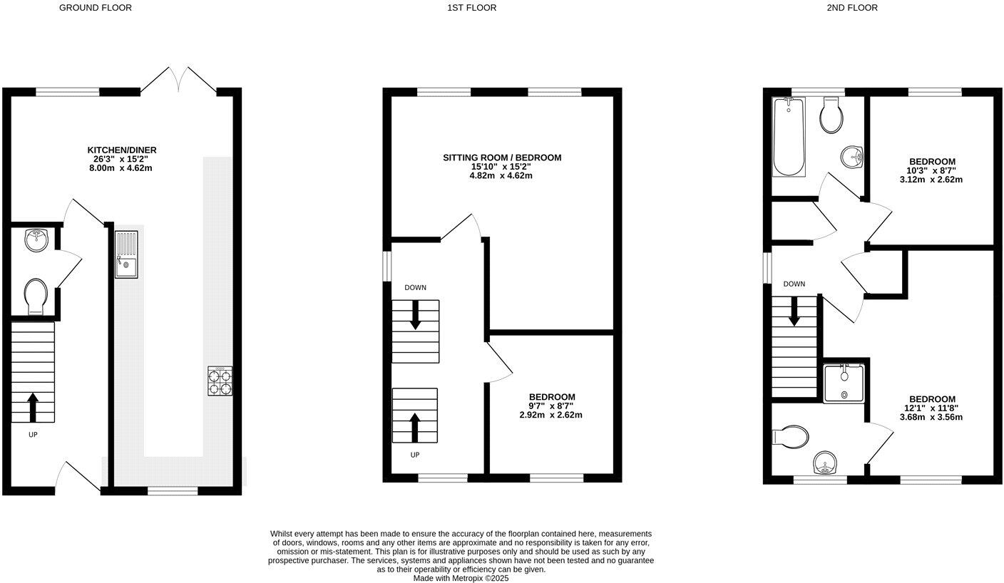
Three bedrooms across three floors, including master with en suite
Set over three floors on the popular Woodland Walk development, this three-bedroom end-of-terrace house suits growing families or first-time buyers seeking practical space and good local schools. The ground floor features an open-plan kitchen/dining room with patio doors to an enclosed rear garden; the layout provides flexible living and direct garden access. The first and second floors include a sitting room, three bedrooms, a family bathroom and a master en suite.
Practical efficiencies make day-to-day running cheaper: fitted solar panels, mains gas heating with boiler and radiators, double glazing, and an EPC rating of C (74). Outside there is driveway parking plus a garage with access from the garden. The small, low-maintenance garden is mainly artificial turf with a patio area.
There are some realities to note. The house is an average-sized 950 ft² on a small plot, so outside space is limited. The build dates to the early 1990s and the double glazing install date is unknown, which may mean some components will need attention in future. Local crime levels are average and council tax is band D.
Positioned close to good-rated primary and secondary schools, local shops and leisure facilities, and benefitting from fast broadband and excellent mobile signal, this property offers a convenient, economical family home with scope to update key elements over time.
4 bedroom end of terrace house for sale in Woodland Walk, Aldershot, Hampshire, GU12 — £400,000 • 4 bed • 3 bath • 1802 ft²
5 bedroom detached house for sale in Fawn Drive, Aldershot, Hampshire, GU12 — £650,000 • 5 bed • 3 bath • 2001 ft²
3 bedroom semi-detached house for sale in White Wood Vale, Frimley, Camberley, Surrey, GU16 — £495,000 • 3 bed • 2 bath • 559 ft²
3 bedroom end of terrace house for sale in Mount View, Church Lane West, Aldershot, Hampshire, GU11 — £375,000 • 3 bed • 1 bath • 773 ft²
3 bedroom semi-detached house for sale in Egret Gardens, Aldershot, Hampshire, GU11 — £450,000 • 3 bed • 3 bath • 689 ft²
3 bedroom semi-detached house for sale in Alden Copse, Tongham, Farnham, Surrey, GU10 — £500,000 • 3 bed • 2 bath • 1372 ft²


































































