Family-focused home with pool, office and strong eco credentials near Woodbridge.
Five generous bedrooms with ensuite and wet room potential
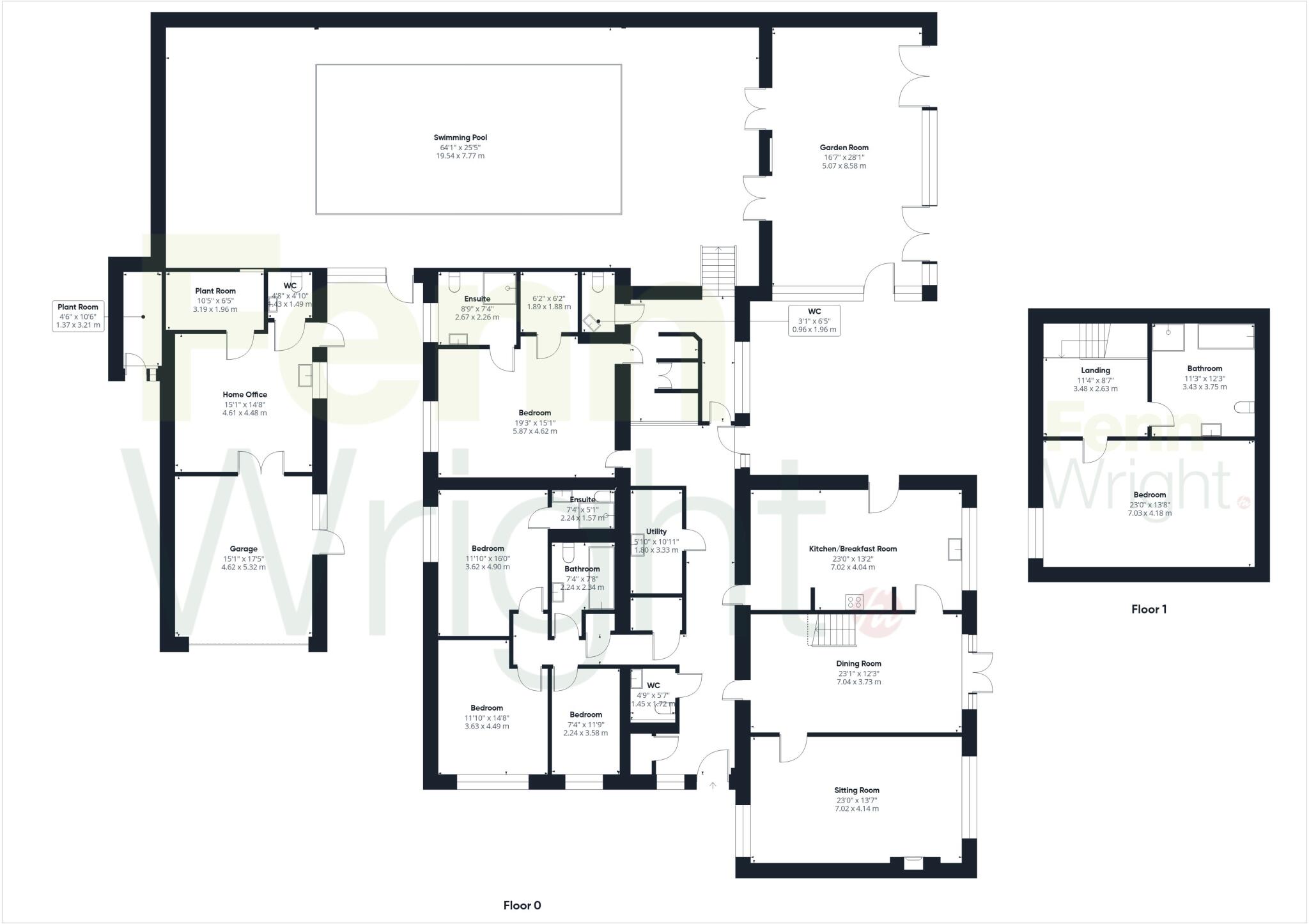
An extensive, single-level home arranged for comfortable family and multi-generational living. The bungalow offers five generous bedrooms, two reception rooms, a kitchen/breakfast room and versatile ancillary space including a self-contained office and substantial double garage. Recent full renovation and eco upgrades — 10kW solar array, solar water heating and an air-source heat pump — lower ongoing costs and include a feed-in tariff until 2035.
The property is designed for entertaining and everyday family life: an oak-framed conservatory and a heated indoor pool and jacuzzi sit alongside changing rooms, bar and dining/games space. A potential annexe-style suite with walk-in wardrobe and wet room gives flexibility for guests or older relatives. Practical features include underfloor heating across much of the ground floor, utility room, cloakroom and generous storage.
Outside, tiered gardens, a paved patio and an insulated garden shed with power, water and drainage create usable, low-maintenance outdoor areas. Driveway parking for several cars and an electric roller-door double garage support family vehicles and hobbies. Martlesham village is close to Woodbridge with local pubs, nature reserve and good primary and secondary schooling nearby; commuting links via Woodbridge or Ipswich station.
Important negatives to note: the property sits in a high flood-risk area, which will affect insurance and some buyers’ suitability. Crime levels are reported above average locally and council tax is band G, making running costs higher than typical. Prospective buyers should review flood mitigation and insurance arrangements and view to assess whether the indoor pool and large site meet their maintenance expectations.
4 bedroom detached bungalow for sale in Woodbridge, IP12 — £1,750,000 • 4 bed • 3 bath • 1637 ft²
4 bedroom chalet for sale in Black Tiles Lane, Martlesham, IP12 — £600,000 • 4 bed • 2 bath • 1938 ft²
4 bedroom detached house for sale in London Road, Ipswich, Suffolk, IP2 — £850,000 • 4 bed • 3 bath • 3109 ft²
5 bedroom detached house for sale in Manor Road, Hasketon, Woodbridge, Suffolk, IP13 — £1,100,000 • 5 bed • 3 bath • 2600 ft²
4 bedroom detached house for sale in Folly Lane, Copdock, Ipswich, IP8 — £625,000 • 4 bed • 2 bath • 1400 ft²
3 bedroom detached bungalow for sale in Angela Close, Martlesham, Woodbridge, IP12 — £475,000 • 3 bed • 1 bath • 1131 ft²


























































