**Standout Features:**
- Beautifully presented Victorian end-of-terrace home
- Two spacious double bedrooms
- Two reception rooms and a well-maintained kitchen
- Convenient low-maintenance rear yard
- On-street parking available
- Located in a desirable area near essential amenities
**Potential Concerns:**
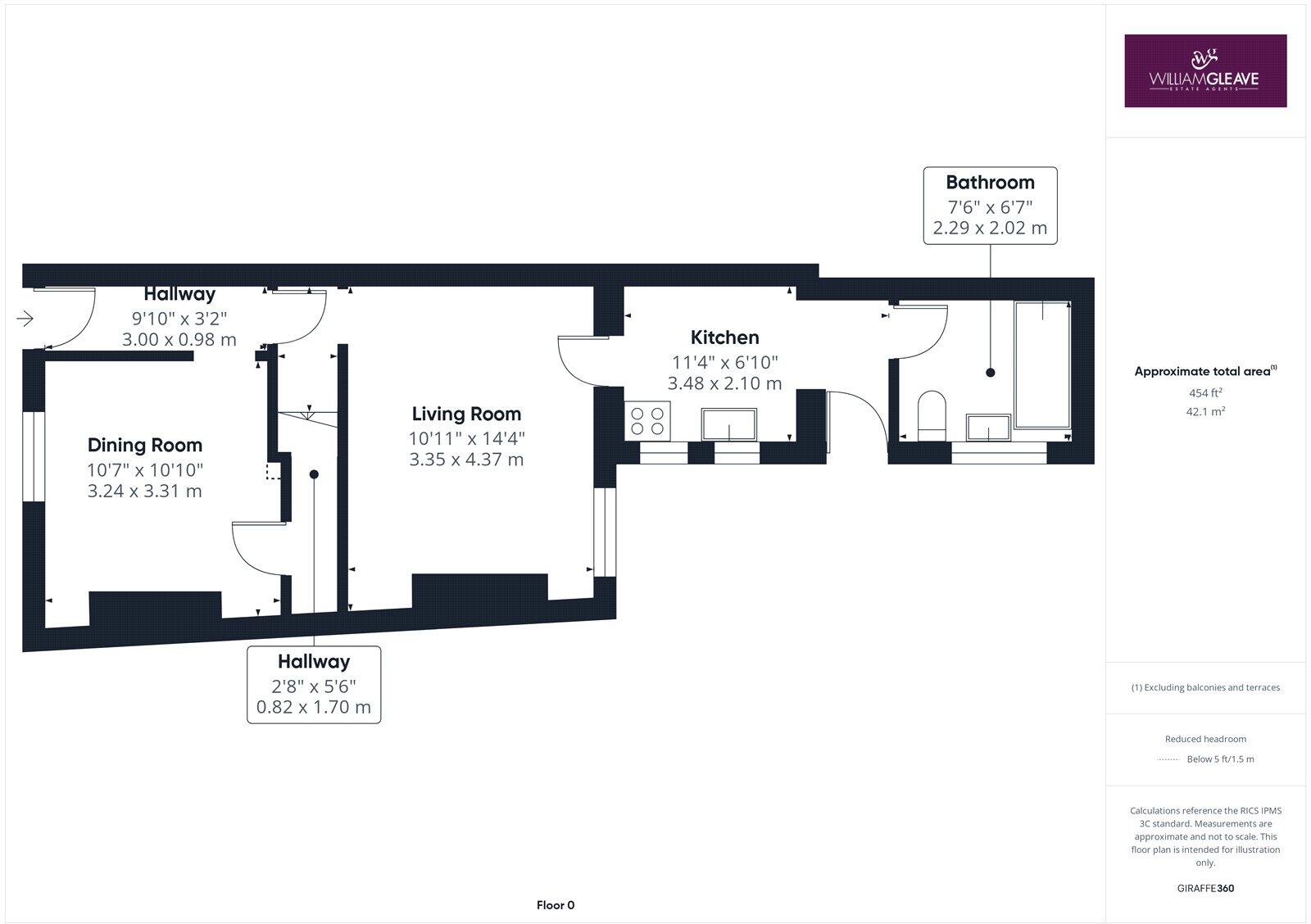
- Average-sized overall space (763 sq. ft.)
- Above-average crime rate in the area
- Deprivation level classified as very deprived
Discover this charming two-bedroom end-of-terrace property in the sought-after residential area of Shotton, perfectly suited for first-time buyers or investors seeking rental opportunities. This well-maintained Victorian home boasts a bright lounge and a dining room, leading to a functional kitchen and family bathroom. Upstairs, you’ll find two generous double bedrooms, while the low-maintenance yard at the rear provides a private outdoor retreat.
Situated close to a variety of local amenities, including schools, supermarkets, and dining options, this property offers convenience for everyday living. With excellent access to major commuter routes, you can easily explore the vibrant regions of North Wales and beyond. Viewing is essential to truly appreciate this inviting home in a lively community—take action now to secure this opportunity before it’s gone!
2 bedroom terraced house for sale in Strickland Street, Shotton, Deeside, Flintshire, CH5 — £125,000 • 2 bed • 1 bath • 656 ft²
2 bedroom terraced house for sale in Butler Street, Shotton, Deeside, Flintshire, CH5 — £110,000 • 2 bed • 1 bath • 631 ft²
2 bedroom terraced house for sale in Henrietta Street, Shotton, CH5 — £130,000 • 2 bed • 1 bath • 990 ft²
2 bedroom terraced house for sale in Alexander Street, Shotton, CH5 — £125,000 • 2 bed • 1 bath • 666 ft²
2 bedroom terraced house for sale in King Edward Street, Shotton, CH5 — £130,000 • 2 bed • 1 bath • 1087 ft²
3 bedroom terraced house for sale in Dee Road, Connah's Quay, CH5 — £135,000 • 3 bed • 1 bath • 974 ft²










































































