**Standout Features:**
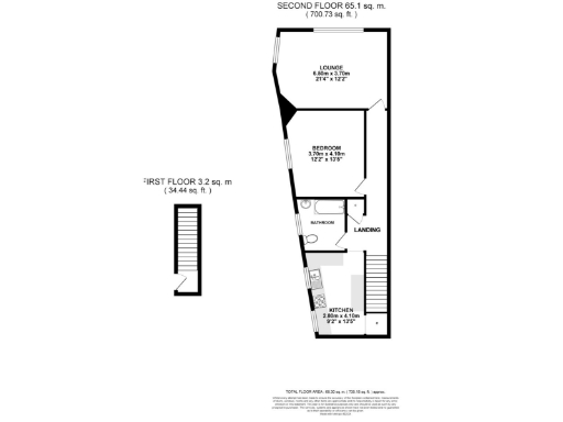
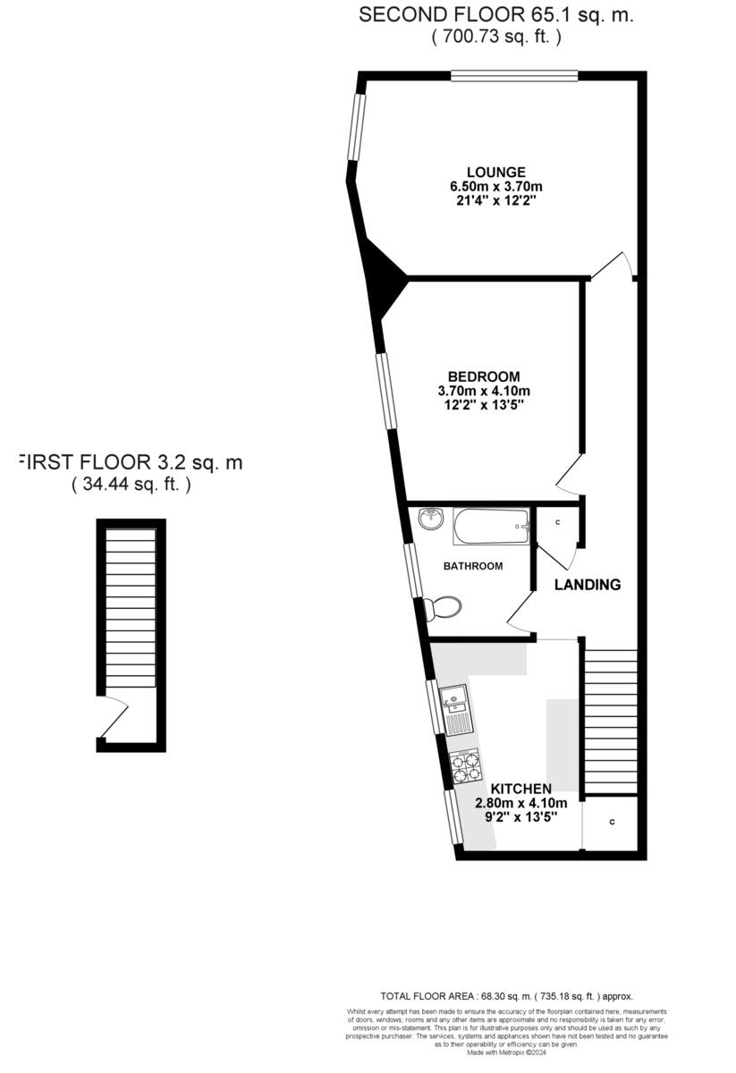
- Top floor flat with spacious accommodations (735 sq ft)
- Large double bedroom and a generous living room
- Modern kitchen with high-end stainless steel appliances
- Bright atmosphere with ample natural light
- Chain-free sale and share of freehold
- Planning permission in place for potential extension (subject to approval)
- Excellent transport links and local amenities within easy reach
This impressive top-floor flat in a central and vibrant neighborhood is perfect for first-time buyers or savvy investors eager to capitalize on its excellent potential. The property features a spacious living room with a bay window, a contemporary kitchen, and a large double bedroom, all bathed in natural light. Enjoy the security and privacy of a share of freehold ownership without the hassle of a chain, allowing for a quicker move into your new home.
There's exceptional scope for enhancement, with existing plans for a potential loft extension to expand your living space even further. Located conveniently near Purley Oaks Station and local amenities—including supermarkets, restaurants, and recreational grounds—this property offers the perfect blend of convenience and comfort.
While the flat has a dated decor requiring modernization, it presents an exciting blank canvas for personalized renovations. With the local schools rated good and several within proximity, this area is ideal for families and commuters alike. Don't miss out on this rare opportunity to own a piece of charming real estate in a sought-after location—viewings are encouraged!
1 bedroom flat for sale in Blenheim Crescent, South Croydon, CR2 — £200,000 • 1 bed • 1 bath • 621 ft²
1 bedroom flat for sale in Brighton Road, Purley, Surrey, CR8 — £225,000 • 1 bed • 1 bath • 517 ft²
1 bedroom apartment for sale in Kingsdown Court, South Croydon, CR2 — £225,000 • 1 bed • 1 bath • 699 ft²
1 bedroom flat for sale in Coulsdon Road, Coulsdon, CR5 — £200,000 • 1 bed • 1 bath • 549 ft²
3 bedroom flat for sale in Avondale Road, South Croydon, CR2 — £325,000 • 3 bed • 1 bath • 879 ft²
1 bedroom flat for sale in Fairbairn Close, Purley, CR8 — £200,000 • 1 bed • 1 bath • 473 ft²










































