Southeast garden, large plot and versatile garden house perfect for family life.
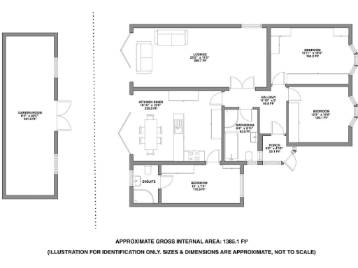
Spacious single-storey layout across approximately 1,385 sq ft
Set on a huge, private plot in one of Sutton Coldfield’s most sought-after streets, this three-bedroom detached home combines generous single-storey living with clear potential. The layout centres on a bright hall with two double bedrooms to the front, a large lounge and a generous kitchen/diner at the rear, both with wide bi-fold doors that open onto a southeast-facing garden. A third bedroom benefits from a private en-suite, offering a useful guest or master suite.
The garden is a standout asset: a landscaped lawn and large patio lead to a versatile detached garden house, ideal for a home office, studio or gym. Off-street parking is plentiful on the wide driveway, and the plot size creates scope for extension or reconfiguration subject to planning. The location is a strong practical draw — close to outstanding and well-regarded schools, extensive conservation land, local shops and good transport links into Birmingham.
Buyers should note a few important points. Broadband speeds are slow in the area, the property is offered freehold and sits in Council Tax band E. There is a purchaser administration fee of 1% plus VAT payable on completion. While the accommodation is well-proportioned, it shows mid-20th-century character and would benefit from updating or selective refurbishment to suit contemporary tastes.
Overall, this home will appeal to families seeking single-level living on a rare, large plot with excellent outdoor space and flexible ancillary accommodation, as well as buyers looking for development potential close to quality schools and green space.
3 bedroom bungalow for sale in Crockford Drive, Sutton Coldfield, West Midlands, B75 — £535,000 • 3 bed • 1 bath • 953 ft²
2 bedroom detached bungalow for sale in Norfolk Road, Four Oaks, Sutton Coldfield, B75 6SQ, B75 — £450,000 • 2 bed • 2 bath • 1798 ft²
3 bedroom detached bungalow for sale in Musgrave Close, Sutton Coldfield, B76 — £475,000 • 3 bed • 1 bath • 1327 ft²
4 bedroom detached bungalow for sale in Allesley Close, Sutton Coldfield, B74 — £499,950 • 4 bed • 2 bath • 1806 ft²
4 bedroom detached bungalow for sale in Rectory Road, Sutton Coldfield, B75 7RU, B75 — £525,000 • 4 bed • 1 bath • 1443 ft²
3 bedroom detached bungalow for sale in Allesley Close, Sutton Coldfield, B74 — £415,000 • 3 bed • 2 bath


































































































































































