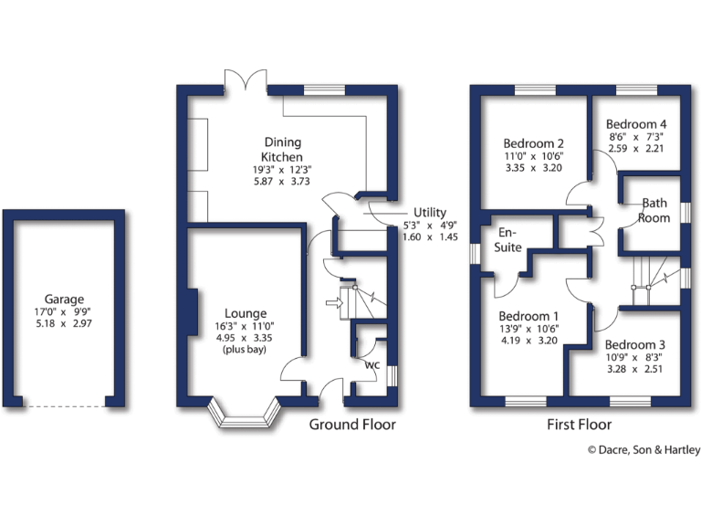
Modern four-bedroom family home with private garden and generous parking.
Four bedrooms including en-suite master
Stylish living/dining kitchen and separate lounge
Private, low-maintenance rear garden with patio
Driveway parking for multiple cars plus single garage
Compact overall internal size: 852 sq ft (small)
Council Tax Band E — above-average local costs
Tenure not confirmed in available data
Fast broadband and excellent mobile signal
Set on the edge of Cullingworth, this modern four-bedroom detached home suits families who value contemporary fittings, outdoor space and convenient parking. The living/dining kitchen and separate lounge provide flexible family areas, while the utility room and cloakroom add everyday practicality. The rear garden is low-maintenance and private — good for children and easy upkeep. Vendor incentives are available.
The property benefits from an en-suite master, a family bathroom and three further bedrooms, all within a compact 852 sq ft footprint. The plot offers decent spacing from neighbours and far-reaching views from parts of the house. A driveway for multiple vehicles plus a single garage with power and lighting provides useful parking and storage.
Buyers should note material facts: the overall internal size is small for a four-bedroom home, and the property is in Council Tax Band E (above average costs). Tenure details are not confirmed in the dataset. The area combines prosperous countryside living with surrounding blue-collar terraces; local services include good primary schools, one nearby secondary rated inadequate, and fast broadband with excellent mobile signal.
This house will appeal to families wanting a move-in-ready, contemporary home with low-maintenance outdoor space, handy commuting links to West and North Yorkshire, and parking for several vehicles. It also suits buyers prepared to accept a compact internal floor area for four bedrooms and the associated running costs of a higher council tax band.
4 bedroom detached house for sale in Hewenden Drive, Cullingworth, Bradford, West Yorkshire, BD13 — £399,950 • 4 bed • 2 bath • 1365 ft²
4 bedroom detached house for sale in Castle Stead Crescent, Cullingworth, Bradford, BD13 — £360,000 • 4 bed • 2 bath • 844 ft²
4 bedroom detached house for sale in The Brow, Cullingworth, Bradford, BD13 — £350,000 • 4 bed • 2 bath • 1307 ft²
4 bedroom detached house for sale in The Brow, Cullingworth, Bradford, West Yorkshire, BD13 — £435,000 • 4 bed • 2 bath • 1572 ft²
4 bedroom detached house for sale in Hewenden Drive Cullingworth, Bradford, West Yorkshire, BD13 5FJ, BD13 — £425,000 • 4 bed • 3 bath • 1390 ft²
4 bedroom detached house for sale in Lodge Street, Cullingworth, Bradford, West Yorkshire, BD13 — £310,000 • 4 bed • 2 bath • 1290 ft²






























































































































