Turnkey luxury family home with show-stopping garden pub and planning permission to extend.
Extensively renovated throughout with high-end bespoke finishes
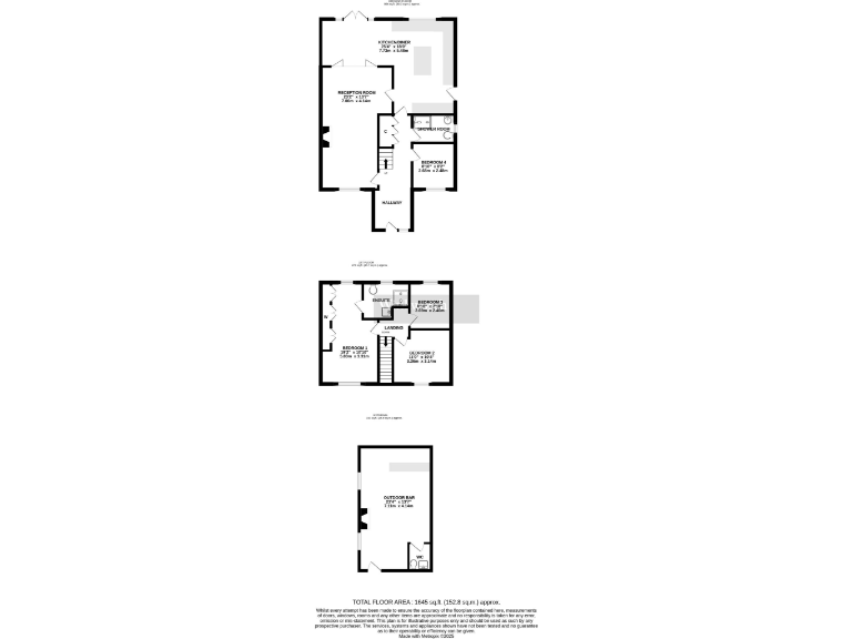
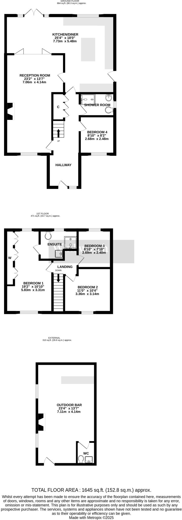
Detached garden pub: insulated, soundproofed, bar, beer pumps, WC
Luxury kitchen with Quooker, integrated appliances, ceiling speakers
Solar panels included and EV charger fitted for lower running costs
Full planning permission to add two bedrooms and a separate WC
Ground-floor bedroom with fitted office furniture and new shower room
Large plot with porcelain patio, artificial lawn and outdoor kitchen
Slow broadband speeds; appliances and services untested — survey advised
This extensively renovated four-bedroom detached house in Poringland offers a turnkey, high-spec living environment on a large plot. The current owners have replaced roofs, windows and exterior finishes, added bespoke interiors and high-end kitchen appliances, and installed solar panels and an EV charger for modern practicality. Outside delivers an entertainer’s dream: porcelain patio, low-maintenance artificial lawn, outdoor kitchen and a fully insulated, soundproofed detached pub with bar, beer pumps and WC.
Internally the layout is flexible for family life or home working. An extended entrance hall leads to a generous main reception and a luxury kitchen/diner with integrated appliances, Quooker tap and ceiling speakers. Ground-floor accommodation includes a versatile bedroom with fitted office furniture and a brand-new shower room; upstairs the principal suite has built-in wardrobes and a hotel-style en-suite. Two loft spaces provide extra storage.
Practical strengths include off-street parking with a resin driveway and electric roller garage door, freehold tenure and full planning permission already granted to extend the first floor for two additional bedrooms and a separate WC. Notable positives such as solar panels (included) and integrated EV charging reduce running costs and future-proof the home.
Important considerations: broadband speeds are reported slow, which may affect heavy home-working or streaming without alternative solutions. While the property has been comprehensively renovated, buyers should satisfy themselves regarding services, systems and appliances as these have not been independently tested. Council Tax sits at a moderate level (Band D).
4 bedroom detached house for sale in Rosebery Avenue, Poringland, Norwich, Norfolk, NR14 — £400,000 • 4 bed • 2 bath • 1512 ft²
4 bedroom detached house for sale in Nelson Close, Poringland, Norwich, Norfolk, NR14 — £400,000 • 4 bed • 2 bath • 1342 ft²
4 bedroom semi-detached house for sale in Rectory Lane, Poringland, Norwich, Norfolk, NR14 — £325,000 • 4 bed • 2 bath • 1431 ft²
4 bedroom bungalow for sale in Poringland Road, Stoke Holy Cross, Norwich, Norfolk, NR14 — £550,000 • 4 bed • 3 bath • 2166 ft²
4 bedroom detached house for sale in Brickle Wood Avenue, Poringland, Norwich, Norfolk, NR14 — £450,000 • 4 bed • 2 bath • 1323 ft²
4 bedroom link detached house for sale in The Ridings, Poringland, Norwich, Norfolk, NR14 — £450,000 • 4 bed • 2 bath • 1365 ft²


















































































































































