Contemporary, move-in-ready house in a popular village near Cambridge.
Extended 21ft kitchen/dining/family room with bifold doors
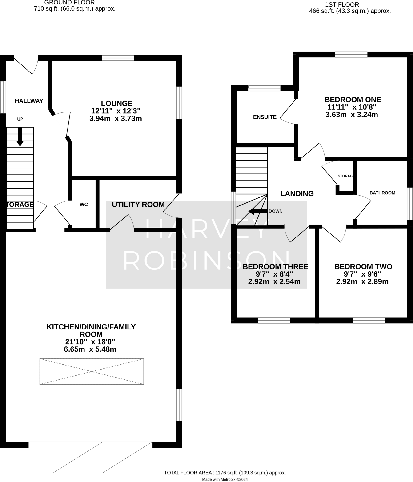
Light-filled and practical, this extended three-bedroom detached home offers modern family living on a generous plot in sought-after Fenstanton. Built in 2016 and extended to provide a 21ft kitchen/dining/family room with bifold doors, the ground floor also includes a separate lounge, utility room and cloakroom — ideal for everyday family routines and entertaining.
Upstairs there are three spacious bedrooms, a family bathroom and a large landing. The principal bedroom benefits from fitted wardrobes and an en-suite, making it a comfortable suite for parents. Outside, a private east-facing garden with lawn, decking, raised beds and access into the single garage creates easy indoor-outdoor flow and practical storage.
Practical features include off-road parking, garage with power and light, a 2016 boiler with service history, EPC rating B, and inclusion within Swavesey Village College catchment. The property is presented in move-in condition and sits within a quiet village with good links to Cambridge and Huntingdon.
Notable points to check: there is an annual estate maintenance charge of approximately £280, the loft is not boarded and has no ladder or light, and the right-hand fence is a shared responsibility. Council tax band D applies. These factual details will affect immediate maintenance and running costs for the next owner.
4 bedroom detached house for sale in Crest Drive, Fenstanton, PE28 — £550,000 • 4 bed • 2 bath • 1722 ft²
4 bedroom detached house for sale in Chequers Close, Fenstanton, PE28 — £500,000 • 4 bed • 2 bath • 1979 ft²
4 bedroom detached house for sale in Pitfield Close, Fenstanton, Huntingdon, PE28 — £500,000 • 4 bed • 2 bath • 1648 ft²
5 bedroom detached house for sale in Hampton Close, Fenstanton, Huntingdon, Cambridgeshire, PE28 — £800,000 • 5 bed • 3 bath • 2533 ft²
3 bedroom semi-detached house for sale in Little Moor, Fenstanton, Huntingdon, Cambridgeshire, PE28 — £325,000 • 3 bed • 1 bath • 1742 ft²
4 bedroom detached house for sale in Park Close, Fenstanton, Cambridgeshire, PE28 — £500,000 • 4 bed • 2 bath • 1589 ft²






















































































