Compact modern flat moments from Selhurst and Norwood Junction stations.
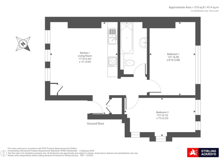
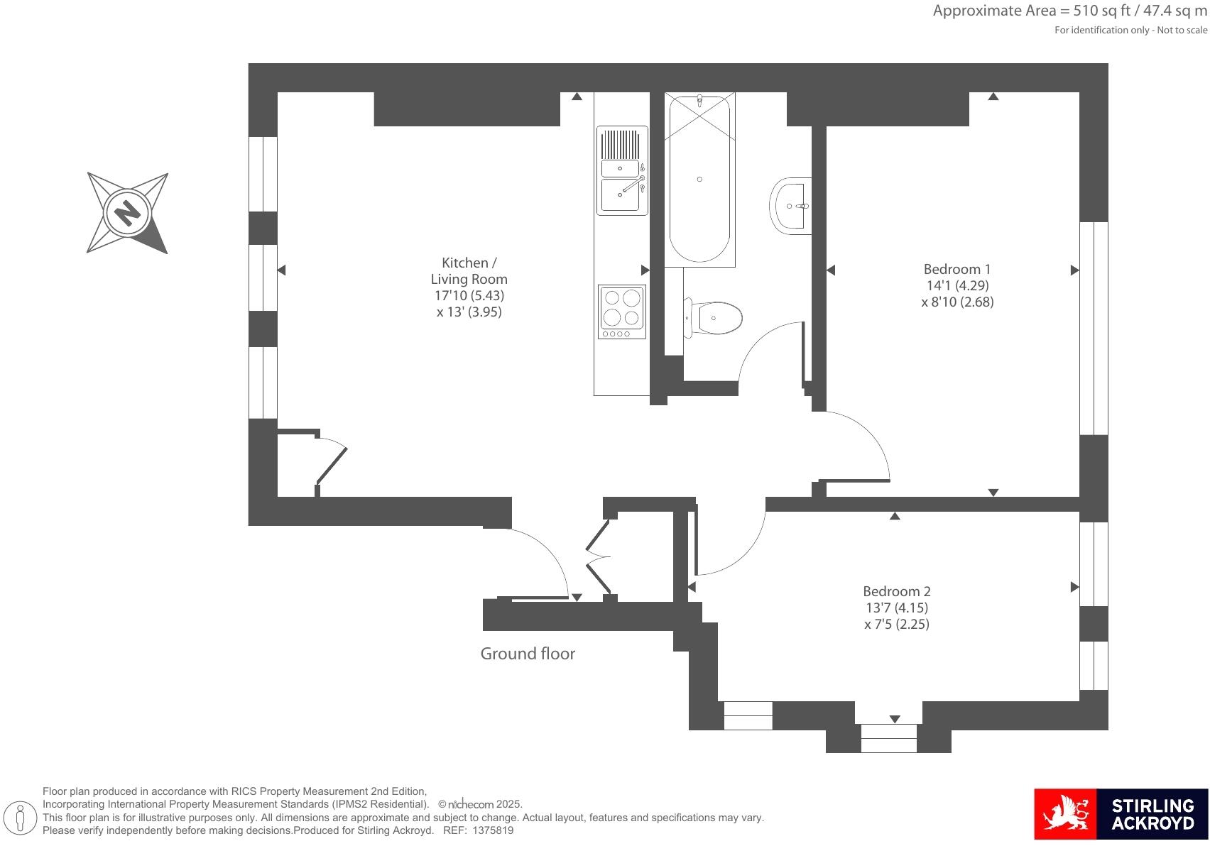
Two double bedrooms and open-plan reception room
A compact, well-presented two-double-bedroom ground-floor apartment offering contemporary living in a convenient South London location. The open-plan reception and modern kitchen create a light, airy feel across the 510 sq ft footprint, while large windows deliver good natural light. Off-street parking and no onward chain add practical appeal for buyers seeking a straightforward move.
This apartment suits first-time buyers or buy-to-let investors looking for a manageable, low-maintenance home close to Selhurst and Norwood Junction stations. The 104-year lease provides long-term security; mains gas central heating and a recently refitted bathroom reduce immediate maintenance needs. Neutral decoration and modern finishes mean the property is largely move-in ready, with scope to add value by modest updating.
Be candid about the trade-offs: the accommodation is small for a two-bedroom and the building is a period terrace with solid brick walls (likely uninsulated) — further insulation or energy upgrades could be needed. The local area has above-average crime and pockets of deprivation, which may affect long-term capital growth. Ground rent is £396 and the tenure is leasehold. Prospective buyers should weigh transport convenience and rental demand against size and neighbourhood factors.
2 bedroom apartment for sale in Bungalow Road, London, SE25 — £270,000 • 2 bed • 1 bath • 618 ft²
2 bedroom apartment for sale in Dagnall Park, London, SE25 — £300,000 • 2 bed • 1 bath • 786 ft²
2 bedroom apartment for sale in Weighton Road, London, SE20 — £300,000 • 2 bed • 1 bath • 459 ft²
2 bedroom apartment for sale in Suffolk Road, London, SE25 — £225,000 • 2 bed • 1 bath • 788 ft²
1 bedroom apartment for sale in Whitehorse Lane, London, SE25 — £250,000 • 1 bed • 1 bath • 544 ft²
2 bedroom flat for sale in Birchanger Road, London, SE25 — £375,000 • 2 bed • 1 bath • 797 ft²






































































