**Standout Features:**
- Substantial detached dormer bungalow
- Three excellent bedrooms and two modern bathrooms
- Versatile, bright, and light layout
- Immaculate contemporary interiors
- Private off-street parking with accessible rear access
- Generous lawned gardens with attractive wall boundary
- Close proximity to pleasant tree-lined walks
- Convenient access to the A580
- EPC rating: C
- Freehold tenure
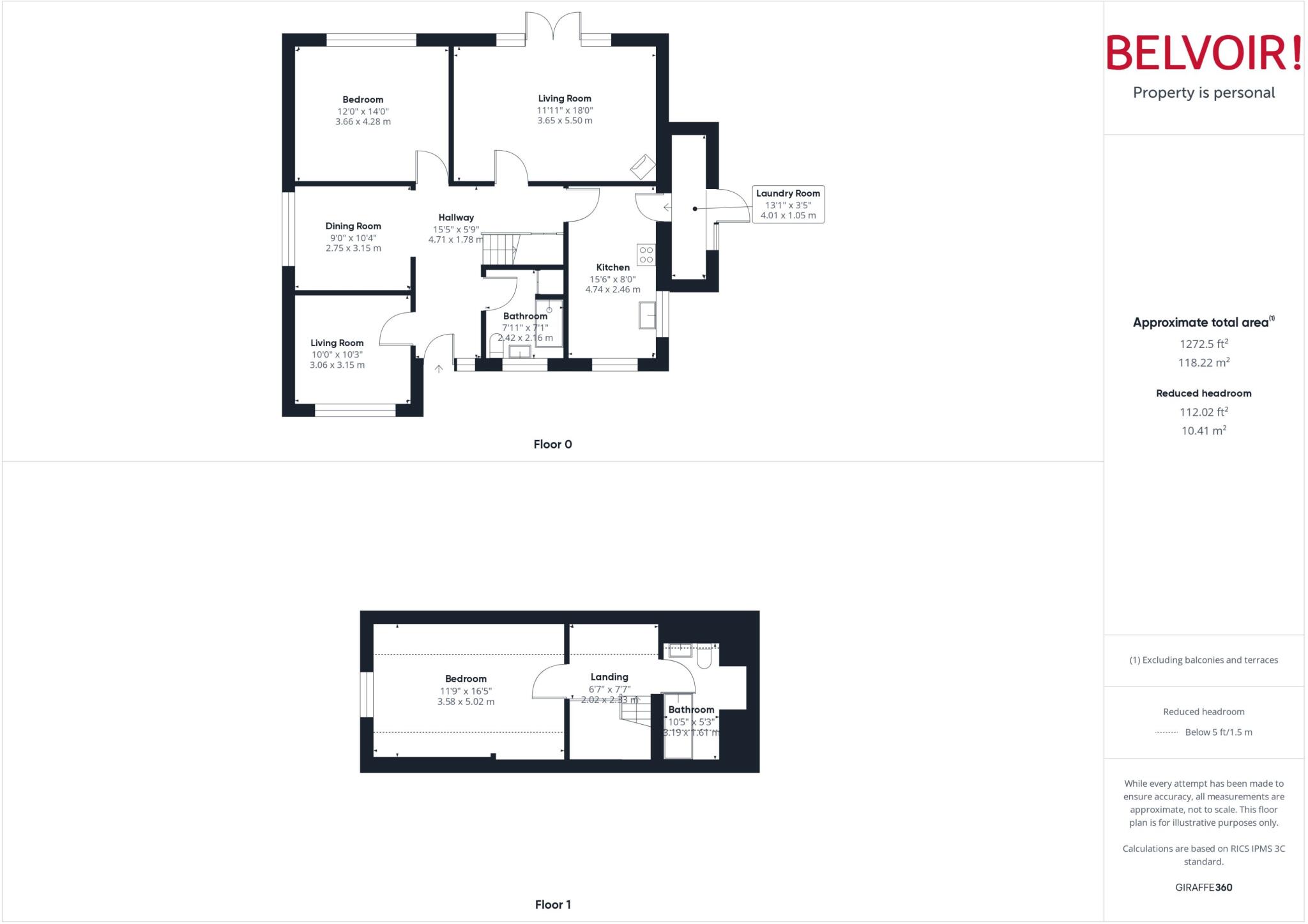
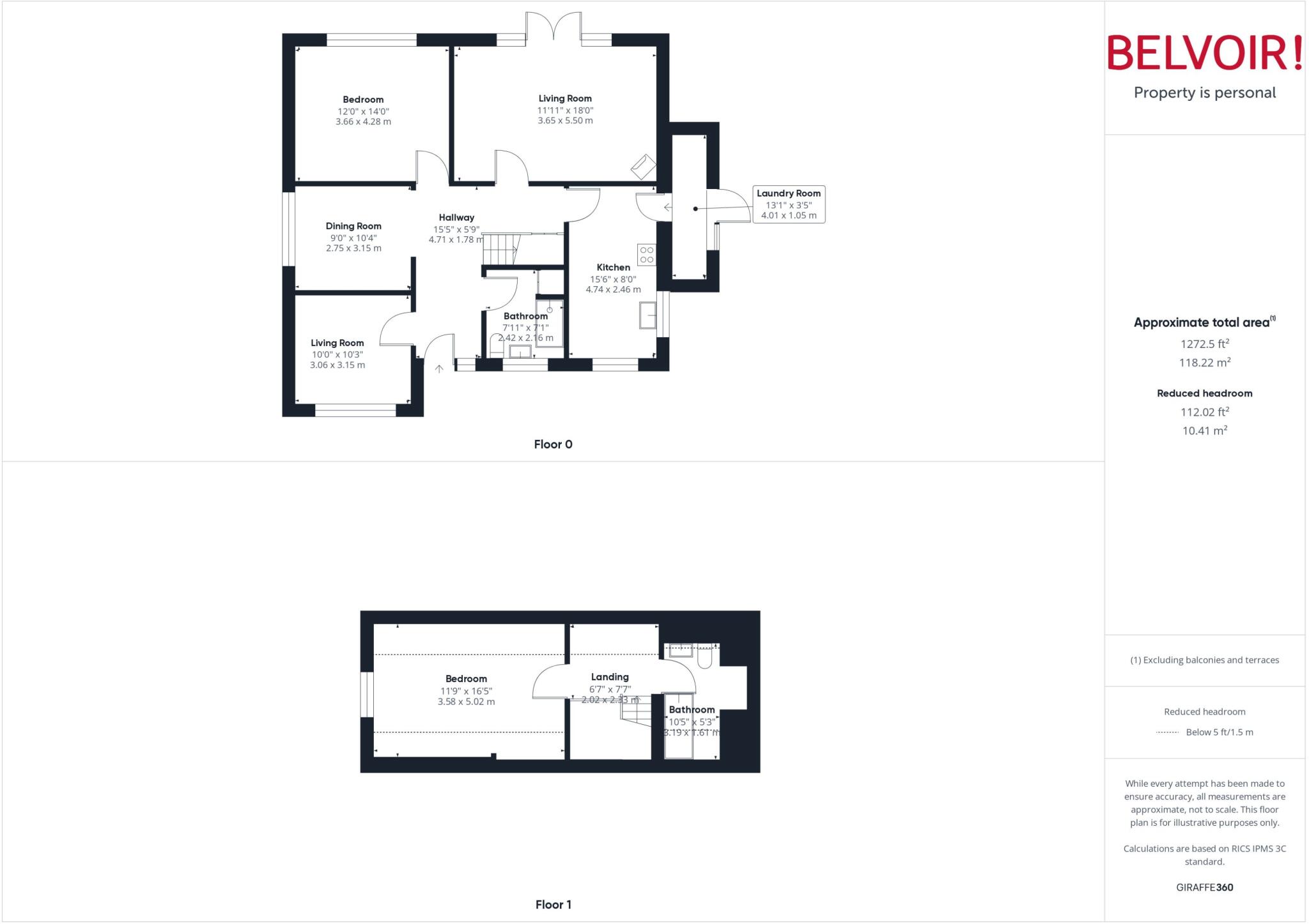
This impressive three-bedroom detached dormer bungalow in the serene Moss Bank area presents a blend of comfort and functionality. With a well-thought-out floor plan featuring a welcoming reception, a bright lounge that doubles as a potential bedroom, an elegant dining area, and a cozy family room overlooking a spacious garden, this home offers versatile living options for families or individuals alike. The contemporary kitchen is fully refitted and includes a practical utility room, while modern bathrooms enhance convenience on both levels.
Set on a sizeable elevated plot, this property boasts substantial garden space, perfect for outdoor activities and family gatherings. The added bonus of private off-street parking at the rear ensures ease of access. Nearby, you'll find highly rated schools such as St Peter and St Paul Catholic Primary, which boasts an Outstanding Ofsted rating, making it ideal for families seeking quality education options.
While the area is experiencing some economic challenges, the low crime rate and community-oriented environment make it a secure choice. Embrace this unique opportunity to own a modern bungalow—characterized by light-filled spaces and potential for future enhancements. Homes of this caliber are not available for long; don't miss your chance to create lasting memories in this inviting residence.
3 bedroom semi-detached bungalow for sale in Broad Lane, St. Helens, Merseyside, WA11 — £325,000 • 3 bed • 1 bath • 1331 ft²
3 bedroom semi-detached bungalow for sale in Troutbeck Grove, St. Helens, Merseyside, WA11 — £270,000 • 3 bed • 1 bath • 1086 ft²
4 bedroom detached house for sale in Moss Bank Road, Moss Bank, St Helens, WA11 — £420,000 • 4 bed • 2 bath • 2150 ft²
3 bedroom bungalow for sale in Chantry Walk, Ashton-In-Makerfield, WN4 — £250,000 • 3 bed • 1 bath • 1158 ft²
3 bedroom semi-detached bungalow for sale in Upland Drive, Ashton-In-Makerfield, WN4 — £180,000 • 3 bed • 1 bath • 721 ft²
3 bedroom detached bungalow for sale in Woodlands Road, St. Helens, WA11 — £180,000 • 3 bed • 1 bath • 1001 ft²






































































































































































































































































































































































