Dramatic vaulted interior with planning permission in picturesque Dorset village.
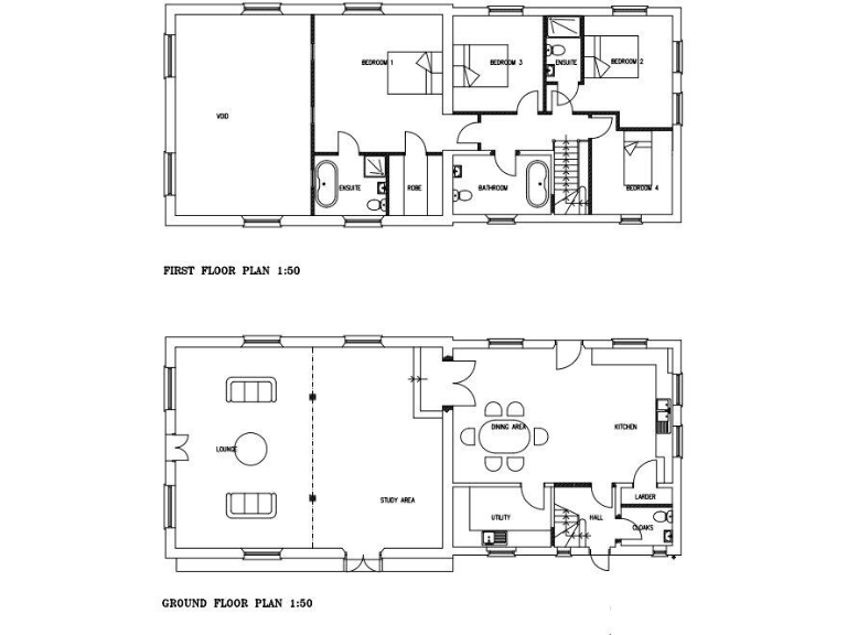
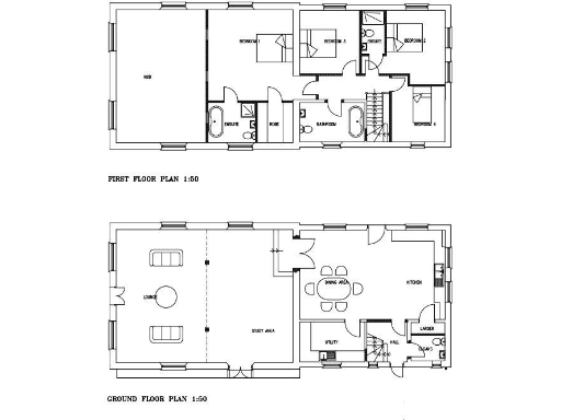
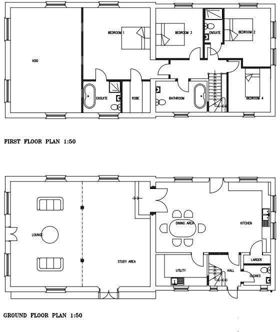
Full planning permission for 3–4 bedroom conversion (ref: P/FUL/024/04434)
An unusually spacious former Methodist chapel dating from 1863, this detached property sits in the heart of Hazelbury Bryan and comes with full planning permission to create a three- or four-bedroom home. The main hall and adjoining school room deliver dramatic double-height windows and vaulted ceilings, giving exceptional natural light and room volume for an impressive living space. The plot is approximately 0.2 acres with private parking for several vehicles and mature boundaries; an additional 0.2-acre parcel is available by separate negotiation.
Full planning permission (ref: P/FUL/024/04434) has been granted for residential conversion, so a buyer can progress to a bespoke family home rather than seeking consent. Mains water, electricity and drainage are connected, broadband speeds are fast and mobile signal is excellent — practical advantages in a rural setting. At about 1,509 sq ft the property offers generous internal space to execute the approved layout including multiple bathrooms, utility and sizeable reception areas.
Important considerations: the building is currently a former chapel with a single-bedroom configuration and some existing ancillary rooms; conversion work is required to complete the approved residential layout and fit-out. There is no EPC or council tax band yet recorded. The village location is peaceful and well served for local essentials, but transport links are rural and nearby mainline stations are in Gillingham or Sherborne.
This is best suited to a buyer seeking a character home with volume and a clear route to convert — families wanting distinctive living space, or purchasers looking to deliver a sympathetic restoration. The combination of historic features, planning permission and a large garden makes this a rare opportunity in a popular Dorset village.
3 bedroom detached house for sale in North Street, Winterborne Stickland, Blandford Forum, DT11 — £465,000 • 3 bed • 2 bath • 1754 ft²
3 bedroom detached house for sale in Chapel Cottage, Okeford Fitzpaine, Dorset, DT11 — £475,000 • 3 bed • 2 bath • 1410 ft²
Plot for sale in Street Lane, Longburton, Sherborne, Dorset, DT9 — £100,000 • 1 bed • 1 bath • 761 ft²
3 bedroom detached house for sale in Milton Abbas, Blandford, Dorset, DT11 — £650,000 • 3 bed • 2 bath • 2000 ft²
2 bedroom detached house for sale in Manor Farm Close, Pimperne, Blandford Forum, DT11 — £400,000 • 2 bed • 1 bath • 688 ft²
4 bedroom cottage for sale in The Cross, Shillingstone, Blandford Forum, DT11 — £475,000 • 4 bed • 2 bath • 1900 ft²


















































