High-spec family living in a peaceful, well-connected Church Crookham setting.
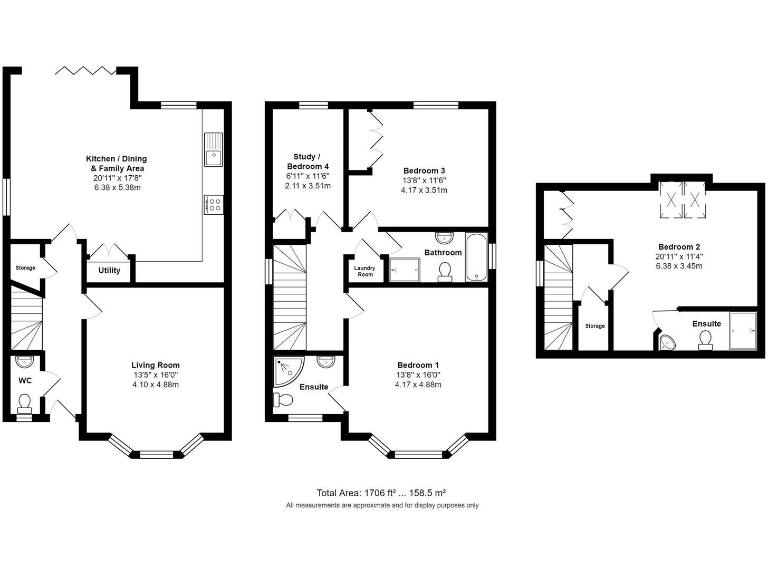
- Three-storey detached house, 1,706 sq ft (approx.)
- Three bedrooms plus large study / potential fourth bedroom
- High-spec Benchmark kitchens, integrated appliances, pantry
- Underfloor heating and herringbone flooring on ground floor
- Three private parking spaces; double or single car barn by plot
- Private garden with patio, 5'x4' shed and four bike racks
- New build — final snagging and finish checks likely required
- Freehold; council tax banding not yet confirmed
Churchdale presents four high-spec detached homes on large plots in sought-after Church Crookham. Each three-storey house offers three bedrooms plus a large study, generous living space across 1,706 sq ft and a private garden — a practical layout for growing families who need flexible rooms and home‑working space.
Interiors are finished to a premium standard with underfloor heating, herringbone flooring on the ground floor, Benchmark kitchens with integrated appliances, built-in storage and en-suites to main bedrooms. Practical extras include a pantry, utility cupboard with stacked washer/dryer, discreet laundry chute, and three dedicated parking spaces per home (combination of open and covered/car barn depending on plot).
Plots back onto mature greenery and benefit from private patios, a shed and four bike racks — ideal for active families. The location combines village calm with strong transport links: Fleet station and the M3 are easily reached and good local schools and green spaces are nearby.
As a new-build development of only four homes this is a limited opportunity; buyers should allow for the usual new-build snagging and finish checks. Plot layouts vary (single or double car barn options) and council tax banding is not yet confirmed.
4 bedroom semi-detached house for sale in Off Redfields Lane,
Church Crookham,
Fleet,
GU52 0RL, GU52 — £630,000 • 4 bed • 1 bath • 660 ft²
4 bedroom detached house for sale in Orchid Mews Off Redfields Lane,
Church Crookham,
GU520RL, GU52 — £700,000 • 4 bed • 1 bath
4 bedroom detached house for sale in Hitches Lane, Fleet, GU51 — £855,000 • 4 bed • 3 bath • 1543 ft²
2 bedroom semi-detached house for sale in Hitches Lane, Fleet, GU51 — £505,000 • 2 bed • 1 bath • 775 ft²
4 bedroom detached house for sale in Hitches Lane,
Crookham Village,
Fleet,
GU51 — £910,000 • 4 bed • 2 bath • 1577 ft²
4 bedroom detached house for sale in Browning Road, Church Crookham, GU52 — £725,000 • 4 bed • 2 bath • 1985 ft²














































































































