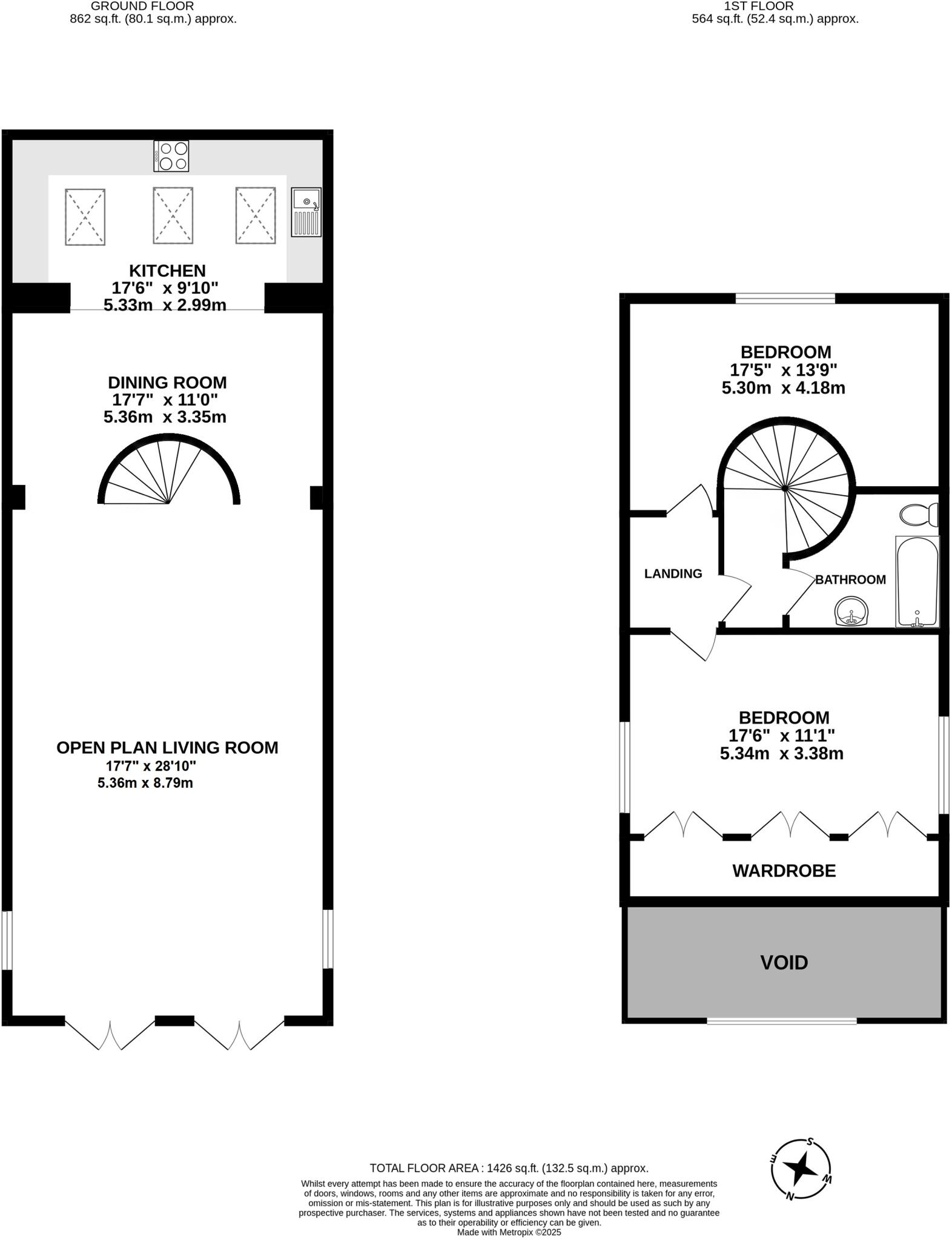
**Standout Features:**
- Converted Victorian school house with unique architectural charm
- Two double bedrooms, including a striking mezzanine master suite
- Expansive open-plan living/dining area with vaulted ceilings and original features
- Fully fitted kitchen enhanced by overhead skylights
- Allocated parking for two vehicles and a small front garden
- Chain-free sale, offering immediate availability
- Potential for a serene second home or family residence
**Concise Summary:**
Step into this extraordinary terraced house in the heart of Holt, a beautifully converted Victorian school house that harmoniously blends historic elegance with modern comfort. Spanning 1,426 sq. ft., the property boasts an impressive open-plan living and dining area, featuring soaring vaulted ceilings, exposed beams, and a striking spiral staircase—a perfect setting for gatherings or quiet evenings at home. The stylish mezzanine master bedroom offers a unique retreat, while an additional well-sized double bedroom accommodates family or guests effortlessly.
Nestled in a quaint neighborhood close to local amenities, this home is ideal for a family or a second residence and comes with the unique advantage of being chain-free. The small front garden, together with allocated parking for two cars, adds to the property’s appeal. Although the local area has above-average crime rates, the excellent mobile signal and accessible amenities provide convenience and comfort. This distinctive home is a rare find and is ready for you to make it uniquely yours—don’t miss out on the opportunity to embrace this charming lifestyle!
6 bedroom character property for sale in Norwich Road, Holt, NR25 — £895,000 • 6 bed • 2 bath • 3000 ft²
2 bedroom character property for sale in New Street, Holt, NR25 — £235,000 • 2 bed • 1 bath • 560 ft²
5 bedroom detached house for sale in New Street, Holt, Norfolk, NR25 — £1,195,000 • 5 bed • 4 bath • 3103 ft²
2 bedroom chalet for sale in Town Close, Holt, Norfolk, NR25 — £375,000 • 2 bed • 2 bath • 1142 ft²
2 bedroom terraced house for sale in New Street, Holt, NR25 — £325,000 • 2 bed • 1 bath • 722 ft²
2 bedroom end of terrace house for sale in Weston Square, Holt, NR25 — £290,000 • 2 bed • 1 bath • 463 ft²


















































































































