BB7 2NQ - 3 bed spacious stone terrace in Ribble Valley, BB7 2NQ

View on Property Piper

3 bedroom terraced house for sale in Nelson Street, Clitheroe, BB7

Summary - Nelson Street, Clitheroe, BB7 BB7 2NQ

3 bed 1 bath Terraced

Deceptive three-floor stone cottage with workshop and renovation potential.
Stone-built Victorian terrace with substantial, deceptive three-floor accommodation
Open-plan lounge and dining kitchen; useful utility and 2-piece cloakroom
Three double bedrooms plus hobby/office area ideal for home working
Large powered rear workshop with external access and storage potential
Gas central heating and PVC double glazing already installed
Very small rear plot; limited outdoor space and on-street parking only
Walls likely uninsulated (built of sandstone/limestone) — potential insulation work
EPC rating D; some internal updating and modernisation required
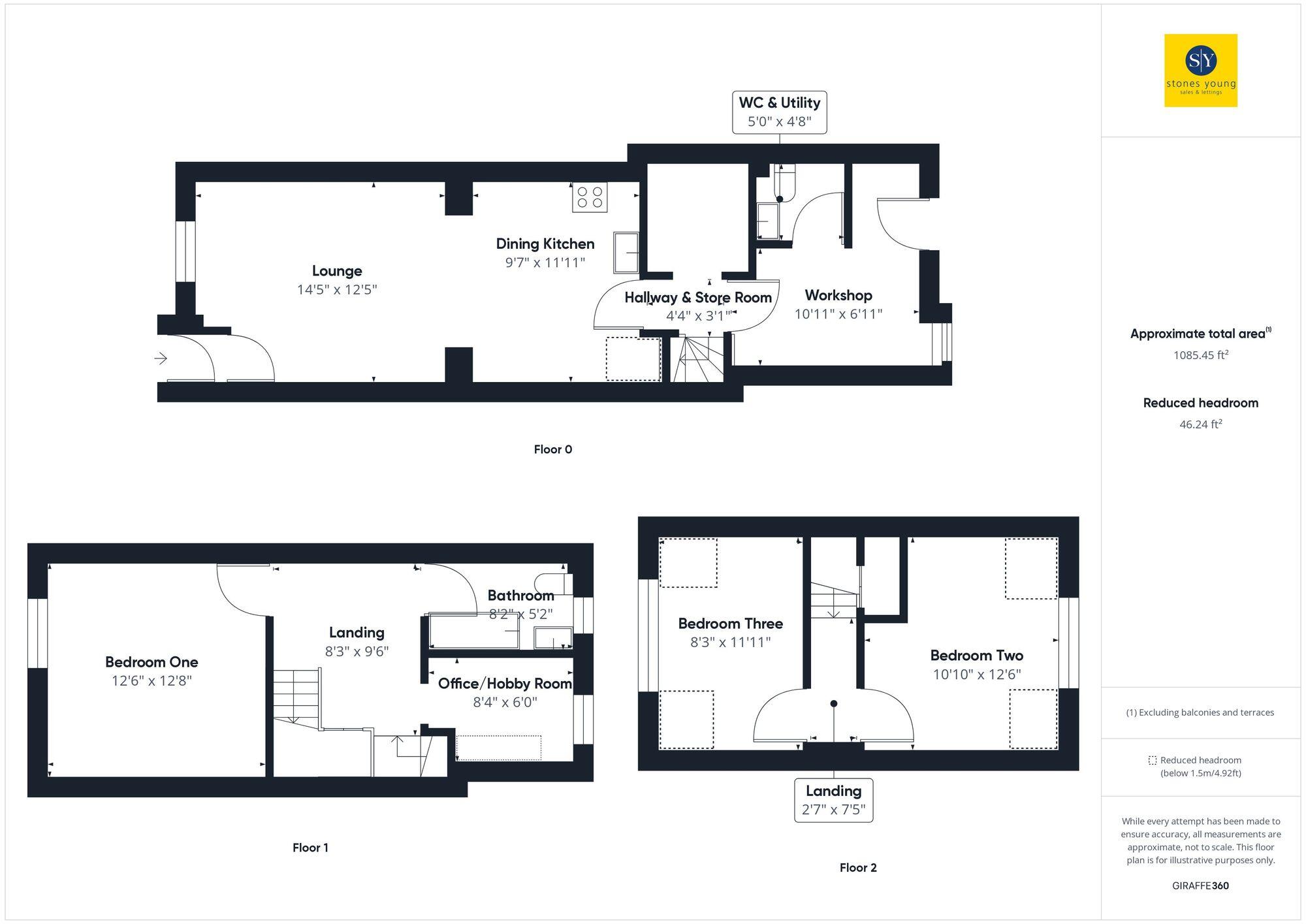
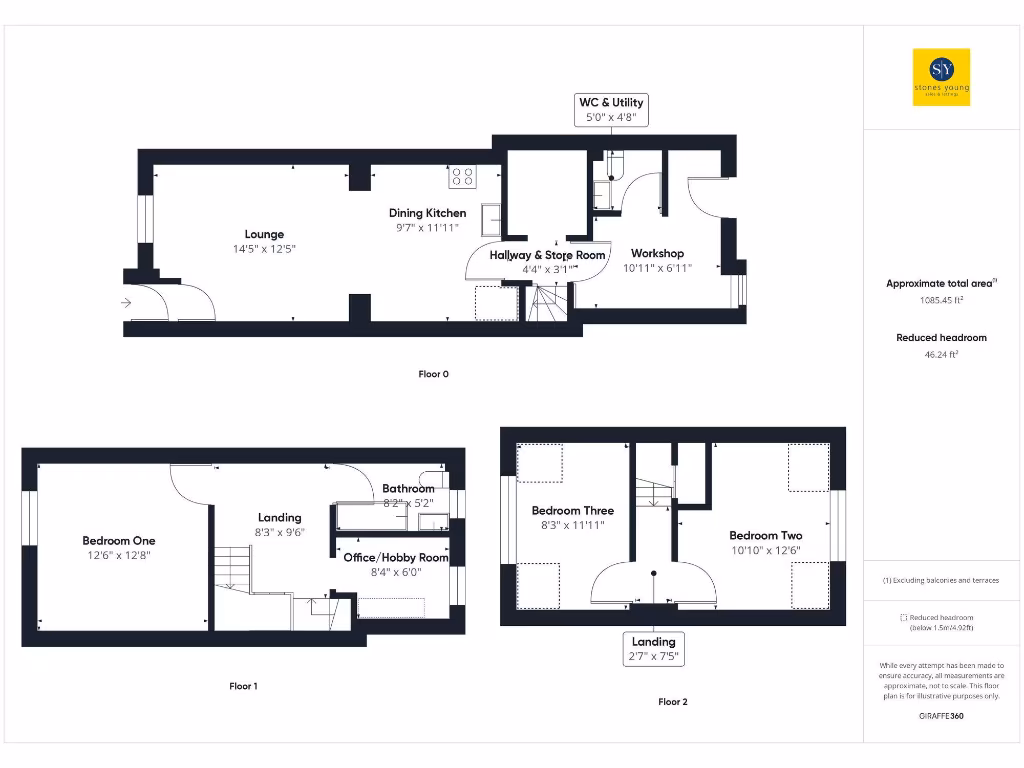
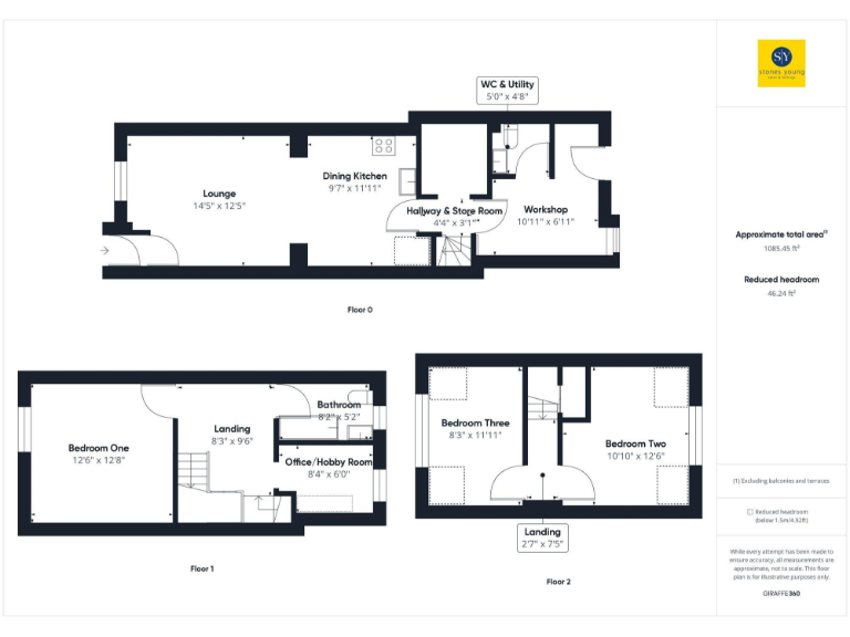
This substantial stone-built terraced cottage offers deceptively generous accommodation arranged over three floors, ideal for a family seeking adaptable space on the town’s outskirts. The ground floor’s open-plan lounge and dining kitchen creates a sociable heart, while a separate utility and two-piece cloakroom add practical convenience.

Upstairs are three double bedrooms, a large landing and a flexible hobby/office area that suits home working or a play space. A large rear workshop with power and lighting and external access is a rare, useful feature for storage, hobbies or small-scale projects. Gas central heating and PVC double glazing are already in place.

The property has clear further potential for improvement and modernisation: some internal decor is dated, the stone walls are assumed uninsulated and the EPC is a D. Outdoor space is very small and parking is on-street, so buyers wanting a garden or off-street parking should note those limits.

Freehold tenure, sensible internal layout and proximity to good local schools and open countryside make this an attractive buy for families or buyers wanting a roomy period home to renovate and personalise. Early viewing is recommended to appreciate the size and flexible potential.

Property Details

Brochure Descriptions

Image Descriptions

Floorplan Description

Rooms

Textual Property Features

Target Audience

AI Tags

Detected Visual Features

EPC Details

Nearby Schools

Nearest Bars And Restaurants

,,,,}

Nearest General Shops

,,}

Nearest Grocery shops

,,}

Nearest Supermarkets

,,}

Nearest Religious buildings

,,}

Nearest Medical buildings

,,,}

Nearest Leisure Facilities

,,,,}

Nearest Tourist attractions

,,}

Nearest Train stations

,,,,}

Nearest Bus stations and stops

,,,,}

Nearest Hotels

,,}

Tags

Local Market Stats

Similar Properties

Meta

High Res Images

Compatible Images

Low res Images

Thumbnails

Raw Images

High Res Floorplan Images

Compatible Floorplan Images

Low res Floorplan Images

FloorplanImages Thumbnail

Raw Floorplan Images