Spacious single-storey living with half-acre garden and long rural views.
- Fully renovated throughout with new kitchen, bathrooms and full rewire
- Half acre wrap-around garden backing onto open fields
- In-and-out driveway with parking for 10+ vehicles
- Detached outbuilding/workshop with development potential (subject to permission)
- Bedroom 1 with private access; potential annex or Airbnb use
- Oil-fired heating and private septic tank (practical running costs)
- Council Tax Band E (above average)
- Full fibre available but broadband performance currently slow
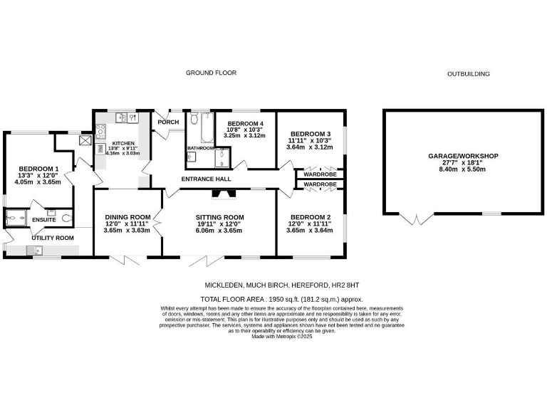
A substantially renovated four-bedroom detached bungalow set in about half an acre of wrap-around gardens, backing onto open fields with far-reaching countryside views. The property has been fully refurbished to a high standard with a new kitchen, bathrooms, flooring, joinery and a complete electrical rewire. Practical extras include underfloor heating in the wet rooms, new boiler and oil-fired central heating, bi-fold doors to the patio and parking for 10+ vehicles on an in-and-out driveway.
The layout is single-storey living with generous reception rooms, a utility/boiler room and a principal bedroom with ensuite and private access — making the property suitable for multi-generational use, a separate annex or short-stay rental subject to planning and regulatory approvals. A large detached outbuilding/workshop sits to the side and has potential for development, subject to relevant planning permission.
Notable practical points: the house uses oil heating and discharges to a private septic tank; council tax is Band E (above average); broadband performance is currently listed as slow despite full fibre availability; and any conversion of the outbuilding requires formal planning consent. The property is offered freehold with no onward chain and sits at the end of a private lane near village facilities including a GP surgery and primary school.
3 bedroom detached bungalow for sale in Ashfield, Much Birch, Hereford, Herefordshire, HR2 — £675,000 • 3 bed • 2 bath • 2814 ft²
3 bedroom detached house for sale in Much Birch, Hereford, HR2 — £350,000 • 3 bed • 2 bath • 1390 ft²
3 bedroom detached bungalow for sale in Tump Lane, Much Birch, Hereford, HR2 — £465,000 • 3 bed • 1 bath • 1822 ft²
3 bedroom detached bungalow for sale in Laskett Lane, Much Birch, Hereford, HR2 — £400,000 • 3 bed • 2 bath • 907 ft²
4 bedroom detached house for sale in Little Birch, Hereford, Herefordshire, HR2 — £650,000 • 4 bed • 3 bath • 1709 ft²
3 bedroom detached house for sale in Winslow, Bromyard, HR7 4LP, HR7 — £475,000 • 3 bed • 2 bath • 1486 ft²


























































































































































