Three-bedroom 1930s semi with period bay windows
Set on a popular residential road in Sprotbrough, this traditional 1930s semi‑detached house offers a comfortable family layout across two storeys. The property benefits from bay‑fronted reception rooms, high ceilings and good natural light to the front, plus a long driveway and larger‑than‑average rear garden — a rare combination for this street. Chain‑free and freehold, it’s ready for immediate occupation or uncomplicated modernisation.
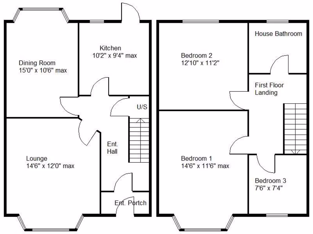
Internally the home provides two good-sized reception rooms, a fitted kitchen and three bedrooms served by a single family bathroom. Practical details include gas central heating, PVC double glazing and useful built-in storage beneath the stairs. Broadband and mobile connectivity are strong, and local schools and amenities are within easy reach, making the location particularly family-friendly.
The house presents clear scope to update and personalise: some double glazing units pre‑date 2002, external cavity walls appear uninsulated (assumed) and the boiler age is not confirmed. Buyers seeking a turnkey property may want to budget for modernisation; for those looking to add value, the long garden and off‑street parking create extension or landscaping potential (subject to consents).
Overall this is a well‑positioned period home in a very affluent, low‑crime neighbourhood. It will suit family buyers wanting space and schools nearby, or investors/developers who prefer a property with renovation upside and strong local demand.











































































