Modern 1-bed new-build with balcony and NHBC warranty — ideal for first-time buyers..
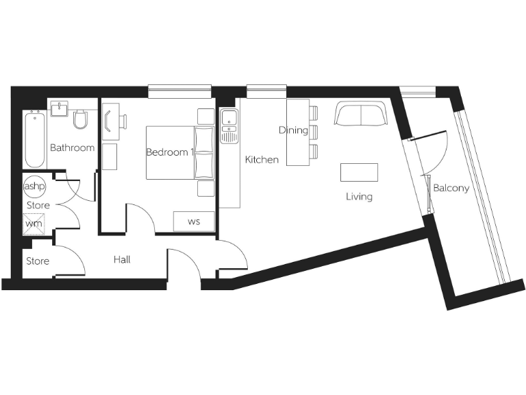
- Open-plan living, dining and kitchen with bifold doors to balcony
- One double bedroom with two storage cupboards
- Integrated kitchen appliances and breakfast bar
- 570 sq ft — compact, efficient new-build layout
- 999-year lease and 10-year NHBC Buildmark protection
- Annual service charge approx. £1,072.34; estate charge £165
- Very high local crime levels; area classified as deprived
- Council tax band TBC; leasehold communal costs apply
This one-bedroom new-build apartment (Plot 40, The Avon) offers a compact, low-maintenance city home with an open-plan living, dining and kitchen that opens onto a sizeable balcony. The integrated kitchen appliances, breakfast bar and bifold doors create a modern, light-filled living space suited to everyday life and home working. At around 570 sq ft the layout makes efficient use of space with two storage cupboards and a double bedroom big enough for a bed, wardrobe and a small desk.
Practical protections include a 10-year NHBC Buildmark policy and a 999-year lease. Stamp Duty relief on the first £125,000 of the purchase (and first-time buyer relief to £300,000) can reduce upfront costs for eligible buyers. Annual service charge is currently estimated at £1,072.34 with a small estate management charge; ground rent is peppercorn.
Buyers should note material negatives plainly: the development sits in an area with very high recorded crime levels and is classified as deprived, which may affect personal safety perceptions and resale prospects. Council tax band is to be confirmed. This apartment is leasehold and has communal service charges to budget for.
Overall, the property suits a first-time buyer or investor seeking a modern, low-upkeep city base with warranty protection and good connectivity to Reading. Those prioritising low-crime, affluent neighbourhoods or gardens should weigh location factors carefully before viewing.
1 bedroom apartment for sale in Caversham Road,
Caversham,
Reading,
RG1 8AR, RG1 — £290,000 • 1 bed • 1 bath • 590 ft²
1 bedroom apartment for sale in Caversham Road,
Caversham,
Reading,
RG1 8AR, RG1 — £282,500 • 1 bed • 1 bath • 560 ft²
1 bedroom apartment for sale in Caversham Road,
Caversham,
Reading,
RG1 8AR, RG1 — £282,500 • 1 bed • 1 bath • 561 ft²
1 bedroom apartment for sale in Caversham Road,
Caversham,
Reading,
RG1 8AR, RG1 — £285,000 • 1 bed • 1 bath • 590 ft²
1 bedroom apartment for sale in Caversham Road,
Caversham,
Reading,
RG1 8AR, RG1 — £285,000 • 1 bed • 1 bath • 560 ft²
1 bedroom apartment for sale in Caversham Road,
Caversham,
Reading,
RG1 8AR, RG1 — £282,500 • 1 bed • 1 bath • 570 ft²


































