B36 0EJ - 3 bedroom semidetached house for sale in Marlborough Road,…

View on Property Piper

3 bedroom semi-detached house for sale in Marlborough Road, Castle Bromwich, Birmingham, B36

Summary - 41 MARLBOROUGH ROAD CASTLE BROMWICH BIRMINGHAM B36 0EJ

3 bed 1 bath Semi-Detached

**Standout Features:**
- Three spacious bedrooms.
- Modern refitted kitchen/diner with integrated appliances.
- Convenient utility area and downstairs W/C.
- Stylish lounge with a large bay window.
- Refitted family bathroom with freestanding bath and shower.
- Off-road parking and a rear garden.
- Low crime area in an affluent suburb.
- Excellent broadband and mobile connectivity.

**Potential Concerns:**
- Solid brick walls may lack insulation.
- Property size is modest at 657 sq ft.
- EPC Rating: F may imply need for future energy improvements.

Step into this beautifully presented semi-detached home in a sought-after suburb, perfect for families seeking comfort and functionality. With three generous bedrooms, a contemporary lounge featuring a charming bay window, and a seamlessly designed refitted kitchen/diner, this residence is ideal for entertaining and family living. The utility area and downstairs W/C add to the convenience of daily life, while the refitted family bathroom offers a touch of luxury.

Outside, enjoy the peaceful rear garden that's perfect for children to play or for weekend barbecues, combined with off-road parking upfront for your convenience. Located in a low-crime area with excellent amenities and schools rated as 'Good', this home promises a comfortable lifestyle. Don’t miss out on this opportunity to secure a quality family home—schedule your viewing today and envision your future here!

Property Details

Brochure Descriptions

Image Descriptions

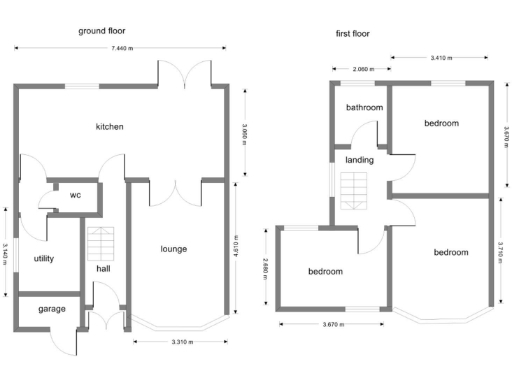
Floorplan Description

Rooms

Textual Property Features

Detected Visual Features

EPC Details

Nearby Schools

Nearest Bars And Restaurants

,,,,}

Nearest General Shops

,,}

Nearest Grocery shops

,,}

Nearest Supermarkets

,,}

Nearest Religious buildings

,,}

Nearest Medical buildings

,,,}

Nearest Airports

}

Nearest Leisure Facilities

,,,,}

Nearest Tourist attractions

,,}

Nearest Train stations

,,,,}

Nearest Bus stations and stops

,,,,}

Nearest Hotels

,,}

Tags

Local Market Stats

Similar Properties

Meta

High Res Images

Compatible Images

Low res Images

Thumbnails

Raw Images

High Res Floorplan Images

Compatible Floorplan Images

Low res Floorplan Images

FloorplanImages Thumbnail

Raw Floorplan Images