Characterful three-bed terrace with garden and flexible lower-ground space.
Victorian mid-terrace with bay windows and high ceilings
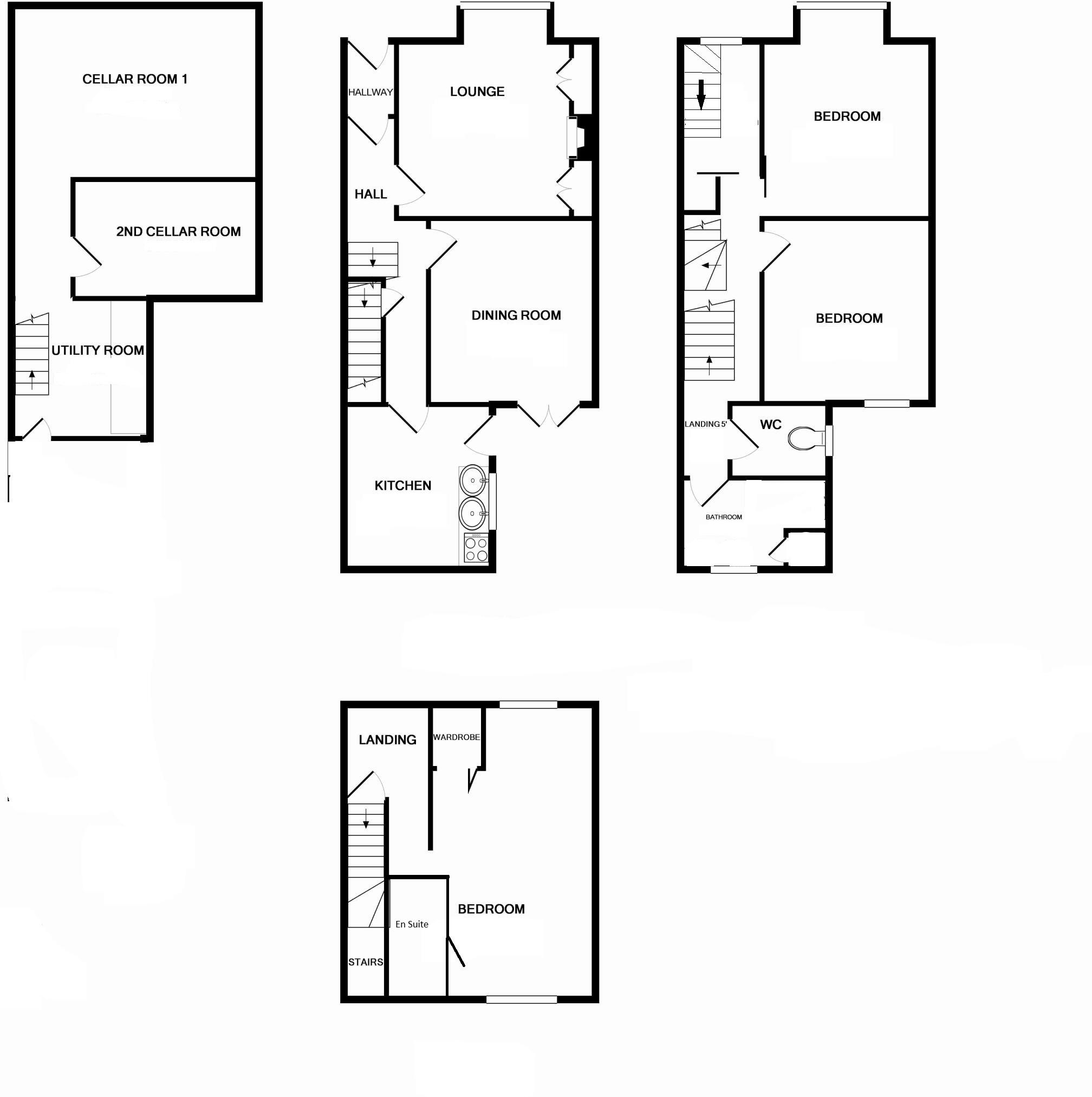
This Victorian mid-terrace on Tolver Road combines period character with practical family living. Three bedrooms include a master with en-suite, and high ceilings and bay windows bring natural light and character to the principal rooms. A flexible lower-ground floor offers scope for a studio or annex subject to necessary consents, giving useful adaptable space for a home office or guest suite.
Outside, the private low-maintenance garden faces a sunny outlook and is easy to manage for busy households. The town-centre location puts schools, shops, bus routes and the train station within easy reach, with good road links via the A30.
Buyers should note material drawbacks plainly: the area records high crime and very high deprivation, and the terrace's granite walls appear to lack insulation which will affect running costs. Double glazing is older (pre-2002) and the lower-ground space will require formal permissions for conversion. Overall this is a well-presented family home with flexible potential, but one that will demand careful consideration of energy efficiency and neighbourhood factors.
3 bedroom terraced house for sale in Menna - Tolver Road - Penzance - 3 Bedroom home with original features and modern upgrades, TR18 — £370,000 • 3 bed • 1 bath • 1399 ft²
5 bedroom terraced house for sale in Tolver Place, Penzance, TR18 — £375,000 • 5 bed • 2 bath • 1862 ft²
4 bedroom terraced house for sale in Redinnick Terrace, Penzance, TR18 — £420,000 • 4 bed • 3 bath • 1548 ft²
4 bedroom terraced house for sale in Cornwall Terrace, Penzance, Cornwall, TR18 — £585,000 • 4 bed • 2 bath • 1714 ft²
3 bedroom end of terrace house for sale in St. Marys Terrace, Penzance, Cornwall, TR18 — £375,000 • 3 bed • 1 bath • 991 ft²
5 bedroom terraced house for sale in Pendarves Road, Penzance, TR18 — £395,000 • 5 bed • 2 bath • 1662 ft²














































































































