Spacious family layout with garden, garage and easy A14 access.
4 bedrooms across three floors including en-suite and family bathroom|Private enclosed rear garden with paved patio|Driveway parking plus garage partially converted to home office|Built 2012 onwards, double glazed, gas boiler and radiators|Juliette balcony adds natural light to upper floor|Small plot and compact room sizes typical of townhouse layout|Easy access to A14, train station and town centre|Local secondary school rated Requires Improvement
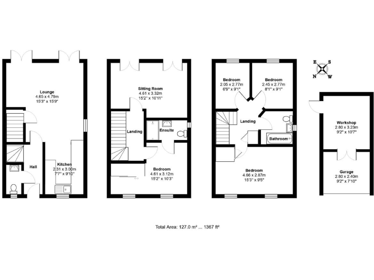
This well-presented, three-level home on Hedge Sparrow Road offers a practical family layout across approximately 1,367 sq ft. The ground floor features an open living/dining kitchen and a WC, while upstairs provide flexible bedrooms including a first-floor living room and an en-suite. A Juliette balcony adds light to the upper floor.
Outside there is private, enclosed rear garden with paved patio, driveway parking and a garage that has been partially converted to create a home office. Built post-2012 with double glazing and gas central heating, the property is low-maintenance and efficient for daily family life.
The location suits commuting and family needs: quick access to the A14, Stowmarket station and town centre amenities, plus several Good-rated primary schools nearby. Note the main secondary school in the area is rated Requires Improvement, which may be a consideration for some buyers.
Practical points: the plot is modest in size and some room proportions are compact, reflecting its modern townhouse footprint. The partially converted garage provides useful workspace but reduces vehicle storage; buyers seeking a full garage should factor this in.
3 bedroom end of terrace house for sale in Guillemot Close, Stowmarket, IP14 — £300,000 • 3 bed • 3 bath • 1048 ft²
3 bedroom semi-detached house for sale in Brooke Way, Stowmarket, Suffolk, IP14 — £325,000 • 3 bed • 2 bath • 1220 ft²
4 bedroom town house for sale in Thorney Hall Close, Stowmarket, IP14 — £300,000 • 4 bed • 2 bath • 1220 ft²
4 bedroom detached house for sale in Naughton Gardens, Stowmarket, IP14 — £340,000 • 4 bed • 2 bath • 1062 ft²
4 bedroom town house for sale in Creeting Road East, Stowmarket, IP14 — £290,000 • 4 bed • 2 bath • 862 ft²
3 bedroom house for sale in 50, Brooke Way, Stowmarket, Suffolk, IP14 1US, IP14 — £320,000 • 3 bed • 2 bath • 1200 ft²










































































































