Vacant possession and no onward chain, ready to occupy after light work
New roof covering — major overhead work recently completed
Large rear garden approx. 70ft with lawn and vegetable area
Gas central heating and double glazing already installed
Kitchen and bathroom require full refit and modernization
Solid brick walls likely lack insulation — upgrade recommended
Shared rear right of way; small front yard and cul‑de‑sac location
Area has above‑average crime and higher local deprivation
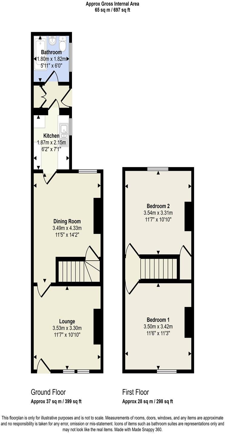
This early‑1900s mid‑terrace offers a straightforward first‑home opportunity for someone willing to carry out a light refurbishment. The house retains period character — cast‑iron fireplaces, original coving and a central chimney breast — and sits in a quiet cul‑de‑sac within walking distance of Long Eaton town centre. Sawley station and the M1 are within easy reach for commuters.
Internally the layout is the classic two‑up, two‑down with two reception rooms, two equal double bedrooms and a single bathroom. The property has gas central heating, double glazing and a newly replaced roof, which reduce immediate maintenance worries. A large rear garden of approximately 70ft offers space for children, pets or a substantial vegetable patch.
The home does require work: the kitchen and bathroom need refitting and some decorative and plaster repairs are visible in places. The house is solid brick and likely has no wall insulation as built; upgrading thermal performance would be a sensible improvement. There is a shared right of way at the rear to note.
Offered with vacant possession and no onward chain, this is a practical buy-for-yourself project for a first‑time buyer or DIY couple who want to add value over time. Local primary schools have good Ofsted ratings, council tax is low (Band A) and broadband and mobile signals are strong — useful for working from home. Be aware the area records above‑average crime and wider local deprivation indicators; buyers should factor this into renovation and security plans.
2 bedroom terraced house for sale in Nathaniel Road, Long Eaton, NG10 1GB, NG10 — £145,000 • 2 bed • 1 bath • 580 ft²
2 bedroom end of terrace house for sale in Nathaniel Road, Long Eaton, Nottingham, Derbyshire, NG10 — £130,000 • 2 bed • 1 bath • 714 ft²
2 bedroom house for sale in Tamworth Road, Long Eaton, Nottingham, NG10 — £150,000 • 2 bed • 1 bath • 760 ft²
2 bedroom terraced house for sale in Nathaniel Road, Long Eaton, NG10 — £150,000 • 2 bed • 1 bath • 700 ft²
3 bedroom semi-detached house for sale in Cranmer Street, Long Eaton, NG10 — £165,000 • 3 bed • 1 bath • 788 ft²
2 bedroom terraced house for sale in William Street, Long Eaton, Nottingham, Derbyshire, NG10 — £160,000 • 2 bed • 1 bath • 586 ft²










































