Luxury single-level living in a peaceful village setting for easy, elegant comfort.
Last available new-build bungalow plot in gated seven-home development
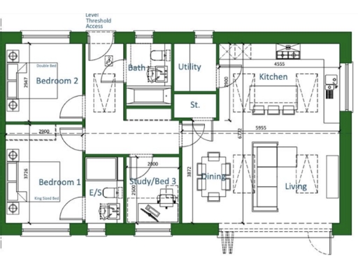
Single-level living with three bedrooms and open-plan living
Underfloor heating and air source heat pump for energy efficiency
German-manufactured kitchen with Silestone worktops and integrated appliances
Large garden backing onto greenbelt with seasonal grazing nearby
Approx 850 sq ft; moderate size for three-bedroom accommodation
Private off-street parking and secure electric gated entrance
Completion scheduled December 2025; purchase is off-plan, build progress applies
Plot 6 at Heron Bank is a high-spec, single-level three-bedroom bungalow finished to an elevated standard and set within a small gated development in tranquil Berkswell. The home offers contemporary open-plan living with rooflights, bi-folding doors and countryside views — ideal for buyers seeking easy, low-maintenance living without sacrificing quality.
Finished with underfloor heating throughout, an air-source heat pump and German-manufactured kitchens with Silestone worktops, this new build comes with a 10-year guarantee and private off-street parking. The large rear garden faces open greenbelt and is bounded by post-and-rail fencing, providing a rural outlook and seasonal grazing nearby.
Important practical points: this is the final new-build plot and completion is scheduled for December 2025, so purchase is off-plan and subject to build progress. The property is semi-detached, offers around 850 sq ft of accommodation (five rooms total), and some buyers may find the overall footprint moderate for three bedrooms. An EPC will be issued as the build progresses.
3 bedroom detached bungalow for sale in 1 Heron Bank, Nailcote Lane, Berkswell, CV7 — £750,000 • 3 bed • 2 bath
3 bedroom detached house for sale in Back Lane, Berkswell PLOT 3, CV7 — £850,000 • 3 bed • 3 bath • 1802 ft²
4 bedroom detached bungalow for sale in Back Lane, Berkswell, Meriden CV7 7SU, CV7 — £900,000 • 4 bed • 3 bath • 1900 ft²
4 bedroom detached bungalow for sale in Back Lane, Berkswell, Meriden CV7 7SU, CV7 — £850,000 • 4 bed • 3 bath • 1900 ft²
4 bedroom detached house for sale in Back Lane, Berkswell, Meriden CV7 7SU, CV7 — £850,000 • 4 bed • 3 bath • 1900 ft²
3 bedroom detached bungalow for sale in Plot 7, Pastures New, Lowbrook Lane, Tidbury Green, B90 1QS, B90 — £675,000 • 3 bed • 3 bath • 1358 ft²






















