Immaculate two-bedroom home with garden room and gated parking.
Freehold two-bedroom semi-detached house
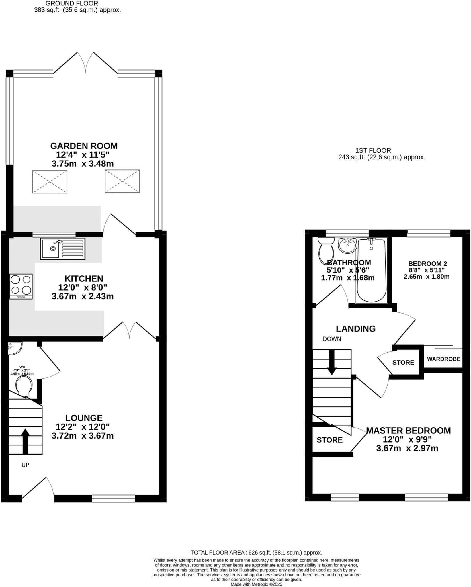
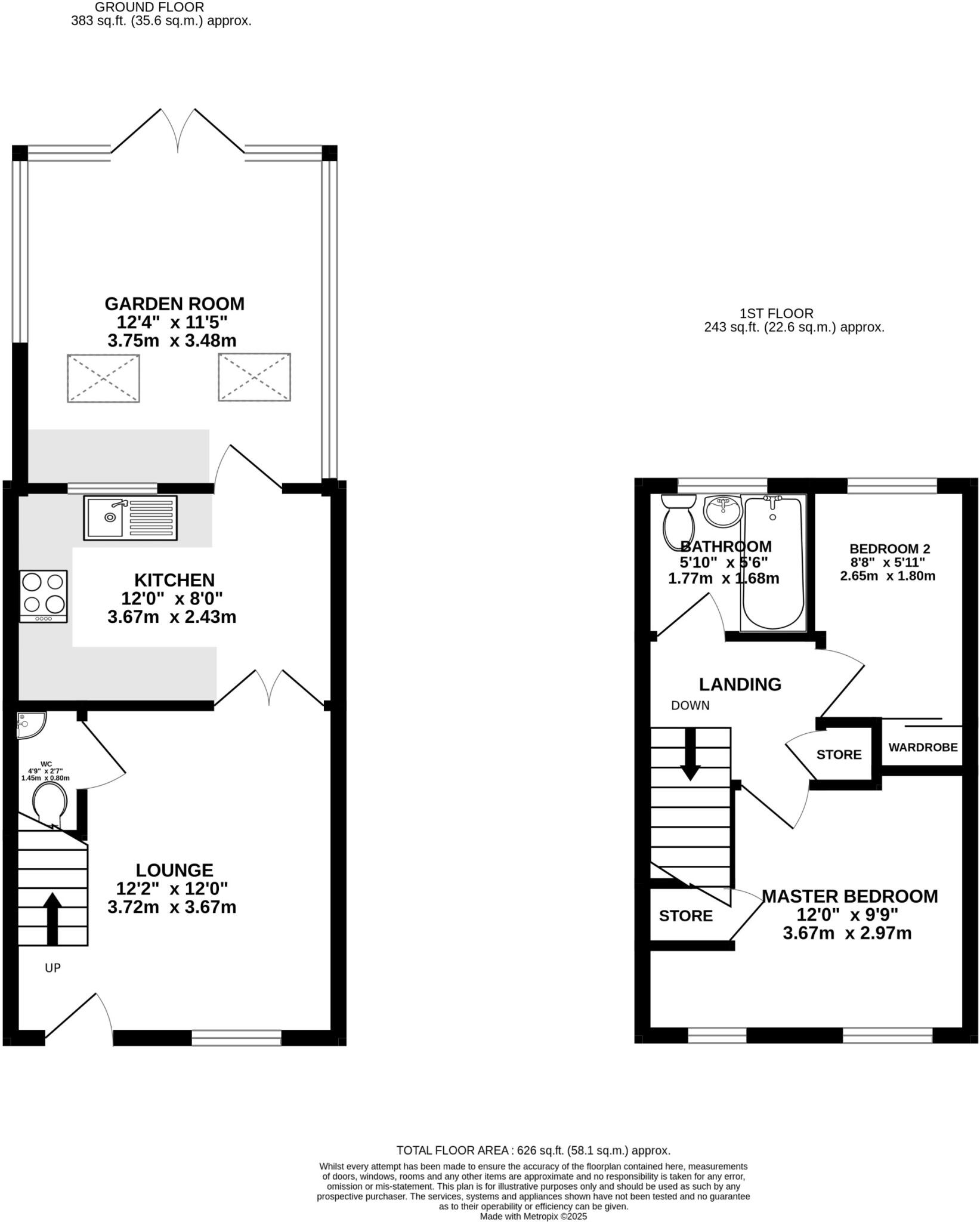
This well-presented two-bedroom semi-detached home sits on Finch Close in Woodville and offers a straightforward, low-maintenance layout suited to first-time buyers or downsizers. The ground floor includes a bright living room, a well-equipped fitted kitchen with solid oak doors and a recently finished garden room with a vaulted ceiling — a useful extra living space for year-round use. Off-street parking is provided on a gated paved driveway and the property is sold freehold.
Internally the house is neat and ready to live in, with one family bathroom serving two bedrooms upstairs. An Energy Performance rating of C (current score 74) indicates reasonable efficiency, with a small potential uplift shown. The accommodation and plot make this property a practical option for buyers wanting move-in condition without major works.
Buyers should note a few practical points: the listing materials reference a corner plot and generous parking, but other record details list a small plot—prospective purchasers should verify exact boundaries. Local schools near the property have mixed Ofsted outcomes, and the home offers a single bathroom only. Overall, this is an affordable, well-kept semi in a quiet cul-de-sac position with useful extra living space and straightforward upkeep.
3 bedroom semi-detached house for sale in Burton Road, Woodville, Swadlincote, DE11 — £185,000 • 3 bed • 1 bath • 1043 ft²
2 bedroom semi-detached house for sale in Burton Road, Woodville, DE11 — £165,000 • 2 bed • 1 bath • 915 ft²
2 bedroom semi-detached house for sale in Thorn Street Mews Woodville, Swadlincote, DE11 — £200,000 • 2 bed • 1 bath • 633 ft²
2 bedroom semi-detached house for sale in Teasel Drive, Woodville, DE11 7GY, DE11 — £185,000 • 2 bed • 1 bath • 851 ft²
2 bedroom semi-detached house for sale in Partridge Drive, Woodville, Swadlincote, DE11 — £180,000 • 2 bed • 1 bath • 645 ft²
3 bedroom semi-detached house for sale in Astbury Way Woodville DE11 7BQ, DE11 — £210,000 • 3 bed • 2 bath • 796 ft²










































































