NR29 5EF - 4 bedroom detached house for sale in Main Road, Rollesby, N…

View on Property Piper

4 bedroom detached house for sale in Main Road, Rollesby, NR29

Summary - BROADLANDS MAIN ROAD ROLLESBY GREAT YARMOUTH NR29 5EF

4 bed 4 bath Detached

**Standout Features:**
- Extensive refurbishment with blend of Georgian elegance and modern comforts.
- 1.3 acres of landscaped gardens and direct access to Rollesby Broad.
- 4 spacious bedrooms, 4 luxurious bathrooms, and multiple reception rooms.
- Unique self-contained annexe “The Retreat” and additional outbuildings (including gym and boathouse).
- Private moorings for three boats, perfect for aquatic enthusiasts.

**Concise Summary:**
Discover 'Broadlands,' an extraordinary late Georgian villa nestled within the peaceful Norfolk Broads National Park. Set on 1.3 acres, this extensively refurbished home features four spacious bedrooms and four luxurious bathrooms designed for modern living while retaining historical charm. The expansive, bespoke kitchen and vast reception areas provide ample space for entertaining, complemented by stunning views from the balcony overlooking the tranquil Rollesby Broad.

This rare property is not just a home but a lifestyle refuge, boasting 80 meters of private, non-tidal waterfront with moorings for three boats, a newly reconstructed boathouse, and carefully tended gardens that attract local wildlife. With its idyllic location just a short drive from Norwich and the North Norfolk Coast, you can enjoy both scenic beauty and convenient access to charming local amenities. While positioned in a serene, rural environment, there may be concerns regarding slow broadband speeds and higher local council tax, yet these are minor in comparison to the unparalleled luxury and opportunity this unique property offers. Don’t miss this exceptional chance to secure your own slice of waterfront paradise—this hidden gem won’t be available for long!

Property Details

Image Descriptions

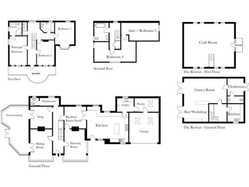
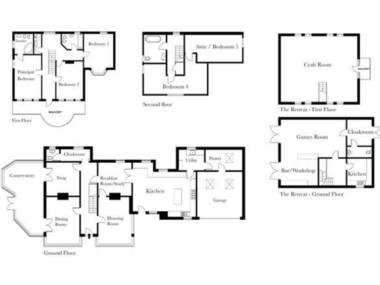
Floorplan Description

Rooms

Textual Property Features

Detected Visual Features

EPC Details

Nearby Schools

Nearest Bars And Restaurants

,,,,}

Nearest General Shops

,,}

Nearest Grocery shops

,,}

Nearest Supermarkets

,,}

Nearest Religious buildings

,,}

Nearest Medical buildings

,,,}

Nearest Leisure Facilities

,,,,}

Nearest Tourist attractions

,,}

Nearest Train stations

,,,,}

Nearest Bus stations and stops

,,,,}

Nearest Hotels

,,}

Tags

Local Market Stats

Similar Properties

Meta

High Res Images

Compatible Images

Low res Images

Thumbnails

Raw Images

High Res Floorplan Images

Compatible Floorplan Images

Low res Floorplan Images

FloorplanImages Thumbnail

Raw Floorplan Images