Affordable renovation project with garage, parking and good broadband for remote working.
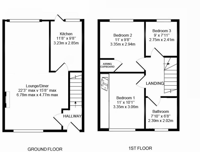
- Three bedrooms, one family bathroom
- Detached garage with side access
- Off-street parking for at least one car
- Front and rear gardens, decent plot
- Requires full modernisation and updating throughout
- Compact footprint: approximately 787 sq ft
- Freehold tenure; mains gas boiler and radiators
- Area has above-average crime and high deprivation
This three-bedroom, freehold semi sits on a decent plot in Beddau and presents a clear refurbishment opportunity. The house offers a detached garage, off-street parking and both front and rear gardens — practical assets for parking, storage or extension (subject to consents).
Inside, accommodation is compact at about 787 sq ft with a ground-floor lounge/diner, separate kitchen and one family bathroom. The property has mains gas heating, double glazing and medium-sized rooms with good natural light, but much of the interior is dated and will need sympathetic updating to modern standards.
Buyers should be aware of the wider location: the area shows higher deprivation and above-average crime statistics, which may affect resale values and mortgage criteria for some lenders. Positively, mobile signal and broadband speeds are strong locally, supporting home working. Overall, this home suits buyers seeking an affordable renovation project or an investor targeting rental yield after refurbishment.
3 bedroom semi-detached house for sale in Heol Ap Pryce, Beddau, CF38 2SH, CF38 — £200,000 • 3 bed • 1 bath • 765 ft²
3 bedroom semi-detached house for sale in Woodland Road, Beddau, CF38 — £200,000 • 3 bed • 1 bath • 786 ft²
3 bedroom semi-detached house for sale in Fair View, Beddau, CF38 2DE, CF38 — £170,000 • 3 bed • 1 bath • 1093 ft²
3 bedroom semi-detached house for sale in Carshalton Road, Beddau, CF38 — £230,000 • 3 bed • 1 bath • 1033 ft²
3 bedroom semi-detached house for sale in Garth View, Beddau, CF38 — £230,000 • 3 bed • 1 bath • 886 ft²
3 bedroom semi-detached house for sale in Moorland Crescent, Beddau, CF38 — £169,950 • 3 bed • 1 bath • 767 ft²










































