**Standout Features:**
- Spacious detached home with scope to remodel and enlarge (subject to planning consents)
- 3 - 4 bedrooms with potential for flexible use
- Located in the picturesque Chiltern Hills, surrounded by natural beauty
- Expansive grounds of just under one acre plus an additional 9.5-acre paddock
- Low crime area, ideal for families seeking a tranquil lifestyle
- Well-apointed kitchen with stone features, large range cooker, and utility room
- Low-maintenance landscaping with specimen trees and expansive lawns
**Property Summary:**
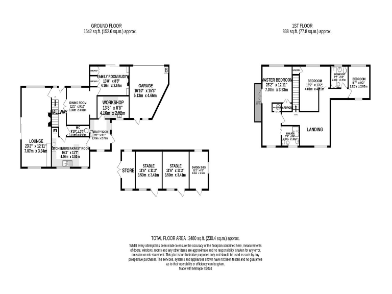
Nestled in a charming village within the stunning Chiltern Hills, this uniquely individual detached house offers over 2,480 square feet of living space set on nearly one acre of landscaped gardens with an impressive 9.5-acre paddock. With 3 to 4 bedrooms, including a spacious master suite with balcony and en-suite, this home provides the perfect blend of comfort and potential for families looking to create lasting memories in a serene environment. The triple-aspect living room, complemented by a welcoming fireplace, flows seamlessly to outdoor spaces through French doors, while a well-appointed kitchen features granite countertops and ample storage.
This property is chain free and boasts a large garage, utility space, and workshop, catering to various lifestyle needs. An expansive outdoor area allows for endless possibilities, from equestrian pursuits to gardening, all set against the backdrop of picturesque rural living. Although the property may benefit from some modern updates and renovations, its solid structure and desirable location within an affluent area make it a unique opportunity for potential buyers. Don’t miss your chance to own a slice of countryside bliss and envision your future in a space that's ready to grow with you!
4 bedroom detached house for sale in Ibstone Road, Ibstone, Buckinghamshire, HP14 — £795,000 • 4 bed • 2 bath • 2227 ft²
3 bedroom detached house for sale in Bennett End Road, Radnage, HP14 — £1,250,000 • 3 bed • 3 bath • 4232 ft²
3 bedroom detached house for sale in Henton Only Road, Henton, Oxfordshire, OX39 — £950,000 • 3 bed • 3 bath • 2099 ft²
4 bedroom detached house for sale in Mayflower Close, Hartwell, HP17 — £735,000 • 4 bed • 3 bath • 2585 ft²
4 bedroom detached bungalow for sale in Parslows Hillock, Princes Risborough, HP27 — £1,595,000 • 4 bed • 3 bath • 3703 ft²
4 bedroom semi-detached house for sale in Catslip, Henley-On-Thames, RG9 — £1,000,000 • 4 bed • 2 bath • 2876 ft²














































































































