WR3 8BA - 2 bedroom maisonette for sale in Gregorys Mill Street, Worc…

View on Property Piper

2 bedroom maisonette for sale in Gregorys Mill Street, Worcester, WR3

Summary - 42B GREGORYS MILL STREET WORCESTER WR3 8BA

2 bed 1 bath Maisonette

Cash buyers only — mortgage lending likely refused due to 76-year lease remaining.
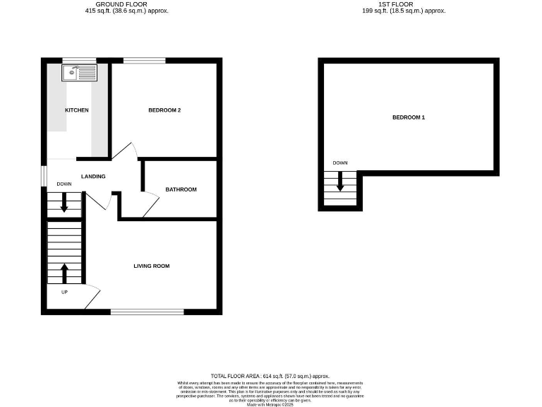
A compact two-bedroom maisonette on Gregorys Mill Street offering clear potential for investors or an experienced renovator. The property includes gas central heating, double glazing and access to a communal courtyard, and sits within easy reach of Worcester city centre, schools and transport links. The layout spans two storeys with an attic room and modest living spaces totaling about 614 sq ft.

This is a complete modernisation opportunity: fixtures and finishes are dated and the kitchen and bathroom require refurbishment. The property is offered chain free but for CASH BUYERS ONLY — the 76-year lease is short and many mortgage lenders may refuse to lend, so buyers should arrange suitable funding before viewing. Service charge is £30 per month and the council tax band is very cheap.

For a cash investor this could work as a low-entry buy-to-let or a renovation flip in a sought-after north Worcester location. Note the area records above-average crime and the accommodation is small, so repositioning for long-term rental or resale will need thoughtful updating to maximise value. All mains services are believed connected and the EPC is D.

Property Details

Brochure Descriptions

Image Descriptions

Floorplan Description

Rooms

Textual Property Features

Detected Visual Features

EPC Details

Nearby Schools

Nearest Bars And Restaurants

,,,,}

Nearest General Shops

,,}

Nearest Grocery shops

,,}

Nearest Supermarkets

,,}

Nearest Religious buildings

,,}

Nearest Medical buildings

,,,}

Nearest Leisure Facilities

,,,,}

Nearest Tourist attractions

,,}

Nearest Train stations

,,,,}

Nearest Bus stations and stops

,,,,}

Nearest Hotels

,,}

Tags

Local Market Stats

AirBnB Data

Similar Properties

Meta

High Res Images

Compatible Images

Low res Images

Thumbnails

Raw Images

High Res Floorplan Images

Compatible Floorplan Images

Low res Floorplan Images

FloorplanImages Thumbnail

Raw Floorplan Images