**Standout Features:**
- Prominent corner roadside position in Kilbirnie town center
- Category B listed building with traditional architectural charm
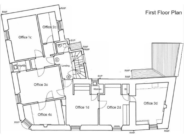
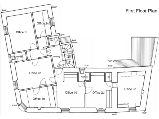
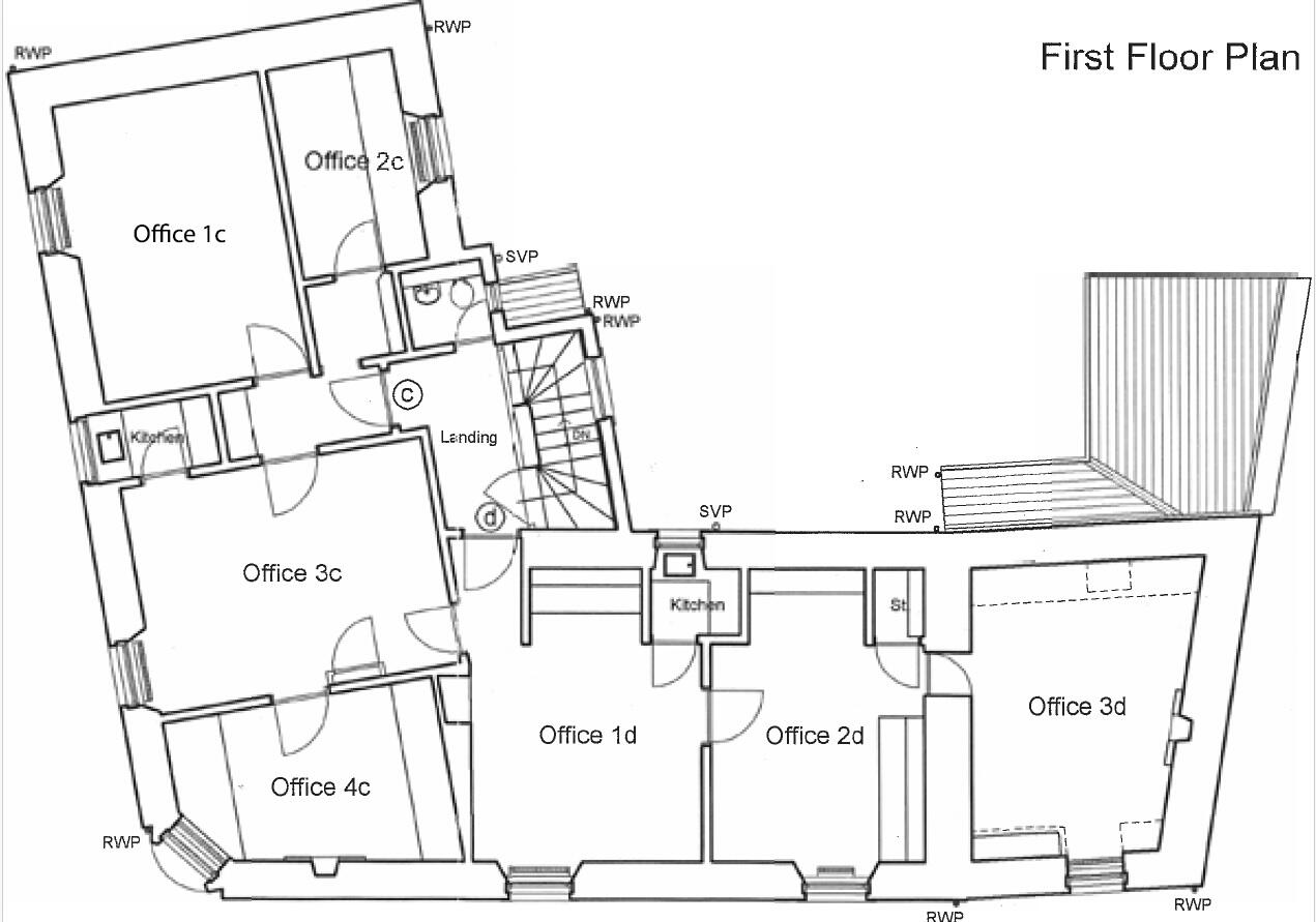
- Net Internal Area: 208 sqm (2,239 sqft) across two floors
- Existing income from two tenants at £10,800 per annum
- 100% rates relief available
- Flexible potential for alternative uses, including residential (subject to consents)
- Offers invited over £110,000
This exceptional property at 2 School Wynd is an incredible opportunity for investors or businesses looking for a strategic location in Kilbirnie. Nestled on a prominent corner, this B listed building boasts a spacious layout, currently configured as offices with an additional front retail unit. With features including traditional sash windows and a generous internal space of over 2,200 square feet, the property combines historic charm with modern potential.
With existing rental income and attractive rates relief, it presents an ideal investment prospect or a chance to establish a vibrant business hub. The two floors contain 13 adaptable rooms, while off-street parking and a rear garden area enhance functionality. Although renovation and redevelopment may pose challenges due to its listed status, the potential for expansion into residential accommodation adds significant allure. Located near essential amenities and public transport links, this property invites visionary buyers to explore its full potential. Don’t miss out on this unique opportunity!
High street retail property for sale in 110-112 Main Street, Kilwinning, KA13 — £100,000 • 1 bed • 1 bath • 1991 ft²
Office for sale in 32 Hamilton Street, Saltcoats, KA21 — £235,000 • 1 bed • 1 bath • 5382 ft²
2 bedroom flat for sale in 33 Eastern Crescent, Kilbirnie, North Ayrshire KA25 6JJ, KA25 — £59,995 • 2 bed • 1 bath • 624 ft²
Commercial property for sale in 53 Main Street, Kilbirnie, KA25 — £33,000 • 1 bed • 1 bath
Shop for sale in Eglinton Street, Irvine, North Ayrshire, KA12 — £139,000 • 1 bed • 1 bath • 2865 ft²
2 bedroom flat for sale in Main Street, Kilbirnie, Ayrshire, KA25 — £68,000 • 2 bed • 1 bath • 786 ft²






































































