Extended 5-bed detached home steps from Minnis Bay with solar, gated drive and large garden.
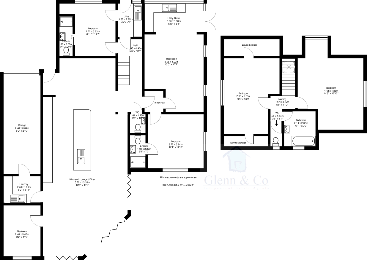
5 bedrooms plus study/utility — extensive accommodation throughout
Open-plan kitchen/family room opening onto rear garden
6.5kW solar system with 14kWh battery storage
Electric gated driveway, garage with electric roller door
Wet room, family bathroom and separate ensuite
Large plot in quiet cul-de-sac; moments from Minnis Bay beach
Chain-free freehold; very low local crime and fast broadband
Overall internal size described as average — view to assess layout
Set just moments from Minnis Bay, this extended five-bedroom detached house offers family-focused living with coastal convenience. The home centres on a bright open-plan kitchen and family room that opens directly onto the rear garden, creating an easy indoor–outdoor flow for entertaining and everyday life. The large plot gives scope for outdoor living while maintaining privacy in a quiet cul-de-sac.
Practical features include a utility room, garage with electric roller door, electric gated driveway and integrated CCTV. The property is fitted with a 6.5kW solar array and 14kWh battery storage, helping reduce running costs. Accommodation includes a wet room, a family bathroom and an ensuite, plus extra reception spaces and two woodburners for added character and warmth.
Located in an affluent area with very low crime and fast broadband, the house sits close to several well-rated primary and secondary schools and local amenities. It is offered freehold and chain-free, ready for a buyer seeking immediate occupation or to personalise the space. Note that overall internal size is described as average despite the generous plot; buyers should view to assess room proportions and layout for their needs.
5 bedroom detached house for sale in Hengist Road, Birchington, Kent, CT7 — £1,100,000 • 5 bed • 3 bath • 2595 ft²
5 bedroom detached house for sale in Daryngton Avenue, Birchington, Kent, CT7 — £750,000 • 5 bed • 1 bath • 2343 ft²
4 bedroom detached house for sale in Canute Road, Birchington, Kent, CT7 — £695,000 • 4 bed • 2 bath • 2521 ft²
3 bedroom bungalow for sale in Dane Road, Birchington, Kent, CT7 — £545,000 • 3 bed • 2 bath • 1252 ft²
3 bedroom detached house for sale in The Droveway, St. Margarets Bay, Dover, Kent, CT15 — £650,000 • 3 bed • 2 bath • 1788 ft²
4 bedroom detached house for sale in Hereward Avenue, Birchington, Kent, CT7 — £580,000 • 4 bed • 1 bath • 1728 ft²


















































































































































