**Standout Features:**
- Established commercial property with significant income potential
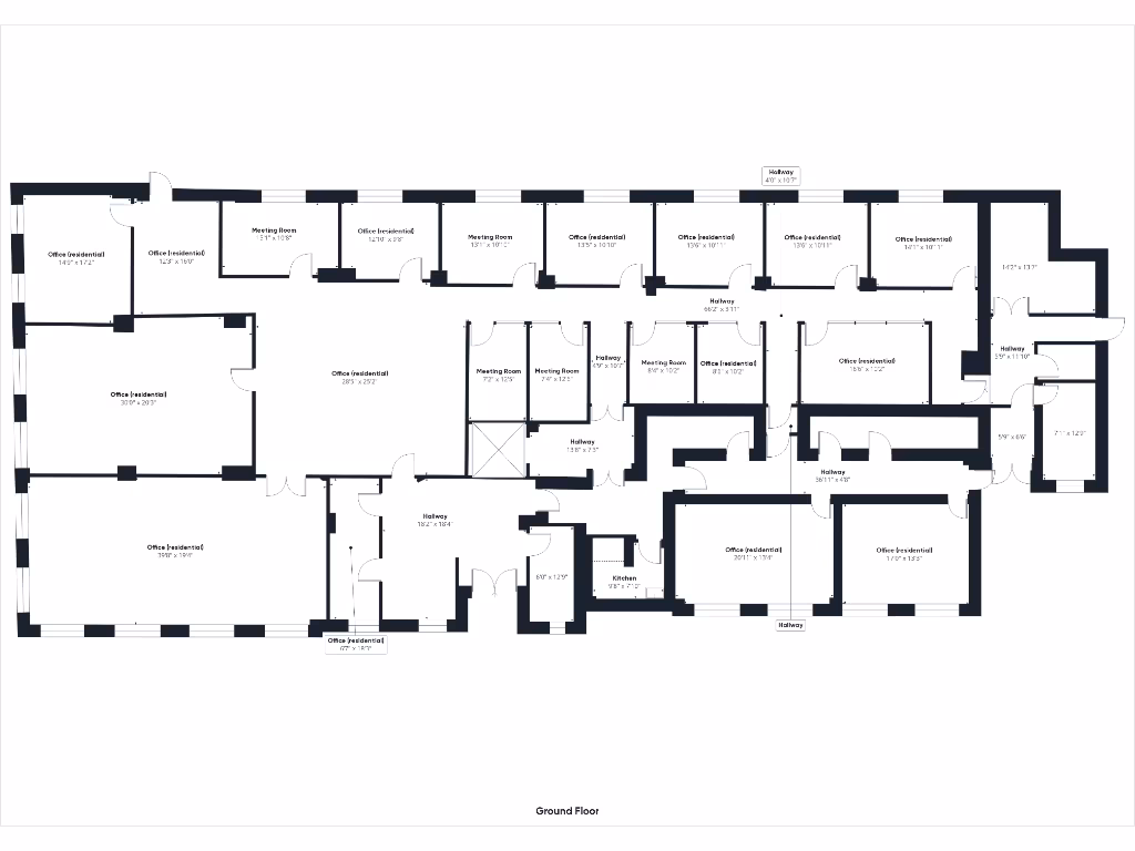
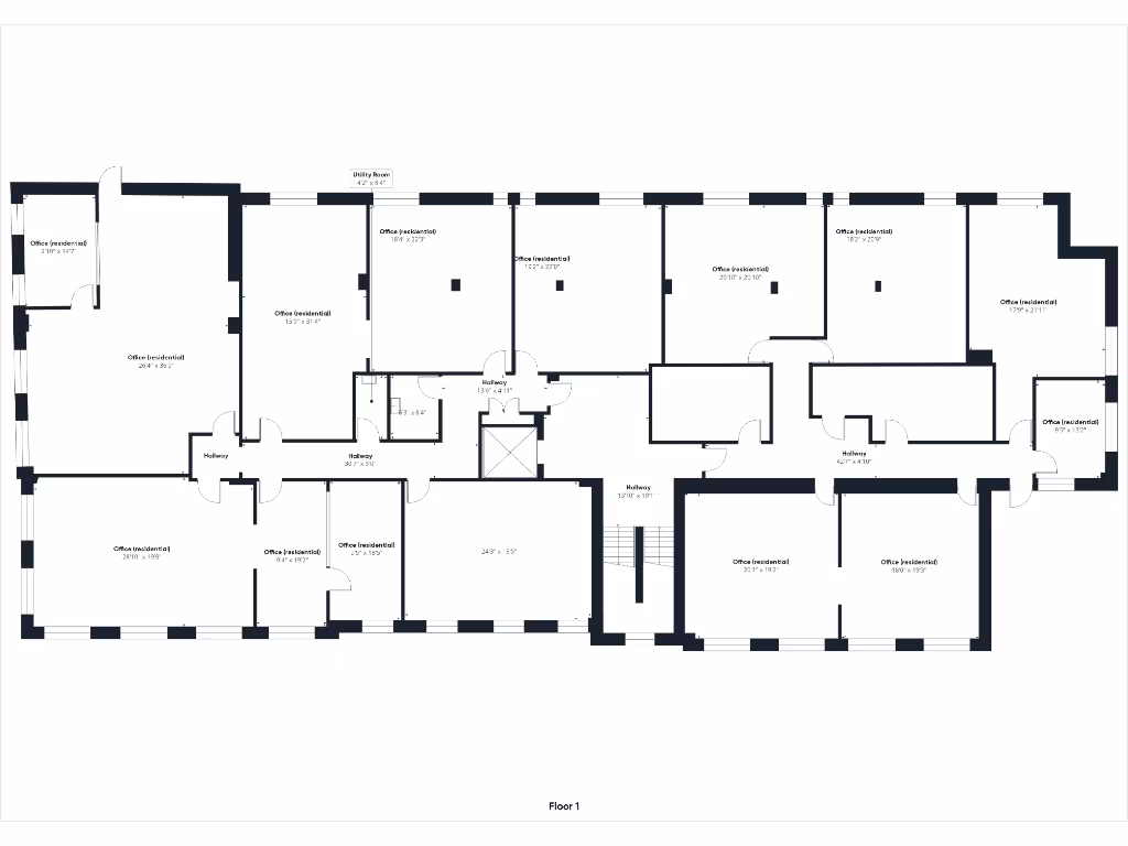
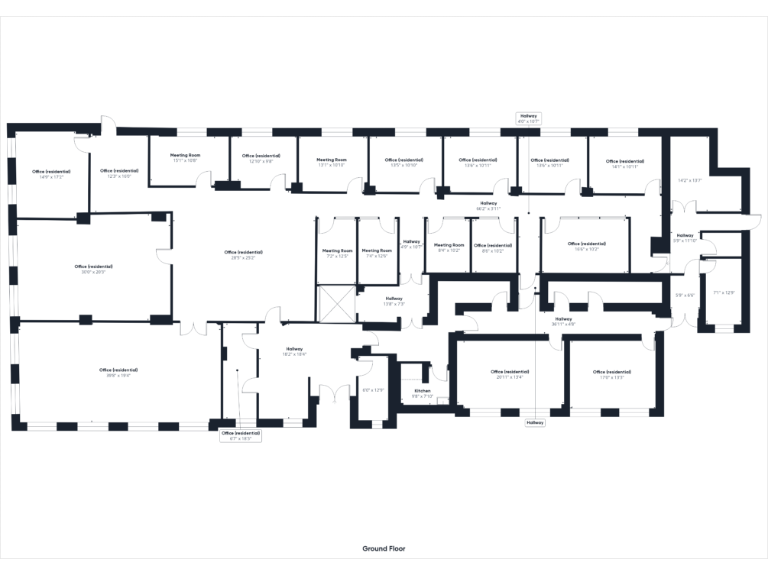
- Extensive space of approximately 16,509 square feet
- Newly renovated, maintaining a mix of historic and modern design
- Situated on a prime corner plot with excellent visibility
- Off-street parking available
- Current annual income of £118,069, with potential to exceed £200,000
**Summary:**
Castle Cavendish Works is an impressive, newly renovated commercial property presenting a unique investment opportunity in Nottingham. This expansive brick-built facility, intricately designed with spacious industrial aesthetics, holds approximately 16,509 square feet suitable for various commercial uses. With a current annual income of £118,069 and a projected increase potential exceeding £200,000 when fully occupied, the asset promises substantial returns.
Positioned in a vibrant area characterized by young ethnic communities, this property enjoys excellent connectivity to major routes such as the A610 and the Nottingham Outer Ring Road, making it ideal for business operational needs. While the location has a high crime rate and some area deprivation, its proximity to numerous local amenities and educational institutions lends it further appeal for diverse businesses. With the option for potential redevelopment existing, the flexible nature of this asset invites both immediate cash flow and future growth ventures. Don’t miss this opportunity to secure a historic yet modern asset poised for value enhancement—properties like this won't last long in today’s market.
Mixed use property for sale in 15 Castle Gate, Nottingham NG1 7AQ, NG1 — £1,200,000 • 1 bed • 1 bath • 8525 ft²
Office for sale in 2 Castle Boulevard, Nottingham, Nottinghamshire, NG7 — £2,250,000 • 1 bed • 1 bath • 17811 ft²
Office for sale in No's 1 - 4, Newcastle Chambers, Angel Row, Nottingham NG1 6HL, NG1 — £380,000 • 1 bed • 1 bath • 1600 ft²
2 bedroom mixed use property for sale in 99 Derby Road, Nottingham, Nottinghamshire, NG1 — £425,000 • 2 bed • 1 bath • 1795 ft²
Office for sale in 5 Lawrence Way, Castlebridge Office Village, NG7 1GE, NG7 — £695,000 • 1 bed • 1 bath • 5582 ft²
Land for sale in Mansfield Road, Nottingham, NG1 — £2,100,000 • 1 bed • 1 bath














































