Period features, garden and long lease near good schools and transport links.
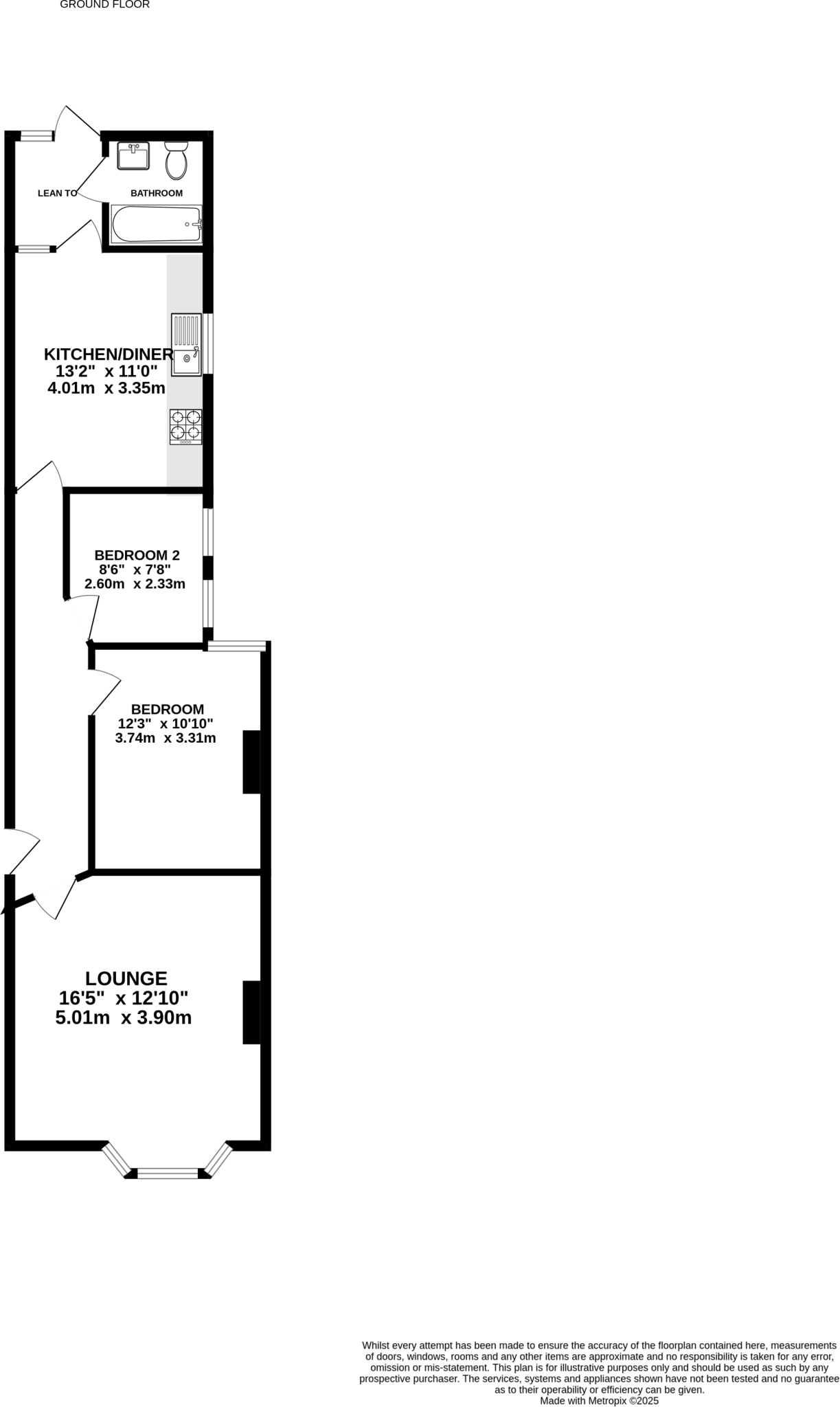
- Two bedrooms with large bay-fronted sitting room
- Private, generous rear garden for an apartment
- Large kitchen-dining room offering flexible space
- 999-year lease and half share of freehold
- Chain free sale with recent external maintenance underway
- Small overall size: approx 553 sq ft
- Cavity walls assumed without insulation; energy upgrades may be needed
- Area classified as deprived; consider long-term resale implications
Set on a Victorian terrace, this two-bedroom garden apartment combines period charm with practical ownership terms. The flat benefits from a generous private garden, a large bay-fronted sitting room and an impressive kitchen-dining space that gives the feeling of more than its modest footprint.
The property is sold chain free with a 999-year lease and a half share of the freehold, which offers valuable control over building decisions and long-term security. Recent and ongoing maintenance to the front and bay, plus a new communal door, reduce immediate external repair concerns.
Practical positives include mains gas central heating, double glazing (installed after 2002), excellent mobile signal and fast broadband — useful for working from home. Local schools include several rated Good and an Outstanding UTC, and nearby transport and amenities are plentiful.
Buyers should note the apartment is small at about 553 sq ft and the area is classified as relatively deprived, which may affect resale for some buyers. Some renovation and finishing works are underway or required internally; cavity walls are assumed to have no insulation. Council tax is very low, and crime levels are reported as low, but purchasers should budget for internal updates and consider energy efficiency improvements.
2 bedroom apartment for sale in Waverley Grove, Southsea, PO4 — £215,000 • 2 bed • 1 bath • 722 ft²
2 bedroom flat for sale in Nightingale Road, Southsea, PO5 — £265,000 • 2 bed • 2 bath • 1033 ft²
2 bedroom ground floor flat for sale in Somers Road, Southsea, PO5 — £140,000 • 2 bed • 1 bath • 453 ft²
2 bedroom flat for sale in Northcote Road, Southsea, Hampshire, PO4 — £225,000 • 2 bed • 1 bath • 778 ft²
2 bedroom ground floor flat for sale in Waverley Road, Southsea, Hampshire, PO5 — £165,000 • 2 bed • 1 bath • 408 ft²
2 bedroom flat for sale in Aylen Road, Portsmouth, Hampshire, PO3 — £170,000 • 2 bed • 1 bath • 502 ft²






































