Handsome four-bedroom sandstone home in Jordanhill School catchment with superb rear extension and garden.
Prime Jordanhill School (List 1) catchment
Victorian sandstone end-terrace with bay windows and high ceilings
Exceptional rear extension with twin skylights and sliding doors
Landscaped, low-maintenance private rear garden and sun deck
Four bedrooms, two bathrooms, ~1,871 sq ft of family space
Gas central heating and double glazing; EPC rating D
Freehold tenure; Council Tax Band G (quite expensive)
Inner-city area with mixed demographics and local deprivation
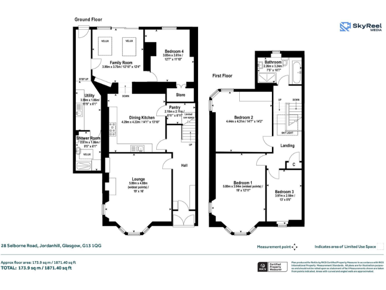
Set on a peaceful stretch of Selborne Road in prime Jordanhill School (List 1) catchment, this handsome sandstone end-terrace blends period character with a generous modern extension. Traditional proportions, tall ceilings and bay windows give the principal rooms a formal, light-filled feel while contemporary updates create practical family living.
The heart of the home is a superb dining kitchen that flows into a double-height garden room with twin skylights and sliding doors, creating seamless indoor-outdoor living. The landscaped, low-maintenance rear garden is private and well-orientated, with paved terraces, a lawn, raised sun deck and a shed — ideal for family life and casual entertaining.
Accommodation includes four bedrooms, two bathrooms (one large shower room downstairs and a stylish four-piece bathroom on the half landing), utility space and useful built-in storage. The property is gas centrally heated, double glazed and extends to approximately 1,871 sq ft, offering generous entertaining and day-to-day living space.
Important practical points: the home is Freehold, has an EPC rating of D and sits in Council Tax Band G (described as quite expensive). The wider area is an inner-city, ethnically mixed neighbourhood with local deprivation indicators. A closing date has been set for Tuesday 2nd September at 11:00am.
5 bedroom terraced house for sale in Munro Road, Jordanhill, Glasgow, G13 — £539,000 • 5 bed • 2 bath • 2046 ft²
4 bedroom terraced house for sale in Victoria Park Drive North, Jordanhill, Glasgow, G14 — £425,000 • 4 bed • 2 bath • 1755 ft²
4 bedroom terraced house for sale in Balshagray Avenue, Jordanhill, Glasgow, G11 — £499,000 • 4 bed • 1 bath • 2005 ft²
4 bedroom terraced house for sale in King Edward Road, Jordanhill, Glasgow, G13 — £515,000 • 4 bed • 2 bath • 1502 ft²
4 bedroom detached house for sale in Helensburgh Drive, Jordanhill, Glasgow, G13 — £895,000 • 4 bed • 3 bath • 2669 ft²
5 bedroom terraced house for sale in Balshagray Avenue, Jordanhill, Glasgow, G11 — £555,000 • 5 bed • 2 bath • 2406 ft²


















































































































































































































