Turnkey family home with driveway and loft potential near Willesden Green.
High-spec, fully renovated three/four bedroom semi-detached home
This fully renovated three/four bedroom semi‑detached house on a generous corner plot offers contemporary, turnkey living for growing families. The ground floor’s open-plan kitchen, dining and snug area opens via bi-fold doors to a decked garden, creating a bright indoor/outdoor hub. A separate front reception and flexible office/snug add useful living options. Off-street parking on a private driveway and external storage complete the practical layout.
Finished to a high specification throughout, the home benefits from integrated appliances, modern fixtures, engineered timber flooring and neutral decoration. The first-floor layout provides three bedrooms, a utility room and a fully tiled family bathroom, plus an extra WC for convenience. There is scope to add loft accommodation subject to planning permission, offering clear potential to increase living space and value.
Positioned close to Willesden Green (Jubilee Line) with easy access to Kensal Rise amenities, parks and schools, the house suits families who want space without sacrificing transport links. It is offered chain-free and vacant, allowing a swift move for buyers wanting a ready-to-live-in home.
Buyers should note practical considerations: council tax is listed as expensive, and the local area scores as deprived despite low crime and good broadband/mobile coverage. The rear outdoor space is decked and modest in size, better suited to low‑maintenance use than large-scale gardening.
Overall, this is a high-spec, move-in-ready family home in a well-connected NW10 pocket, with off-street parking and extension potential for buyers seeking immediate comfort and medium-term growth options.
4 bedroom end of terrace house for sale in Wrottesley Road, Kensal Rise (Borders), NW10 5YL, NW10 — £1,290,000 • 4 bed • 1 bath • 1529 ft²
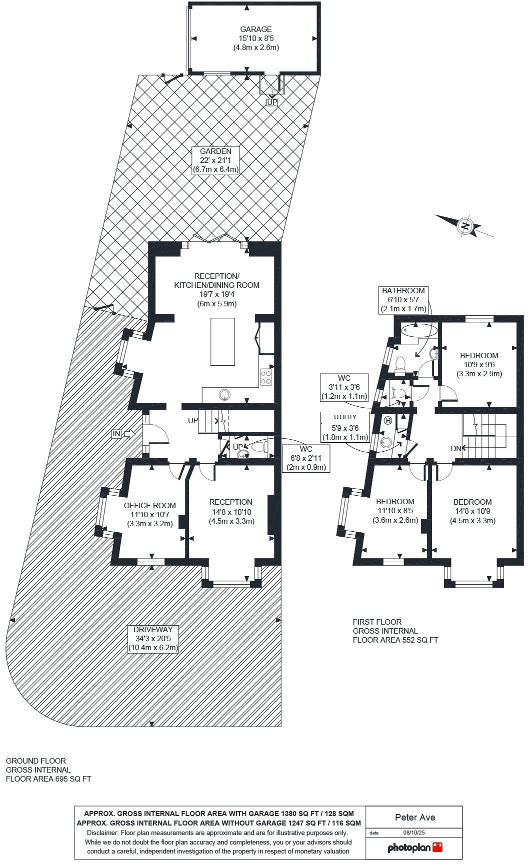
5 bedroom semi-detached house for sale in Peter Avenue, Dobree Estate, NW10 — £1,200,000 • 5 bed • 3 bath • 2600 ft²
3 bedroom terraced house for sale in Rucklidge Avenue, Willesden junction, London, NW10 — £525,000 • 3 bed • 1 bath • 786 ft²
4 bedroom end of terrace house for sale in Buckingham Road, Harlesden, NW10 — £1,000,000 • 4 bed • 1 bath • 1647 ft²
3 bedroom semi-detached house for sale in Haycroft Gardens, London, NW10 — £1,250,000 • 3 bed • 2 bath • 1400 ft²
4 bedroom house for sale in Napier Road, Kensal Green, NW10 — £1,250,000 • 4 bed • 2 bath • 1325 ft²


































