Character-filled two-bedroom village cottage with long garden and garage—listed status applies.
Grade II listed terraced cottage with original period features
Long enclosed rear garden approx. 78' with paved patio
Single garage accessed via side lane; on-plot parking limited
Separate timber outbuilding with light and power — ideal office
Wood-burning stove pictured is not included in sale
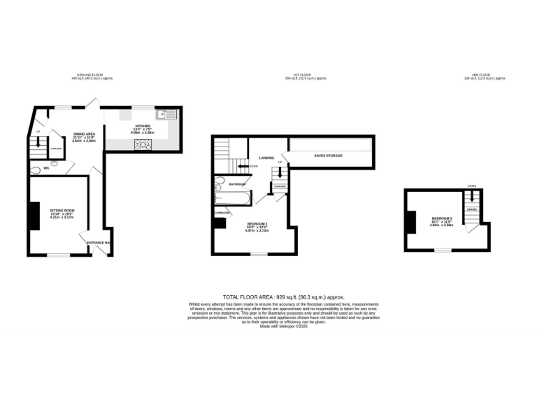
Dining/kitchen area has low ceiling and potential damp noted
Listing status may restrict alterations and complicate maintenance
Fast broadband and excellent mobile signal, good local schools nearby
Set within a historic terrace in Blandford St Mary, this Grade II listed two-bedroom home pairs genuine period charm with practical family spaces. The sitting room retains a sash window and exposed chimney breast; an L-shaped dining area flows to a cottage-style kitchen and a downstairs cloakroom—all arranged across three modest floors. A long, enclosed rear garden (approx. 78') and a single garage accessed from the lane extend the usable space outdoors. A timber outbuilding with light and power provides a ready-made home office or studio.
The accommodation suits buyers seeking character: generous main bedroom proportions, a second bedroom with vaulted ceiling and exposed beams, and traditional features throughout. Modern comforts include a newer combi boiler and fast broadband and mobile signal—useful for remote working. Local schools rated Good and proximity to green space enhance family appeal.
Important practical points: the property is Grade II listed, which will restrict alterations and may complicate planning or maintenance. The wood-burning stove shown is not included in the sale and interested parties should verify the condition and safety of all appliances and services themselves. The dining/kitchen area has lower ceiling heights and there is a noted potential for damp in that space—factor in inspections and possible remedial work.
This is a characterful, centrally located village home offering immediate occupancy with scope to personalise within listed-building constraints. It will suit buyers who value historic features, an established garden, and outbuilding workspace, and who are comfortable managing heritage-related maintenance.
3 bedroom terraced house for sale in Salisbury Street, Blandford Forum, DT11 — £415,000 • 3 bed • 3 bath • 1604 ft²
2 bedroom terraced house for sale in Blandford, DT11 — £250,000 • 2 bed • 1 bath • 581 ft²
3 bedroom cottage for sale in The Maltings, Blandford Forum, DT11 — £375,000 • 3 bed • 2 bath • 1615 ft²
3 bedroom end of terrace house for sale in School Lane, Blandford St. Mary, Blandford Forum, Dorset, DT11 — £350,000 • 3 bed • 1 bath • 705 ft²
3 bedroom terraced house for sale in Wimborne Road, Blandford Forum, Dorset, DT11 — £295,000 • 3 bed • 2 bath • 717 ft²
3 bedroom detached house for sale in The Cross, Okeford Fitzpaine, Blandford Forum, DT11 — £550,000 • 3 bed • 2 bath • 1541 ft²










































































































































































