M9 6LF - 2 bedroom flat for sale in 14 Churston Avenue, Manchester,…

View on Property Piper

2 bedroom flat for sale in 14 Churston Avenue, Manchester, Greater Manchester M9 6LF, M9

Summary - 14 CHURSTON AVENUE MANCHESTER M9 6LF

2 bed 1 bath Flat

Auction lot: two-bed first-floor flat with garden, sold with tenants—suitable for experienced investors.
Sold at online auction; no viewings available
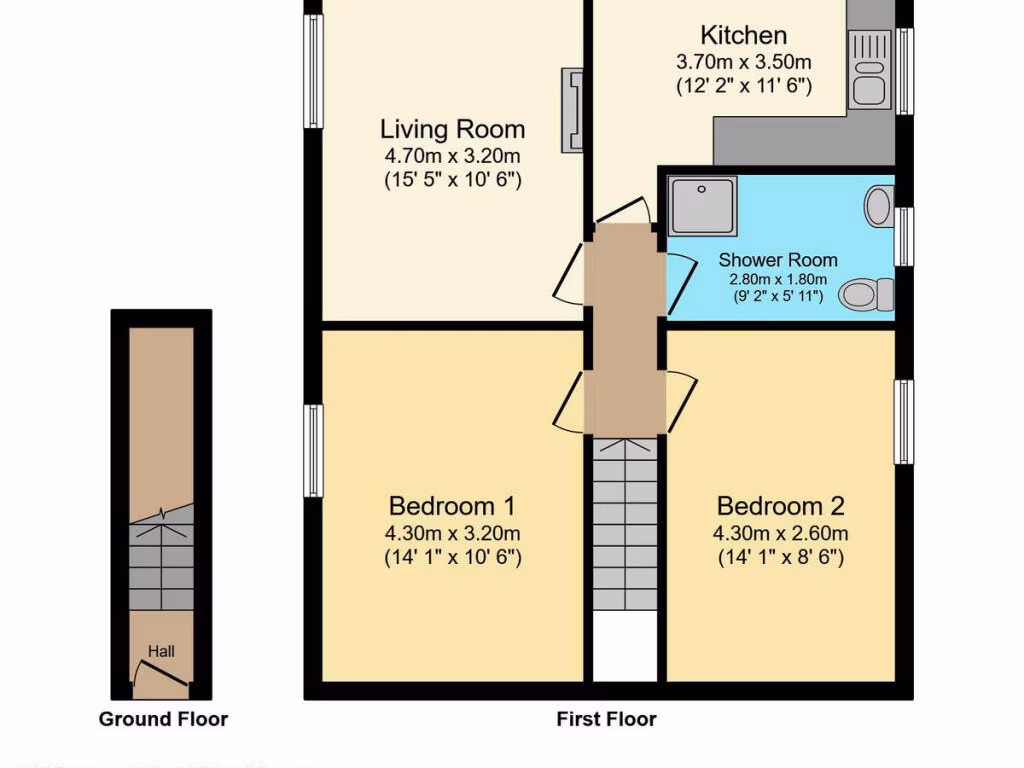
This first-floor two-bedroom flat, offered at auction, presents a clear investor opportunity in Manchester M9. Located in a converted mid-20th-century semi, the flat includes a private rear entrance, a rear garden and 68 m² (approx. 732 sqft) of space—useful for HMO or long-let conversion subject to checks. The long lease (around 110 years remaining) reduces immediate title risk compared with short-lease lots.

The property is sold with tenants in situ and the sale is online with no viewings available. The listing advises the unit is let as an HMO to a minimum of three tenants, but tenancy documentation wasn’t provided and no rent is currently confirmed as being collected. Prospective buyers must consult the legal pack for tenancy terms, ground rent, service charge and any additional fees.

Condition and location both drive value and risk. The flat needs modernization and refurbishment throughout; interiors are dated with standard mid-century fittings and will likely require investment to reach higher rents or owner-occupation standards. The EPC rating is D and the building has double glazing installed after 2002 and mains gas heating. The surrounding area is classified as very deprived, though crime is reported as very low and broadband and mobile signal are strong.

This lot suits experienced landlords, auction buyers and renovators who can buy unseen, manage tenant regularisation, and budget for refurbishment and legal costs. If you’re seeking a hands-off, immediately income-producing asset, check the tenancy evidence in the legal pack carefully—current rent and tenancy terms are not confirmed.

Property Details

Image Descriptions

Textual Property Features

Target Audience

AI Tags

Detected Visual Features

EPC Details

Nearby Schools

Nearest Bars And Restaurants

,,,,}

Nearest General Shops

,,}

Nearest Grocery shops

,,}

Nearest Supermarkets

,,}

Nearest Religious buildings

,,}

Nearest Medical buildings

,,,}

Nearest Airports

}

Nearest Leisure Facilities

,,,,}

Nearest Tourist attractions

,,}

Nearest Train stations

,,,,}

Nearest Bus stations and stops

,,,,}

Nearest Hotels

,,}

Tags

Local Market Stats

Similar Properties

Meta

High Res Images

Compatible Images

Low res Images

Thumbnails

Raw Images