**Standout Features:**
- Exceptional luxury lodge in the prestigious Stewarts Resort, Cameron, under 4 miles from St Andrews.
- Fully furnished with modern decor and extensive amenities ideal for vacation rentals.
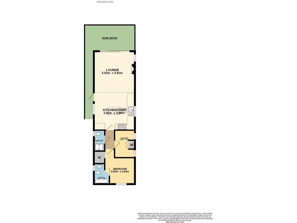
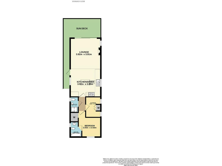
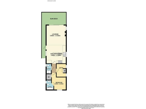
- Two well-appointed bedrooms; master bedroom with en-suite and walk-in wardrobe.
- Spacious open-plan living/dining area with vaulted ceiling, modern kitchen, and premium appliances.
- Extended composite deck with jacuzzi hot tub and off-street parking for up to four cars.
**Summary Description:**
Experience luxury living in this exquisite lodge located within the stunning Stewarts Resort, perfect for families or investors looking for a holiday rental opportunity. This charming two-bedroom property features a generous open-plan living and dining area, adorned with a vaulted ceiling and a cozy modern fireplace. The stylish kitchen comes equipped with top-end appliances, making it a joy for anyone who loves to cook. Step outside onto the large, enclosed deck, complete with a relaxing hot tub—a perfect spot for unwinding after a day of exploration.
The master suite boasts an en-suite bathroom and a walk-in wardrobe, while the twin bedroom has built-in storage, ensuring comfort for all. Although the property is on a leasehold with 39 years remaining, which may pose mortgage challenges, the excellent communal facilities, including a restaurant, gym, and play park, enhance its appeal. Seize this unique chance to own an exclusive retreat in a prime location; properties like this don’t last long!
2 bedroom park home for sale in Marlow Lodge , Cameron, St Andrews, KY16 — £120,000 • 2 bed • 1 bath • 460 ft²
3 bedroom park home for sale in The Saltire Lodge , Cameron , St Andrews , KY16 — £150,000 • 3 bed • 2 bath • 895 ft²
2 bedroom park home for sale in High Road , Strathkinness, St Andrews , KY16 — £175,000 • 2 bed • 2 bath • 902 ft²
3 bedroom lodge for sale in Saltire Lodge, Stewarts Resort, St Andrews, KY16 — £179,000 • 3 bed • 2 bath
3 bedroom park home for sale in The Saltire Lodge , Cameron , St Andrews , KY16 — £185,000 • 3 bed • 2 bath • 974 ft²
2 bedroom lodge for sale in St. Andrews, Fife, Scotland, KY16 — £149,000 • 2 bed • 2 bath • 588 ft²






















































