Period character with garden and garage, ideal for hands-on first buyers.
- Three bedrooms in a traditional Victorian terrace layout
- Garage to the rear and flat patio garden
- Gas central heating and uPVC double glazing present
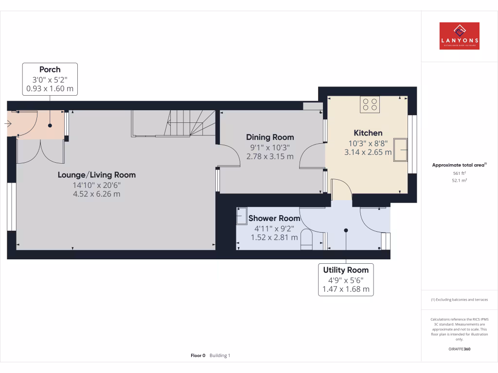
- Open-plan lounge/living room plus separate dining room
- Ground-floor shower/wet room only bathroom
- Requires renovation and cosmetic upgrading throughout
- Council Tax Band A — very low running costs
- Local area very deprived; crime levels above average
A traditional three-bedroom Victorian terrace with genuine first-home appeal and scope to add value. The house retains period stone frontage and internal character features while offering modern comforts such as gas central heating and uPVC double glazing. A rear garage and flat patio garden add practical outdoor and parking space rarely found on similar streets.
Internally the layout is flexible: an open-plan lounge/living room, separate dining room, fitted kitchen, utility and a ground-floor shower room provide comfortable everyday living. At around 850 sq ft the house is an average-sized family home, suitable for couples, growing families or buyer-occupiers looking to renovate and personalise. The property requires cosmetic upgrades and renovation throughout, so expect investment for decorating, modernisation and general wear-and-tear.
Location is convenient for main roads (A4233/A4119) with local shops, schools and services nearby. Council tax is very low (Band A), which helps running costs. Be aware the wider area faces economic and crime challenges; the immediate community is described as hard-pressed and very deprived, and crime levels are above average. Those factors may influence resale and rental considerations.
For buyers prioritising value and potential: this home offers a solid period shell, useful parking with a rear garage, and good transport links. For those seeking a move-in-perfect property, the need for renovation and local area issues are material downsides to factor into plans and budgets.
3 bedroom terraced house for sale in Glynfach Road, Glynfach, Porth, Rhondda Cynon Taf, CF39 — £134,995 • 3 bed • 1 bath • 848 ft²
3 bedroom terraced house for sale in Standard View, Ynyshir, Porth, Rhondda Cynon Taff, CF39 — £144,995 • 3 bed • 1 bath • 922 ft²
3 bedroom terraced house for sale in William Street, Ynyshir, Porth, Rhondda Cynon Taf, CF39 — £134,995 • 3 bed • 1 bath • 866 ft²
3 bedroom terraced house for sale in Cemetery Road, Porth, CF39 0BL, CF39 — £159,950 • 3 bed • 1 bath • 872 ft²
3 bedroom terraced house for sale in Baglan Street, Treorchy CF42 — £130,000 • 3 bed • 1 bath
3 bedroom terraced house for sale in Thomas Street, Clydach Vale, Tonypandy, Rhondda Cynon Taf, CF40 — £109,995 • 3 bed • 1 bath • 838 ft²










































































