Quiet cul-de-sac location with good transport links and garden access.
Chain-free one-bedroom flat with extended lease (approx. 139 years)
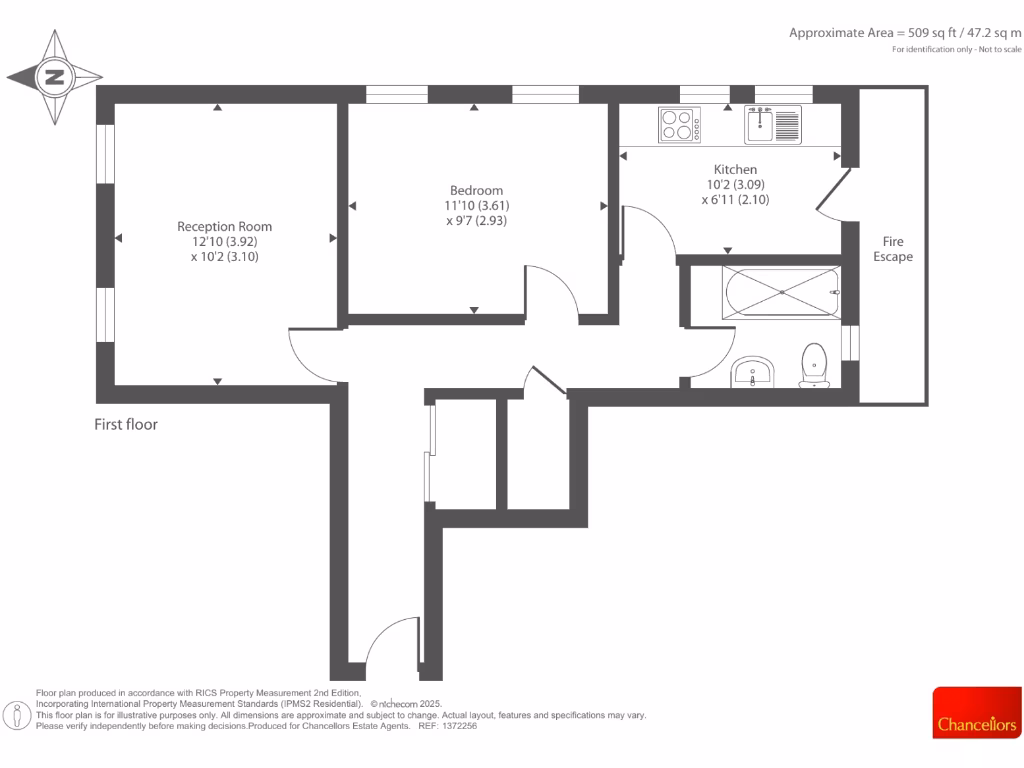
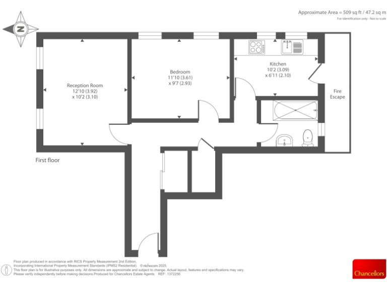
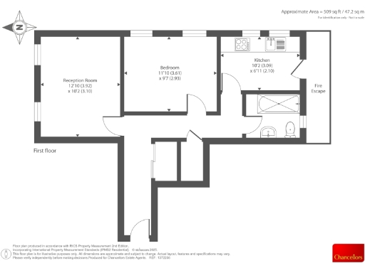
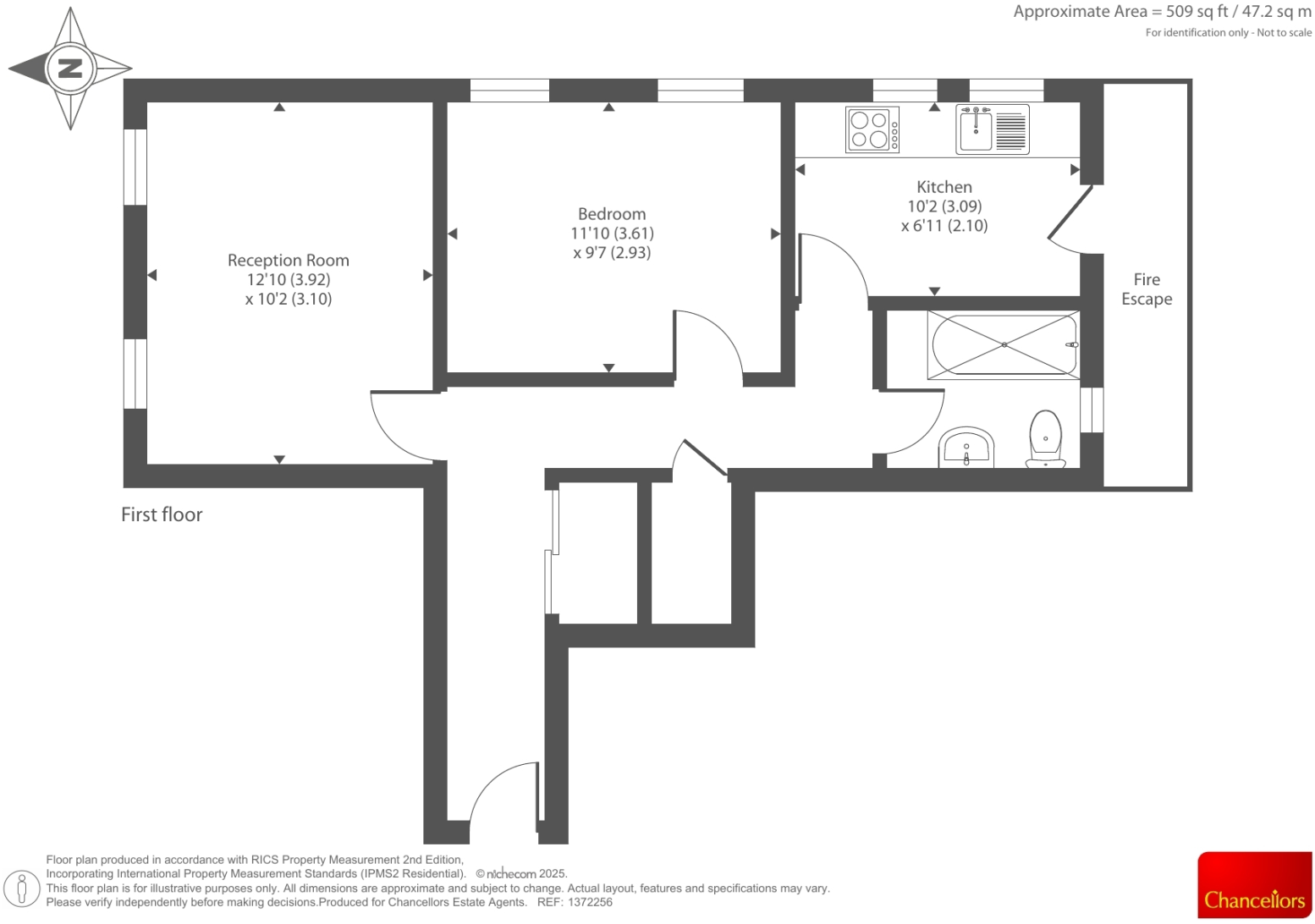
Set on the first floor of a red-brick period mansion block in North Oxford, this one-bedroom apartment offers a straightforward, chain-free purchase with an extended lease of around 139 years. The flat is a practical size (circa 509 sq ft) and benefits from gas central heating, double glazing and a private garden — rare for flats of this era.
Positioned in a quiet cul-de-sac off Woodstock Road, the location is a key selling point: local bus routes into the city are within a few minutes’ walk, Summertown’s shops are about 1.4km away, and good schools and green routes make the neighbourhood popular with professionals and families. The apartment would suit a first-time buyer or investor seeking rental potential in a very affluent area with low crime and excellent mobile reception.
The building retains period character in façade and windows, but the interior shows scope for updating. Service charges are high (circa £4,600 pa) and broadband speeds are reported slow — factors to budget for. Overall this is a convenient, well-located flat with clear potential for improvement and immediate occupation because it is offered with no onward chain.
1 bedroom apartment for sale in St. Peters Road, Oxford, Oxfordshire, OX2 — £240,000 • 1 bed • 1 bath • 362 ft²
1 bedroom flat for sale in East Oxford, Oxford, OX4 — £220,000 • 1 bed • 1 bath • 377 ft²
1 bedroom flat for sale in Summertown, Oxford, OX2 — £300,000 • 1 bed • 1 bath • 522 ft²
1 bedroom flat for sale in Headington, Oxford, OX3 — £260,000 • 1 bed • 1 bath • 301 ft²
1 bedroom flat for sale in Walton Manor, North Oxford, OX2 — £325,000 • 1 bed • 1 bath • 350 ft²
2 bedroom ground floor flat for sale in Woodstock Close, Oxford, OX2 — £500,000 • 2 bed • 1 bath • 1275 ft²






























































