Compact period terrace with garden, modern kitchen and scope to improve energy efficiency..
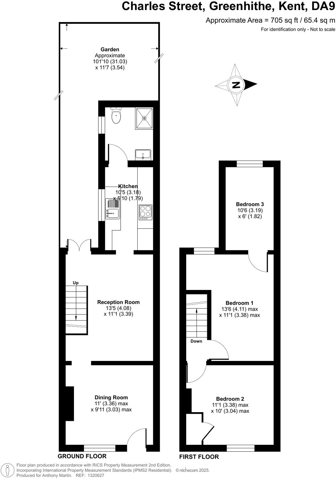
- Three bedrooms across two floors, compact family layout
- Through reception and separate dining area with period details
- Modern kitchen and bathroom, largely move-in ready
- Private rear garden; small plot size
- Approx 62 sq m (667 sq ft) — small overall floor area
- Solid brick construction; likely no wall insulation
- Double glazing installed pre-2002; potential thermal upgrades
- Local area: very high crime level; investigate before purchase
A compact Victorian mid-terrace combining period character with practical modern updates, set on Charles Street in Greenhithe. The house offers three bedrooms across two floors, a generous through reception/dining room and a private rear garden — a rare find at this size and price for the area. The modern kitchen and bathroom make the home move-in ready in many respects, while original features such as sash-style windows and coved ceilings add charm.
This property suits first-time buyers or investors seeking a well-located, manageable family home close to transport links, local schools and Bluewater. The layout works well for everyday living and offers scope to improve value with sympathetic updating and insulation work. Mains gas central heating, double glazing (pre-2002) and a boiler-and-radiator system provide reliable basic services.
Buyers should note the house is small (approx. 62 sq m / 667 sq ft) and built as solid brick without assumed cavity insulation, so further thermal or energy-efficiency improvements may be required. The local area records very high crime levels, which some purchasers will want to investigate. Overall, this is a characterful, affordable terrace with realistic potential for enhancement and strong local amenities and transport links.
2 bedroom terraced house for sale in Charles Street, Greenhithe, DA9 — £300,000 • 2 bed • 2 bath • 3871 ft²
3 bedroom terraced house for sale in Charles Street, Greenhithe, Kent, DA9 — £335,000 • 3 bed • 1 bath • 947 ft²
3 bedroom end of terrace house for sale in Charles Street, Greenhithe, Kent, DA9 — £325,000 • 3 bed • 1 bath • 789 ft²
2 bedroom terraced house for sale in Charles Street, Greenhithe, Kent, DA9 — £300,000 • 2 bed • 1 bath • 721 ft²
2 bedroom terraced house for sale in Knockhall Chase, Greenhithe, Kent, DA9 — £350,000 • 2 bed • 1 bath • 764 ft²
3 bedroom terraced house for sale in London Road, Greenhithe, DA9 — £350,000 • 3 bed • 1 bath






















































































