KT12 3RN - 2 bedroom flat for sale in Byron Close, WaltonOnThames, KT12

View on Property Piper

2 bedroom flat for sale in Byron Close, Walton-On-Thames, KT12

Summary - 62 BYRON CLOSE WALTON-ON-THAMES KT12 3RN

2 bed 1 bath Flat

**Standout Features:**
- Two double bedrooms
- Bright living room with new flooring
- Modern kitchen with contemporary fixtures
- Communal grounds for outdoor activities
- Off-street parking available
- Proximity to Walton station (0.8 miles) and local amenities

**Potential Considerations:**
- Leasehold tenure
- Average-sized property, may not suit those seeking larger spaces
- Competitive service charge of £1,430, along with low ground rent (£10)

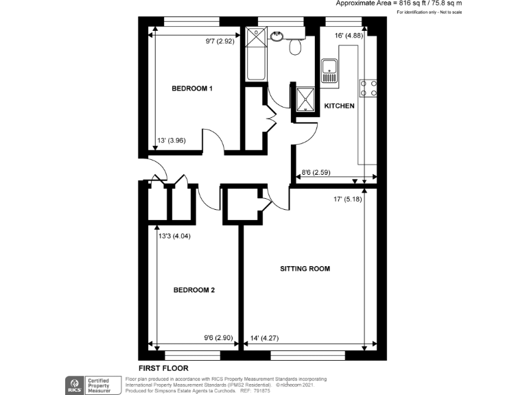
Discover a comfortable first-floor apartment perfect for small families or couples, just 0.8 miles from Walton's mainline station. Spanning approximately 816 square feet, this bright and spacious flat features two well-sized bedrooms, a modern kitchen with stylish fittings, and a welcoming living room ideal for relaxation or entertaining. Enjoy the added benefit of private communal grounds, offering a secure outdoor space for leisure and activities.

Nestled in a suburban cul-de-sac, this property offers a blend of tranquility and accessibility to local shops and essential amenities. With competitive costs for maintenance—a service charge of £1,430 and low ground rent—this residence is not only affordable but also presents a great investment opportunity in a sought-after location. Don't miss your chance to claim this attractive living space, where comfort meets convenience!

Property Details

Brochure Descriptions

Image Descriptions

Floorplan Description

Rooms

Textual Property Features

Detected Visual Features

EPC Details

Nearby Schools

Nearest Bars And Restaurants

,,,,}

Nearest General Shops

,,}

Nearest Grocery shops

,,}

Nearest Supermarkets

,,}

Nearest Religious buildings

,,}

Nearest Medical buildings

,,,}

Nearest Airports

,}

Nearest Leisure Facilities

,,,,}

Nearest Tourist attractions

,,}

Nearest Train stations

,,,,}

Nearest Bus stations and stops

,,,,}

Nearest Hotels

,,}

Tags

Local Market Stats

Meta

High Res Images

Compatible Images

Low res Images

Thumbnails

Raw Images

High Res Floorplan Images

Compatible Floorplan Images

Low res Floorplan Images

FloorplanImages Thumbnail

Raw Floorplan Images