Established rental income and refurbishment potential for portfolio buyers.
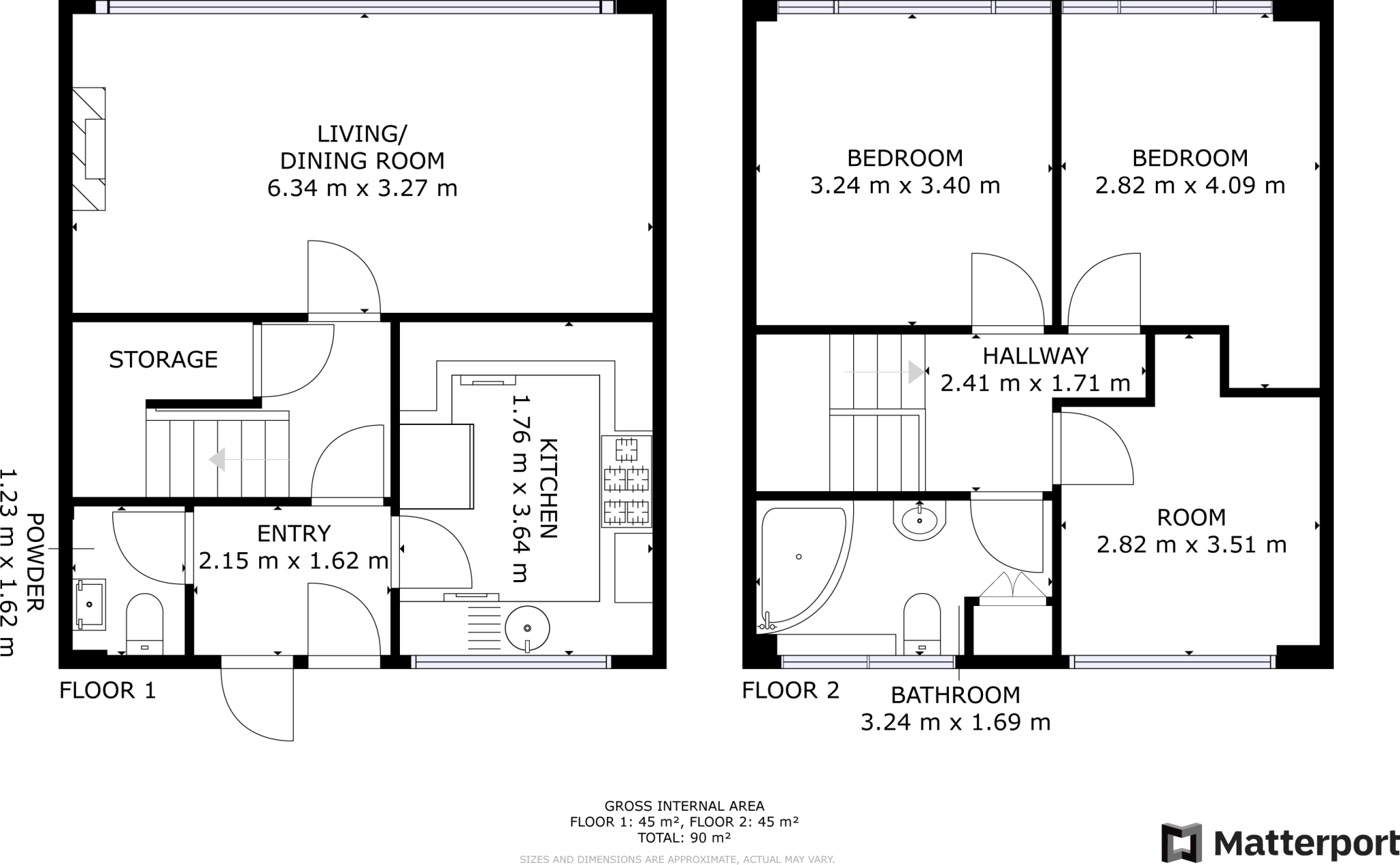
- Three bedrooms with lounge and kitchen
- Private driveway parking for one car
- Rear garden; small plot
- Long-term tenants in situ, steady rental income
- Gross annual rent £9,000 (in-place)
- Freehold tenure, no flood risk
- Dated exterior; likely renovation and damp work needed
- Located in a very deprived area; rental demand steady
A practical three-bedroom semi-detached house on North Road offered with long-standing tenants and immediate rental income. The property is freehold, has private driveway parking and a rear garden, and sits within easy reach of local shops, schools and transport links in Blackburn.
Current tenants produce a gross annual income of £9,000, giving a clear, in-place return for a buy-to-let investor assessing yield and cashflow. Tenants have occupied the property for several years and reportedly intend to remain, so the purchase would transfer an established tenancy.
The exterior shows mid-20th-century styling with flat roof and white cladding; images indicate dated finishes and some signs that renovation or remedial work may be needed, including possible damp and general refresh. The area is very deprived, which can support steady rental demand but may affect capital growth prospects.
Practical positives include fast broadband, excellent mobile signal, freehold tenure and proximity to multiple primary and secondary schools. Important sale details: a Buyers Premium applies to secure the property. Buyers should review the Let Property Pack and survey findings for full investment details and any required repairs.
3 bedroom terraced house for sale in Norwood Avenue, Blackburn, BB2 — £115,000 • 3 bed • 1 bath • 1173 ft²
3 bedroom terraced house for sale in Blackburn Road, Blackburn, BB6 — £115,000 • 3 bed • 1 bath • 829 ft²
1 bedroom end of terrace house for sale in Lord Street, Blackburn, BB6 — £70,000 • 1 bed • 1 bath • 495 ft²
2 bedroom terraced house for sale in St. Georges Avenue, Blackburn, BB2 — £147,000 • 2 bed • 1 bath • 926 ft²
3 bedroom terraced house for sale in Charles Street, Blackburn, BB6 , BB6 — £89,000 • 3 bed • 1 bath
3 bedroom terraced house for sale in Monmouth Road, Blackburn, BB1 — £135,000 • 3 bed • 1 bath • 790 ft²


































































































































