Spacious garden, driveway and extension potential near schools and transport.
No onward chain - immediate sale possible
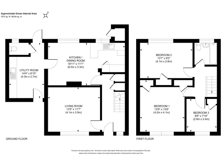
Set at the end of a quiet cul de sac, this three-bedroom semi-detached house offers practical family living with no onward chain. The ground floor has a front lounge, kitchen/breakfast/dining area, utility and a cloakroom, while upstairs provides three bedrooms and a family bathroom. A 45ft rear garden and off-street driveway are notable everyday assets.
The property dates from the mid-20th century and is double glazed with gas central heating; it presents sensible scope to extend (STPP) to increase living space or add value. Rooms are average in size, making the house comfortable for a young family or as a longer-term project to modernise.
Nearby facilities include Knaphill village shops, good primary and secondary schools, local bus links into Woking and Brookwood station for rail commuting. The location suits buyers seeking convenient transport, outdoor space and straightforward renovation potential while avoiding chain delays.
Buyers should note there is a single family bathroom and the house is of its era—some updating and cosmetic refurbishment are likely if modern finishes are preferred. Prospective purchasers wanting significant enlargement will need planning consent for extensions.
3 bedroom semi-detached house for sale in High Street, Knaphill, Woking, Surrey, GU21 — £425,000 • 3 bed • 1 bath • 948 ft²
3 bedroom semi-detached house for sale in Barnby Road, Knaphill, Woking, Surrey, GU21 — £435,000 • 3 bed • 1 bath • 800 ft²
3 bedroom terraced house for sale in Highclere Gardens, Knaphill, Woking, Surrey, GU21 — £390,000 • 3 bed • 1 bath • 726 ft²
3 bedroom end of terrace house for sale in Kent Road, Woking, Surrey, GU22 — £450,000 • 3 bed • 1 bath • 945 ft²
3 bedroom semi-detached house for sale in Knaphill, Woking, GU21 — £450,000 • 3 bed • 1 bath • 905 ft²
3 bedroom end of terrace house for sale in Oakfield, Woking, Surrey, GU21 — £450,000 • 3 bed • 2 bath • 939 ft²














































